NEU - 3 Zimmer Wohnung mit Balkon

Wohnung zum Kauf in 3021 Pressbaum - Kaufpreis: 329.000 € / Objektnummer: 3070/13866
Ausstattung: Fußbodenheizung Balkon
IMG_0832
IMG_0830
IMG_0838
IMG_0847
IMG_0846
IMG_0844
IMG_0839
IMG_0828
IMG_0842
IMG_0836
Hauptstr__16__Pressbaum___07
Hauptstr__16__Pressbaum___09
Hauptstr__16__Pressbaum___05_klein
Hauptstr__16__Pressbaum___14_klein
2014-07-03_PRS_5-5_2OG_OT

Preisinformationen

Kaufpreis:
329.000 €
Kaufpreis/m²
3.369,87 €
Betriebskosten netto:
696,91 € / Monat
Preisinfos:
BK inkl. Rep. Rücklage, Heizkosten und Warmwasser Akonto

Fakten

Objektnummer:
3070/13866
Objekttyp:
Wohnung
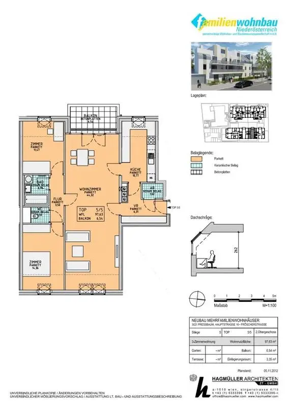
Balkon:
1
Balkonfläche:
6,54 m²
Keller Fläche:
3,95 m²
Wohnfläche:
97,63 m²
Gesamtfläche:
97,63 m²
Zimmer:
3
Schlafzimmer:
2
Badezimmer:
1
Toilette:
1
Stockwerk:
2
Baujahr:
2013
Neubau:
Ja
Zustand:
Neuwertig
Verfügbarkeit:
Verfügbar

Beschreibung

freifinanzierte 3 ZIMMER WOHNUNG mit ca. 98 m² und 7 m² Balkon im 2. Liftstock eines NEUBAU-KOMPLEXes errichten im Jahre 2013

 

HIGHLIGHTS:

  • FUSSBODENHEIZUNG
  • EXTRA KÜCHE
  • ECHTHOLZPARKETT
  • SAT-Anlage  
     

RAUMAUFTEILUNG:

  • Vorraum
  • extra Küche 
  • Wohnesszimmer mit Ausgang auf den Balkon
  • Schlafzimmer
  • Zimmer
  • Bad mit Wanne, Waschbecken, Waschmaschinenanschluss
  • extra WC
  • Abstellraum mit Waschmaschinenanschluss

 Ein Garagenstellplatz kann um € 14.000,00 dazu erworben werden.


Nebenkosten:
- 3,5% Grunderwerbsteuer
- 1,1% Grundbucheintragung
- 2% Vertragserrichtung
- € 720,- pauschal für die Abfuhr der Grunderwerbsteuer und die Selbstberechnung an das Finanzamt sowie die Unterschriften der Verkäuferin am Kaufvertrag
- sowie div. Barauslagen

Bei Interesse rufen Sie uns an und vereinbaren Sie einen Besichtigungstermin.

Lage und Infrastruktur
Die ausgezeichnete Infrastruktur mit zahlreichen Geschäften des täglichen Bedarfs in unmittelbarer Nachbarschaft macht diese Wohnhausanlage sowohl für Jungfamilien als auch für Senioren gleichermaßen außerordentlich interessant. Das Besondere an Pressbaum ist zum einen die verkehrsgünstige Lage - die nahe gelegene Westautobahn und der Zuganschluss der ÖBB sorgen für eine gute Verkehrsanbindung - zum anderen punket die Wienerwaldgemeinde mit einer herrlich idyllischen Umgebung, mit Wald und Natur..
Eine breite Palette von Freizeit- und Sportangeboten - vom Wandern, Radfahren, Klettern, Biken bis hin zum Golfen auf dem nahegelegenen Golfgelände in Breitenfurt - steht zur Verfügung. Und auch kulturell hat Pressbaum einiges zu bieten: so bringt zum Beispiel die Kulturinitiative ‚Vereinsmeierei’ namhafte Künstler nach Pressbaum.

Bezug:
kurzfristig beziehbar
 

 

Beschreibung weiterlesen

Energieeffizienz

Endenergiebedarf:
33,2 kWh/(m²*a)
HWB:
33,2 kWh/(m²*a)
HWB Klasse:
B
fGEE:
0,74
fGEE Klasse:
A
Energieausweisart:
Energiebedarfs-ausweis

Dokumente

Grundriss

Alexander Breinhölder

Alexander Breinhölder

FAMILIENWOHNBAU gemeinnützige Bau- und Siedlungsges.m.b.H.

Lade...

Fotomix

IMG_0832 IMG_0830 IMG_0838 IMG_0847 IMG_0846 IMG_0844 IMG_0839 IMG_0828 IMG_0842 IMG_0836 Hauptstr__16__Pressbaum___07 Hauptstr__16__Pressbaum___09 Hauptstr__16__Pressbaum___05_klein Hauptstr__16__Pressbaum___14_klein