NEU - 4400 Steyr, Blumauergasse 26 - Studentenwohnheim

Wohnung zur Miete in 4400 Steyr - Gesamtmiete: 474,00 € / Objektnummer: 3070/13833
_Z2A0875_Ansicht
_Z2A0949_Stiegenhaus_Eingang
_Z2A0948_Gang_Aufenthaltsraum
_Z2A0925_Kueche_Essbereich_WG
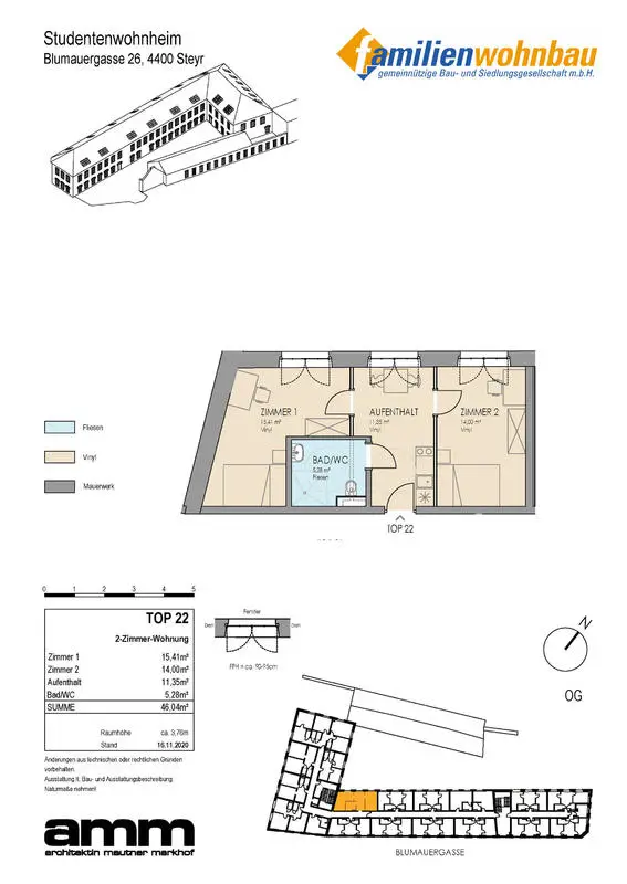
amm1104_StudentenwohnheimSteyr_Verkaufsplaene_Top22

Preisinformationen

Gesamtmiete:
474,00 € / Monat
Nettomiete:
430,91 € / Monat
Umsatzsteuer:
43,09 €
Preisinfos:
inkl. Pauschale für Strom, Wasser und Heizung
Kaution:
1.423,00 €

Fakten

Objektnummer:
3070/13833
Objekttyp:
Wohnung
Wohnfläche:
15,41 m²
Gesamtfläche:
15,41 m²
Zimmer:
1
Stockwerk:
1
Neubau:
Ja
Verfügbarkeit:
Verfügbar

Beschreibung

 

MACH DIE FABRIK ZU DEINER HOMEBASE!

 

sofort beziehbar

 

Zimmer:

Einzelbett
Leselampe
Lattenrost
Matratze
Nachtboard
1 oder 2 Kleiderschränke mit je 2 Regalböden
Schreibtisch
Drehstuhl

Aufenthaltsraum:

1 Esstisch
zwei Sessel
Garderobenboard mit 4 Haken
Spiegel ca. 50 x 155 cm
Gegensprechanlage
Küchenzeile mit Ober- und Unterschränken: Cerankochfeld mit 2 Kochzonen, Mikrowelle mit Grillfunktion, Kühlschrank mit Gefrierkombination, Integrierte Arbeitsflächenbeleuchtung und Spüle mit darunterliegendem Müllauszug

BAD:

Duscharmatur mit Schubstange verchromt
Spiegel in Fliesenebene
Etagere / Keramik unterhalb des Spiegels
Handtuchhaken

WC:

Toilettenpapierhalterung
WC-Bürstengarnitur

Großzügige Gemeinschaftsbereiche mit:

Foyer mit Gemeinschaftsküche und Barbereich
Gut ausgestatteter Fitnessraum
Freibereich im Atrium mit Tischtennis, Tischfußball
Lounge mit Sofa und Flatscreen im Dachgeschoss
Waschküche
Fahrradraum
Stellplätze im freien können zusätzlich angemietet werden
GRATIS WLAN

 

 

DEIN RÜCKZUGSORT

Du willst auf eigenen Beinen stehen?
Du studierst und suchst nach einer richtig coolen Bleibe?

Egal ob Du Dich für ein WG-Zimmer oder eine Garconniere entscheidest - jedes Zimmer ist möbliert und deckt mit Schreibtisch, Schreibtischsessel, Bett oder Hochbett und genügend Stauraum alle Bedürfnisse ab. Außerdem ist jede Wohneinheit mit einer eigenen Küche ausgestattet.

Du möchtest Deine eigenen 4 Wände haben aber dennoch nicht ganz alleine wohnen?

Gerade wenn wichtige Prüfungen anstehen, brauchst du Ruhe und Zeit für Dich, wo Du dich in Deinem Zimmer zurückziehen kannst!
Nach Prüfungswochen kannst Du dann gemeinsam mit Deinen Freunden aus der WG in der Lounge vor dem Flatscreen chillen, die Tischfussballrunde im Freien genießen oder dich im Fitnessraum auspowern.


Bei Interesse ruf uns einfach an und informiere dich. Wir freuen uns auf deinen Anruf!

 

Beschreibung weiterlesen

Energieeffizienz

Endenergiebedarf:
31,7 kWh/(m²*a)
HWB:
31,7 kWh/(m²*a)
HWB Klasse:
B
fGEE:
0,64
fGEE Klasse:
A+
Energieausweisart:
Energiebedarfs-ausweis

Dokumente

Sabrina Ecker

Sabrina Ecker

FAMILIENWOHNBAU gemeinnützige Bau- und Siedlungsges.m.b.H.

Lade...

Fotomix

_Z2A0875_Ansicht _Z2A0949_Stiegenhaus_Eingang _Z2A0948_Gang_Aufenthaltsraum _Z2A0925_Kueche_Essbereich_WG amm1104_StudentenwohnheimSteyr_Verkaufsplaene_Top22