NEU - 550m zur U1 - Sanierungsbedürftige 2-Zimmer-Wohnung im Gründerzeithaus – ideal für Anleger oder Eigennutzer

Wohnung zum Kauf in 1100 Wien - Kaufpreis: 209.309 € / Objektnummer: 8213
Ausstattung:

Preisinformationen

Kaufpreis:
209.309 €
Vermittlungsprovision:
Ja
Provision:
3% des Kaufpreises zzgl. 20% USt.

Fakten

Objektnummer:
8213
Objekttyp:
Wohnung
Wohnfläche:
58 m²
Verfügbarkeit:
Verfügbar

Beschreibung

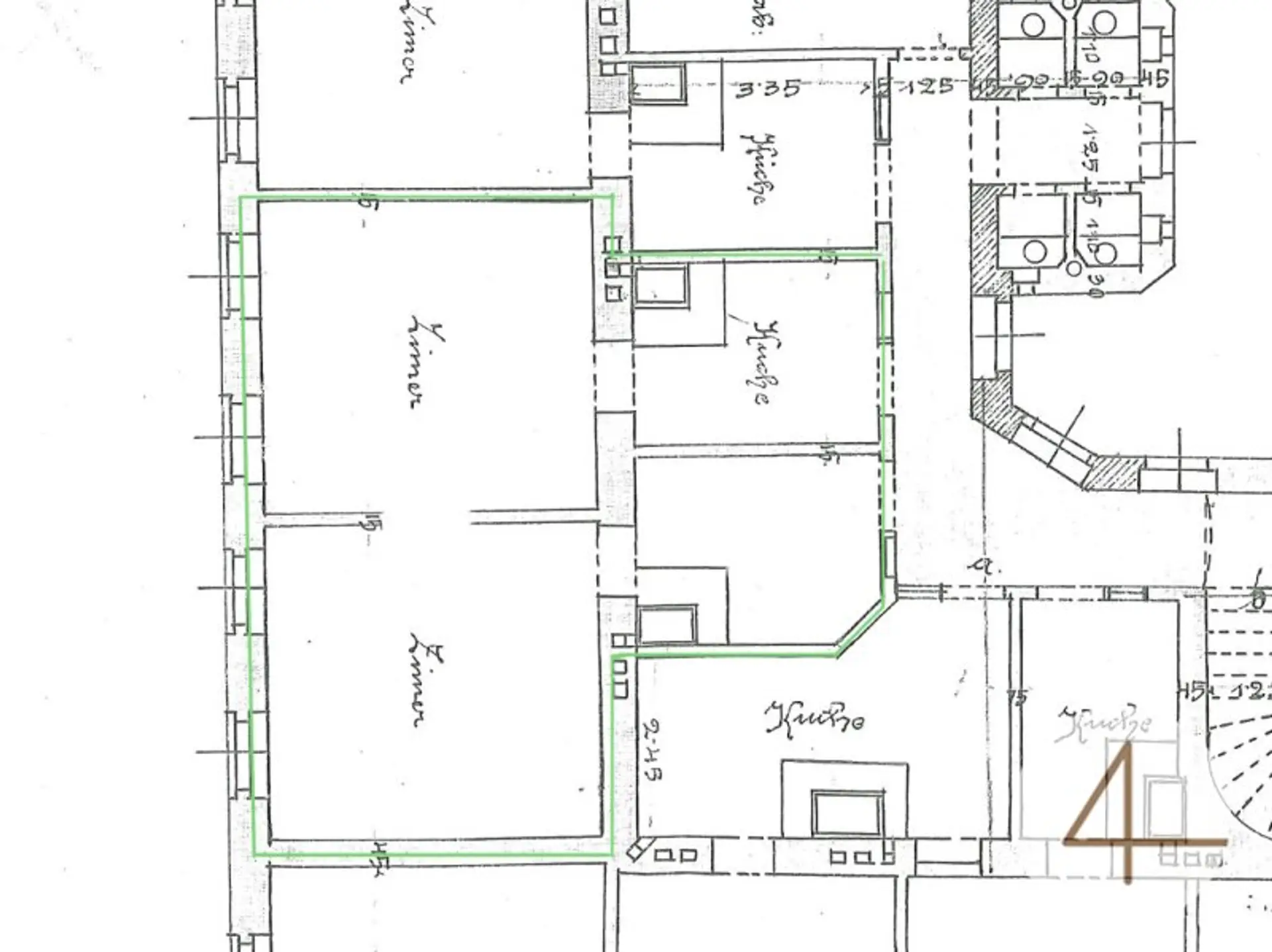
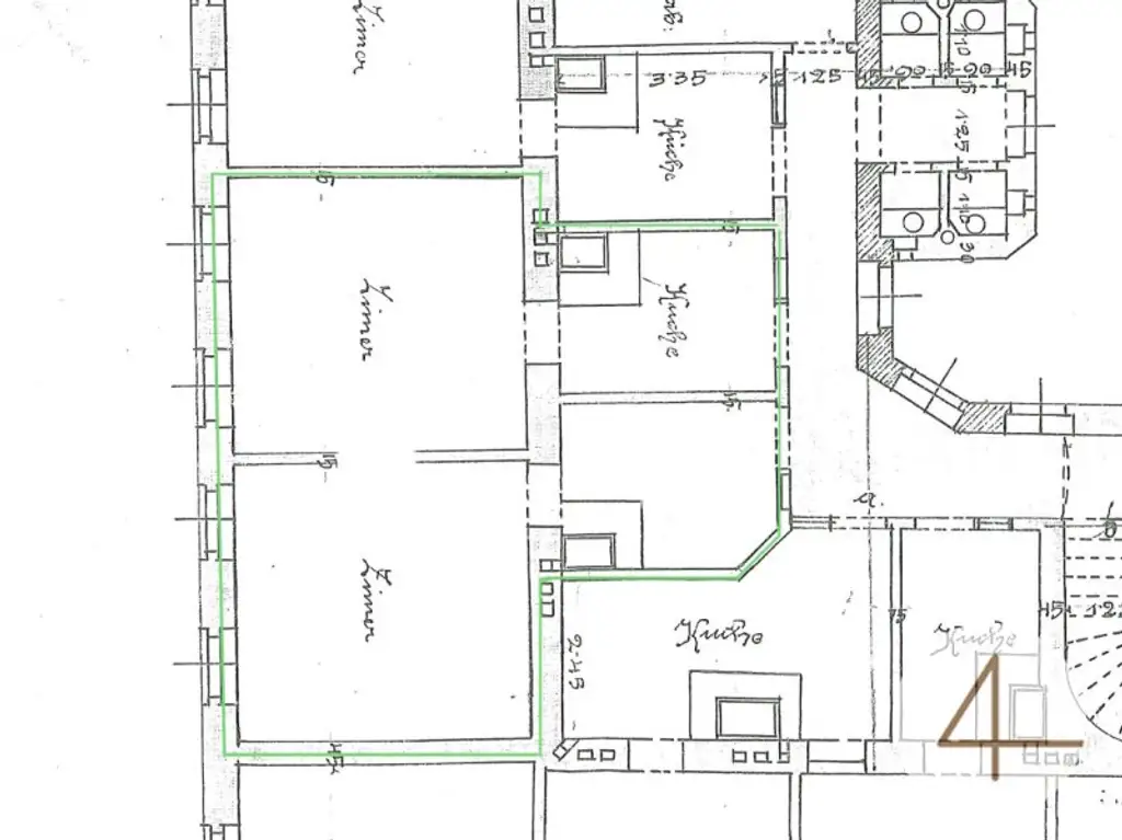
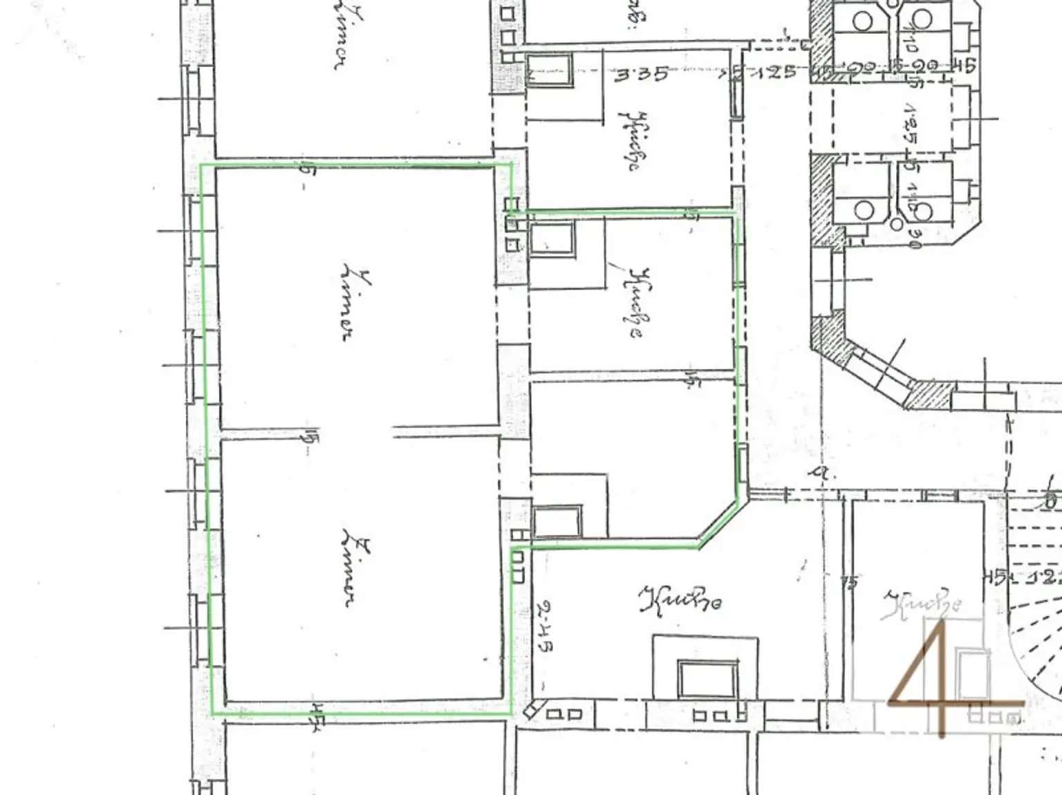
Diese geräumige Wohnung im 3. Stock (ohne Lift) bietet viel Potenzial für alle, die eine Immobilie nach ihren eigenen Vorstellungen gestalten möchten.
Die Wohnung befindet sich in einem klassischen Gründerzeithaus und überzeugt durch eine sehr gute Grundstruktur.

Zusätzliches Highlight:

Im selben Haus stehen weitere Wohneinheiten zum Verkauf – ideal für Investoren, die ein ganzes Paket erwerben möchten.
 

Lage

Die Wohnung befindet sich in einer gut angebundenen und dennoch angenehm ruhigen Wohngegend im 10. Bezirk. Zahlreiche Einkaufsmöglichkeiten, Schulen, Ärzte sowie Restaurants und Cafés liegen in unmittelbarer Umgebung und sind bequem zu Fuß erreichbar. Die Nähe zu mehreren Bus- und Straßenbahnlinien sowie zur U-Bahn ermöglicht eine schnelle Verbindung in die Innenstadt und zu wichtigen Verkehrsknotenpunkten. Grün- und Erholungsflächen in der Nachbarschaft bieten zusätzlichen Freizeitwert und machen diese Lage besonders attraktiv für urbanes Wohnen mit hohem Komfort.

Öffentliche Verkehrsanbindungen

180 m zur Straßenbahnlinie 6,11 - „Gellertplatz"

350 m zur Autobuslinie 68A, 68B - „Waldgasse“

500 m zur Autobuslinie 14A - „Reumannplatz“

550 m zur U1-Station - „Reumannplatz“ 

600 m zur Autobuslinie 65A - „Reumannplatz“
 

Gerne steht Ihnen Herr Michael Hellebrand für weitere Fragen bzw. flexibel gestaltbare Besichtigungstermine unter 0664 75346995 [tel:066475346995] zur Verfügung.  

www.4immobilien.at

Wir weisen ausdrücklich auf unser wirtschaftliches Naheverhältnis mit dem Abgeber/der Abgeberin und auf unsere Vermittlungstätigkeit als Doppelmakler hin. 

Irrtum und Änderungen vorbehalten!

Wir weisen darauf hin, dass zwischen dem Vermittler und dem zu vermittelnden Dritten ein familiäres oder wirtschaftliches Naheverhältnis besteht.

Der Vermittler ist als Doppelmakler tätig.
Beschreibung weiterlesen

Energieeffizienz

HWB:
119,2 kWh/(m²*a)
HWB Klasse:
D
fGEE:
2,34
fGEE Klasse:
D
Energieausweisart:
Energiebedarfs-ausweis
Gültig bis:
01.06.2034

Grundriss

Lageplan

1100 Wien | Wien 10., Favoriten

Lade...
Michael Hellebrand

Michael Hellebrand
Immobilienmakler Wien - Niederösterreich

4immobilien

Lade...

Fotomix

Bild 1 Bild 2 Bild 3 Bild 4