NEU - 550m zur U3 - 15 Min zum Stephansplatz - Seitenstraße Ruhelage - sonnige Loggia mit Weitblick

Wohnung zum Kauf in 1110 Wien - Kaufpreis: 419.000 € / Objektnummer: 8409
Ausstattung: Fahrstuhl Wohnküche / offene Küche Abstellraum Fernwärme Loggia

Preisinformationen

Kaufpreis:
419.000 €
Vermittlungsprovision:
Ja
Provision:
3% des Kaufpreises zzgl. 20% USt.

Fakten

Objektnummer:
8409
Objekttyp:
Wohnung
Loggia:
1
Keller Fläche:
1,08 m²
Wohnfläche:
83,73 m²
Loggia Fläche:
5 m²
Nutzfläche:
88,5 m²
Zimmer:
3
Neubau:
Ja
Verfügbarkeit:
Verfügbar

Beschreibung

Diese moderne Eigentumswohnung im 3. Liftstock vereint ruhiges Wohnen mit perfekter urbaner Anbindung. Helle Räume, eine durchdachte Raumaufteilung und die sonnige Weitsicht schaffen ein angenehmes Wohngefühl. Das gepflegte Haus aus dem Jahr 2000 bietet einen gehobenen Lebensstandard mit attraktiven Gemeinschaftseinrichtungen wie Sauna, Fitnessraum, zwei Kinderspielräumen sowie einer großzügigen Dachterrasse mit Outdoor-Dusche. Eine ideale Familienoase, die Komfort, Freizeit und Wohnqualität perfekt verbindet.

Kurzinfo Ausführung und Ausstattung

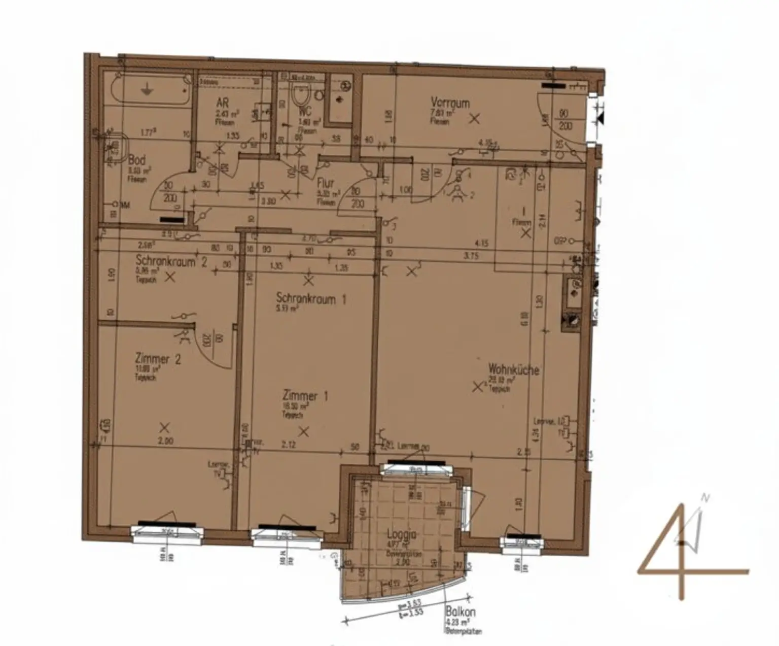
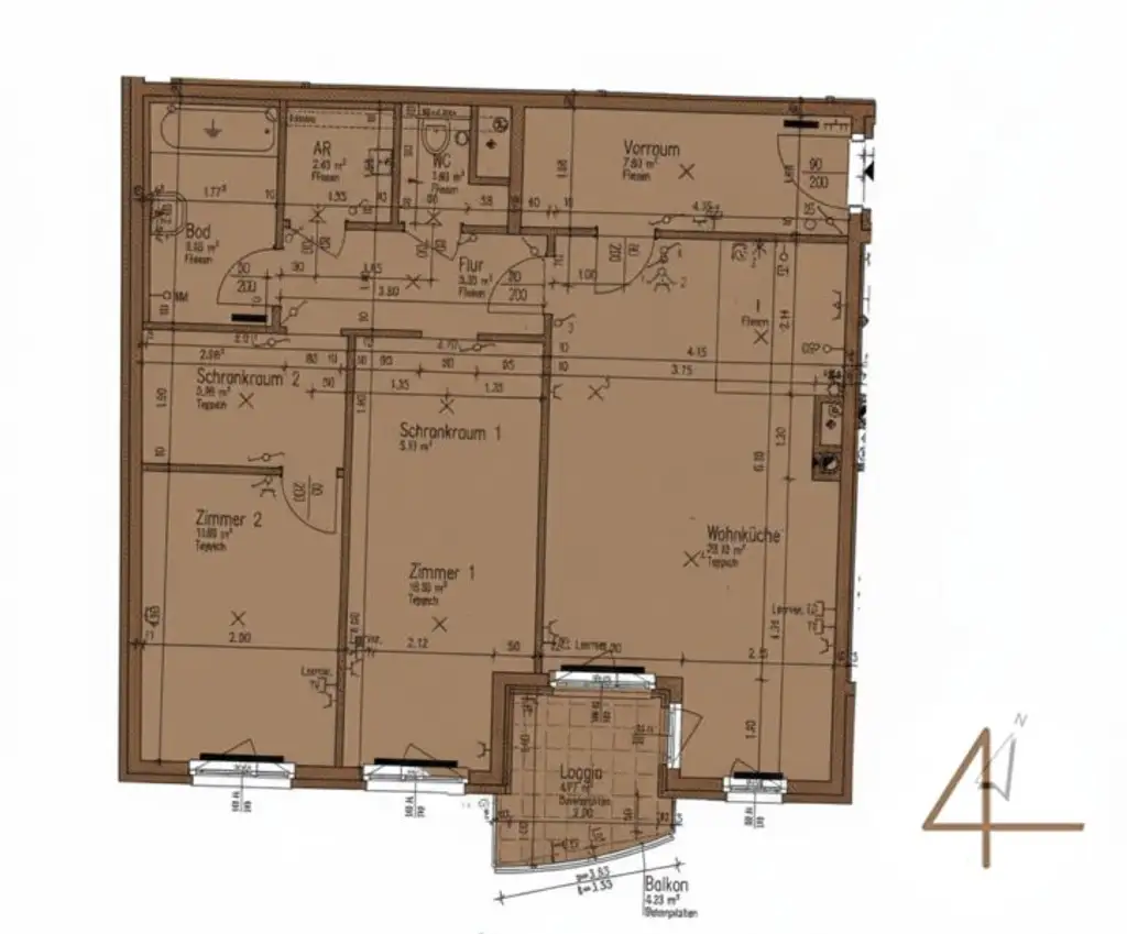
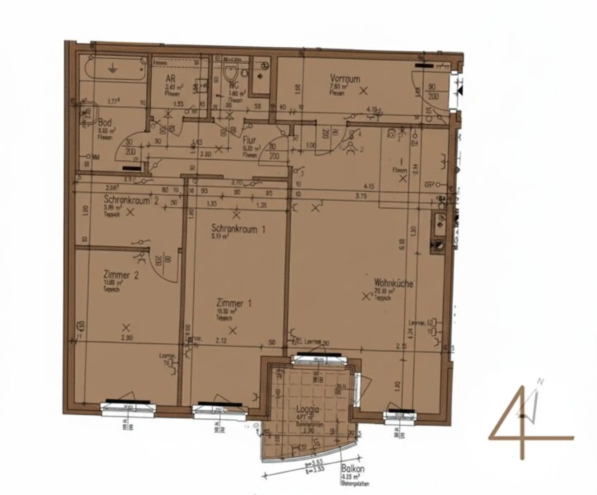
* Wohnnutzfläche lt. Plan inkl. Loggia 88,50m² 
* Vorraum 7,81m²  
* geräumiger Wohnbereich 28,18m² 
* voll ausgestattete Küche 
* Loggia 5,00m²  
* 1. Zimmer 5,33m²
* 2. Zimmer mit Schrankraum 17,24m²  
* Badezimmer mit Badewanne 5,60m²  
* separates WC 1,80m² 
* Bodenbelag - Fliesen und Parkett 
* Abstellraum 2,45m²  
* Fernwärme 
* Kellerabteil
* Fahrradabstellplatz

Lage
Die Wohnung befindet sich in einer ruhigen Wohngegend des 11. Bezirks und überzeugt durch eine hervorragende Infrastruktur. Einkaufsmöglichkeiten, Schulen, Kindergärten sowie Ärzte befinden sich in unmittelbarer Umgebung und sind bequem erreichbar. Die nahegelegene U3-Station Enkplatz sorgt für eine schnelle Verbindung in die Wiener Innenstadt. Gleichzeitig bieten zahlreiche Grünflächen und Freizeitmöglichkeiten in der Umgebung eine hohe Lebensqualität für Familien und Ruhesuchende.

öffentliche Verkehrsanbindungen 

220m zum Autobus 76A, 76B  - "Krausegasse"
260m zur Straßenbahn 11, 71, D - "Enkplatz"
290m zum Autobus 76A, 76B  - "Enkplatz"
550m zur U-Bahn U3 - "Enkplatz"
550m zum Simmering Bahnhof U3,S80, R81, REX8, REX81 - "Simmering Bahnhof"
 

Gerne steht Ihnen Herr Michael Hellebrand für weitere Fragen bzw. flexibel gestaltbare Besichtigungstermine unter 0664 75346995 [tel:066475346995] zur Verfügung.  

www.4immobilien.at

Wir weisen ausdrücklich auf unser wirtschaftliches Naheverhältnis mit dem Abgeber/der Abgeberin und auf unsere Vermittlungstätigkeit als Doppelmakler hin. 

Irrtum und Änderungen vorbehalten!

Hinweis gemäß Energieausweisvorlagegesetz: Ein Energieausweis wurde vom Eigentümer bzw. Verkäufer, nach unserer Aufklärung über die generell geltende Vorlagepflicht, sowie Aufforderung zu seiner Erstellung noch nicht vorgelegt. Daher gilt zumindest eine dem Alter und der Art des Gebäudes entsprechende Gesamtenergieeffizienz als vereinbart. Wir übernehmen keinerlei Gewähr oder Haftung für die tatsächliche Energieeffizienz der angebotenen Immobilie.

Der Vermittler ist als Doppelmakler tätig.
Beschreibung weiterlesen

Grundriss

Lageplan

1110 Wien | Wien 11., Simmering

Lade...
Michael Hellebrand

Michael Hellebrand
Immobilienmakler Wien - Niederösterreich

4immobilien

Lade...

Fotomix

Bild 1 Bild 2 Bild 3 Bild 4 Bild 5 Bild 6 Bild 7