NEU - ALL-INCLUSIVE Officelösungen in Steyregg direkt an der B 3!

Büro zur Miete in 4221 Steyregg - Gesamtmiete: 360,00 € / Objektnummer: 7710
Ausstattung: Rollstuhlgerecht Fahrstuhl Teeküche Klimaanlage Parkplatz Außenparkplatz Zentralheizung Loggia
Besprechungsraum
offene Teeküche mit Sozialbereich
Lounge
private Desk
private Office I
open Space - Seminarfläche
Besprechungsraum
Lounge
offene Teeküche mit Sozialbereich
private Desk
private Office II
Gebäude B3 außen
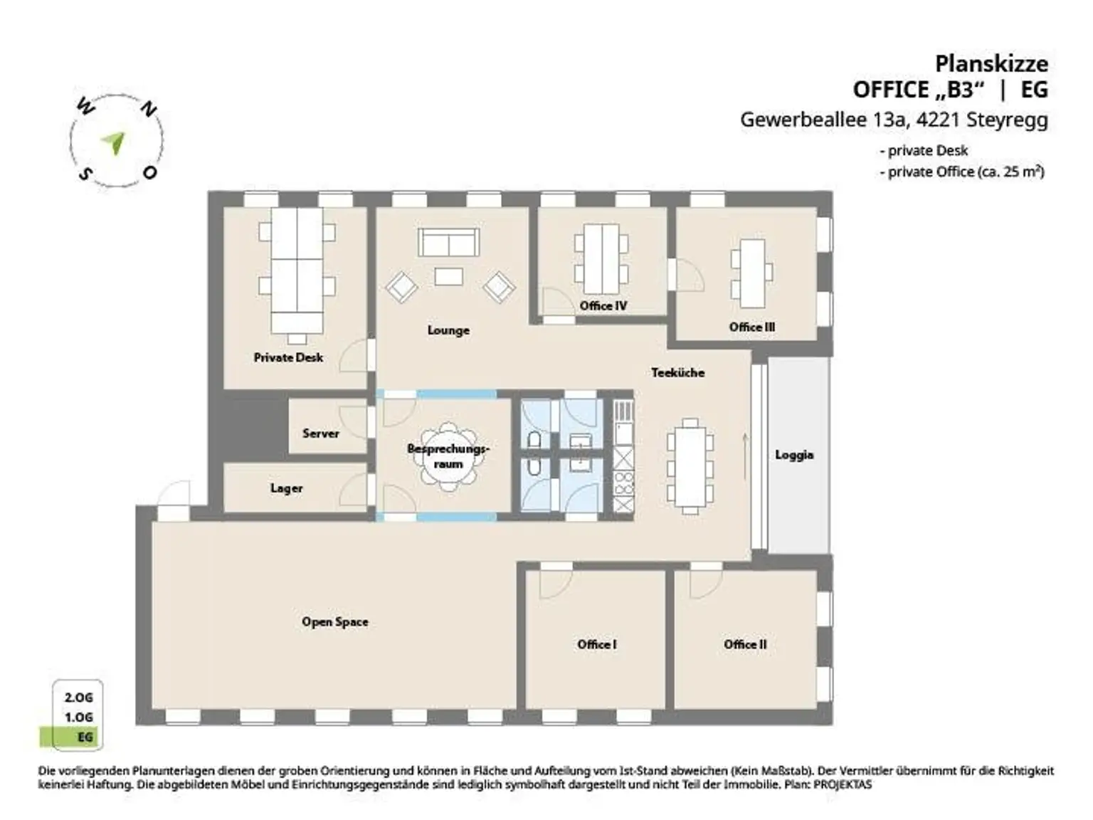
Planskizze Office B3

Preisinformationen

Gesamtmiete:
360,00 € / Monat
Gesamtmiete (exkl. USt.):
300,00 € / Monat
Umsatzsteuer:
60,00 €
Kaution:
1.100,00 €

Fakten

Objektnummer:
7710
Objekttyp:
Büro
Loggia:
1
Nutzfläche:
25 m²
Bürofläche:
25 m²
Toilette:
2
Baujahr:
ca. 2017
Neubau:
Ja
Zustand:
Gepflegt
Verfügbarkeit:
Verfügbar

Beschreibung

PRIVATE DESK - PRIVATE OFFICE - LOUNGE - MEETING

QUICKFACTS
Bürofläche: office Desk oder private Office
Raumaufteilung: Lounge, Besprechung, Teeküche, Loggia, Dachterrasse
Stockwerk: EG
Parkplätze: vorhanden
WC Anlagen: getrennt
Nettomiete: ab € 300,00 / Monat
Bezugstermin: nach Vereinbarung

OBJEKTBESCHREIBUNG
Genug vom Homeoffice? Im Bürogebäude "B 3" in Steyregg wurde ein attraktives Office Konzept gestaltet welches kleinen Unternehmen oder einzelnen Arbeitnehmern die Möglichkeit bietet einen eigenen Arbeitsplatz bestehend aus Bürotisch, Rollkasten und Bürostuhl anzumieten. Die monatliche Pauschalmiete von € 300,00 netto inkludiert den W-LAN Zugang, die Betriebskosten, die Nutzung des Besprechungsraumes, der gut ausgestatteten Teeküche mit Sozialbereich und Loggia sowie der getrennten Sanitäranlagen. Für eine kleine Pause zwischendurch eignet sich die Dachterrasse des Gebäudes! Weiters gibt es auch die Möglichkeit einzelne Büroräume mit ca. 25 m² anzumieten (€ 600,00 netto / Monat Pauschalmiete) und selbst auszustatten. Nutzen Sie die Möglichkeit sich den Videorundgang anzusehen! Wir freuen uns über Ihren Anruf um Ihnen die Optionen im Detail zu erklären.

LAGE & VERKEHRSANBINDUNG
Durch die direkte Lage an der B3 Linzer Bundesstraße, unmittelbar vor den Toren von Linz, sind Sie sofort auf der Autobahn oder auch im Linzer Zentrum.
Der Bahnhof Steyregg ist in wenigen Minuten zu Fuß erreichbar und das öffentliche Busnetz bietet zahlreiche Verbindungen. Parkplätze sind am Objekt verfügbar.

AUSSTATTUNG
Zustand: sehr gut
Boden: Doppelboden mit Teppichbelag
Fenster: öffenbar
Sonnenschutz: außen
Decke: abgehängt
Beleuchtung: vorhanden
Teeküche: vorhanden
Datenverkabelung: W-Lan
Drucker/Scanner: vorhanden
Zutrittssystem: vorhanden
Heizung: inkludiert
Klima: inkludiert

KONDITIONEN (NETTO)
Gesamtmiete: ab € 300,00 / Monat
Betriebskosten: inklusive
Heizkosten: inklusive
Strom: inklusive
Befristung: ab 6 Monate
Kaution: 3 BMM
Provision: 1 - 3 BMM

Zögern Sie nicht uns bei etwaigen Rückfragen oder zur Vereinbarung eines unverbindlichen Besichtigungs- bzw. Beratungstermines zu kontaktieren. Unser Team steht Ihnen gerne zur Verfügung! Ihr Ansprechpartner: Herr Claudio Feistritzer (0664 / 12 88 000 bzw. 0732 / 77 0 88 5-22)

PS: Zahlreiche weitere Immobilien finden Sie auf unserer Homepage unter www.projektas.at
Hinweis: Wir verarbeiten personenbezogene Daten zu geschäftlichen Zwecken. Nähere Informationen finden Sie unter www.projektas.at
Angaben gemäß gesetzlichem Erfordernis:
Miete 300 zzgl 20% USt.
Umsatzsteuer 60
---------------------------------
Gesamtbetrag 360
---------------------------------
Heizwärmebedarf: 10.0 kWh/(m²a)
Klasse Heizwärmebedarf: A
Beschreibung weiterlesen

Energieeffizienz

HWB:
10 kWh/(m²*a)
HWB Klasse:
A
Energieausweisart:
Energiebedarfs-ausweis

Dokumente

Lageplan

4221 Steyregg | Urfahr-Umgebung

Lade...
Claudio Feistritzer

Claudio Feistritzer

PROJEKTAS - Feistritzer Hinz GmbH & Co OG

Anrufen
Lade...

Fotomix

Besprechungsraum offene Teeküche mit Sozialbereich Lounge private Desk private Office I open Space - Seminarfläche Besprechungsraum Lounge offene Teeküche mit Sozialbereich private Desk private Office II Gebäude B3 außen Planskizze Office B3