NEU - Anleger oder Eigennutzer! 3 Zimmer mit Loggia - ERSTBEZUG!

Wohnung zum Kauf in 1220 Wien - Kaufpreis: 415.500 € / Objektnummer: 247/21911
Ausstattung: Boden Fahrstuhl Abstellraum Fußbodenheizung

Preisinformationen

Kaufpreis:
415.500 €
Kaufpreis/m²
5.876,11 €
Preisinfos:
GrESt 3,5% + Grundbucheintragung 1,1% des Gesamtkaufpreises /Vertragserrichtung 1,5% + Barauslagen, Beglaubigungs-, ggf. Treuhandkosten bei Finanzierung +USt. (Mag. Teodora Aurora Vrancean, M.P.S. / Provision 3% +USt. d…
Vermittlungsprovision:
Ja
Provision:
3%

Fakten

Objektnummer:
247/21911
Objekttyp:
Wohnung
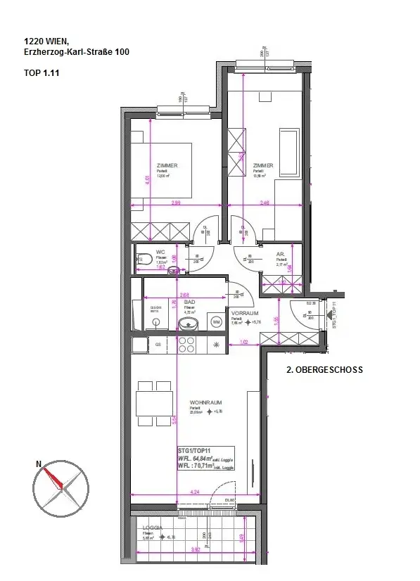
Wohnfläche:
70,71 m²
Zimmer:
3
Badezimmer:
1
Toilette:
1
Baujahr:
2020/Neubau
Neubau:
Ja
Verfügbarkeit:
Verfügbar
Verfügbar ab:
sofort

Beschreibung

Diese moderne 3-Zimmer-Wohnung mit Loggia in der Erzherzog-Karl-Straße ist ein attraktives Investment in den lebenswerten 22. Bezirk. Die Wohnung (ca. 65 m²) befindet sich im 2. Obergeschoss eines modernen Neubaus aus dem Jahr 2020. Sie besticht mit der tollen ca. 6 m² großen südwestseitigen, sonnigen Loggia. Die begehrte Lage sichert hervorragende Perspektiven für eine nachhaltige Wertsteigerung. Die Ausstattungs-Highlights: - Kunststoff-Alu-Fenster mit 3-fach-Isolierverglasung - Innentüren aus Holz und einbruchshemmende Wohnungseingangstüren - Parkettböden in Eiche Landhausdiele CHALE 190 - Feinsteinzeug-Fliesen im Format 30 × 60 cm - Sanitärmöbel von LAUFEN und Armaturen von GROHE - Digitale Videogegensprechanlage - Elektrische, außenliegende Raffstores an allen Fenstern - Wasser- und Stromanschlüsse auf allen Balkonen und Terrassen - Hochwertige Steinbeläge auf sämtlichen Außenflächen - Luftwärmepumpe mit Fußbodenheizung - Kinderwagen- und Fahrradabstellraum - Großzügige Tiefgarage mit E-Ladevorbereitung - Aufzug in alle Stockwerke - Modernes Wohnkonzept für höchste Ansprüche an Komfort, Design und Nachhaltigkeit Die Lage-Highlights: - Buslinien 26A und 94A (3 Gehminuten) - Straßenbahnlinie 25 (4 Gehminuten) - Bahnhof Erzherzog-Karl-Straße (5 Gehminuten) - Supermarkt (2 Gehminuten) - Otto-Affenzeller-Park (3 Gehminuten) - Lagerwiese Rehlacke / An der unteren Alten Donau (5 Minuten mit dem Rad) - Zahlreiche Gastronomieangebote Der Kaufpreis für diese in ausgezeichneter Lage und Infrastruktur befindliche Eigentumswohnung beträgt Euro 449.900,-. Der Anlegerpreis für diese in ausgezeichneter Lage und Infrastruktur befindliche Eigentumswohnung beträgt Euro 415.500,-. Vereinbaren Sie noch heute einen Besichtigungstermin und lassen Sie sich von dieser besonderen Immobilie verzaubern. Diesbezüglich freuen wir uns über Ihre geschätzte Anfrage per Mail. Tipp: Die gesamte Anlage wird gerade parifiziert und abverkauft. Fragen Sie uns nach weiteren Objekten bzw. Paketangeboten! Wir möchten darauf hinweisen, dass unsere Antwort möglicherweise in Ihrem Spamordner landen könnte. Bitte kontrollieren Sie diesen, wenn Sie keine Rückmeldung auf Ihre Anfrage erhalten haben. Wir freuen uns auf Ihre Anfrage und einen gemeinsamen Besichtigungstermin!
Beschreibung weiterlesen

Lage und Verkehrsanbindung

Froschteichpark, Polgarstraße

Energieeffizienz

HWB:
27,8 kWh/(m²*a)
HWB Klasse:
B
fGEE:
0,77
fGEE Klasse:
A

Grundrisse

Melanie Eiblthauer

Melanie Eiblthauer

IMV Immobilienmakler

Lade...

Fotomix

Loggia Wohnraum I 2.Schlafzimmer 1.Schlafzimmer Badezimmer I Flur Zutritt Top 1.17 Aufteilung Innenhof I Innenhof VI Hausansicht IX Hausansicht VIII Aufteilung I Hausflur Toilette