NEU - Apartmenthaus für Kurzzeitmiete - Voll eingerichtet - Fertigstellung Juni 2026

Gastgewerbe zum Kauf in 8020 Graz - Kaufpreis: 2.400.000 € / Objektnummer: 7894
Ausstattung: Barrierefrei Fahrstuhl

Preisinformationen

Kaufpreis:
2.400.000 €
Provision:
3.00 %

Fakten

Objektnummer:
7894
Objekttyp:
Gastgewerbe
Nutzfläche:
317,24 m²
Grundstücksfläche:
632 m²
Zimmer:
14
Neubau:
Ja
Verfügbarkeit:
Verfügbar

Beschreibung

Bei diesem Neubauprojekt wird ein Apartmenthaus für Kurzzeitmiete errichtet. Es hat 14 voll eingerichtete Apartments mit 30 Betten.

Die Apartments haben eine Größe von ca. 16 m² bis 41 m². Es gibt also für Alleinreisende wie auch für die Familie die richtigen Räumlichkeiten.

Ein zentrales Buchungssystem ist bereits vorhanden.

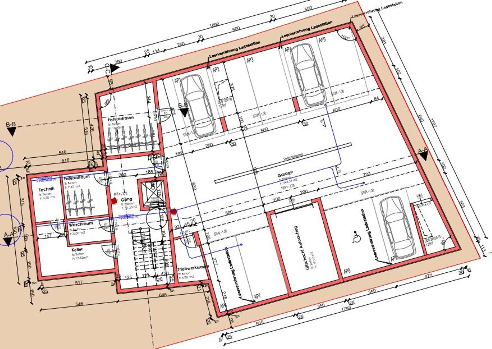
Ebenso stehen in der Tiefgarage 10 Parkplätze zur Verfügung.

Eine durchschnittliche Auslastung von 60 % übers Jahr betrachtet ist in Graz erzielbar. Somit kann man laut Angaben des Verkäufers mit einem Nettoumsatz von zumindest € 200.000, - rechnen.

Für weitere Informationen bzw. für die Vereinbarung eines Besichtigungstermins stehe ich Ihnen gerne zur Verfügung.

Bitte beachten Sie, dass wir aufgrund unserer Nachweispflicht dem Abgeber gegenüber nur Anfragen beantworten können, die Ihren Namen, die vollständige Anschrift und eine Telefonnummer enthalten.
Angaben gemäß gesetzlichem Erfordernis:
Heizwärmebedarf: 46.3 kWh/(m²a)
Klasse Heizwärmebedarf: B
Faktor Gesamtenergieeffizienz: 0.7
Klasse Faktor Gesamtenergieeffizienz: A+
Beschreibung weiterlesen

Energieeffizienz

HWB:
46,3 kWh/(m²*a)
HWB Klasse:
B
fGEE:
0,7
fGEE Klasse:
A+
Energieausweisart:
Energiebedarfs-ausweis

Lageplan

8020 Graz | Graz (Stadt)

Lade...
Georg Herzog

Georg Herzog

RE/MAX Classic in Graz

Lade...

Fotomix

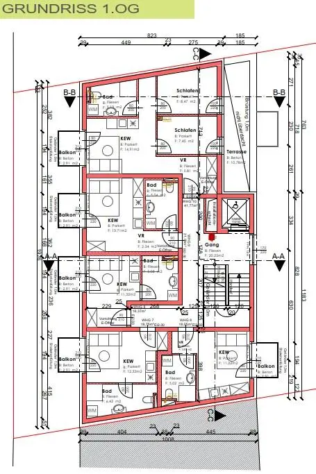
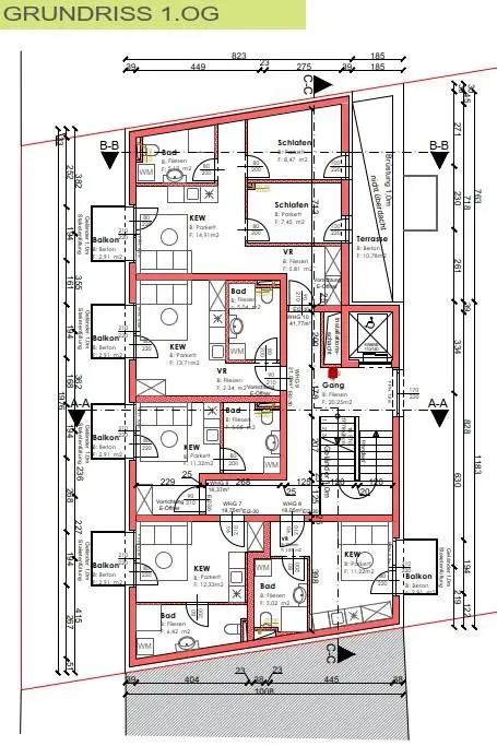
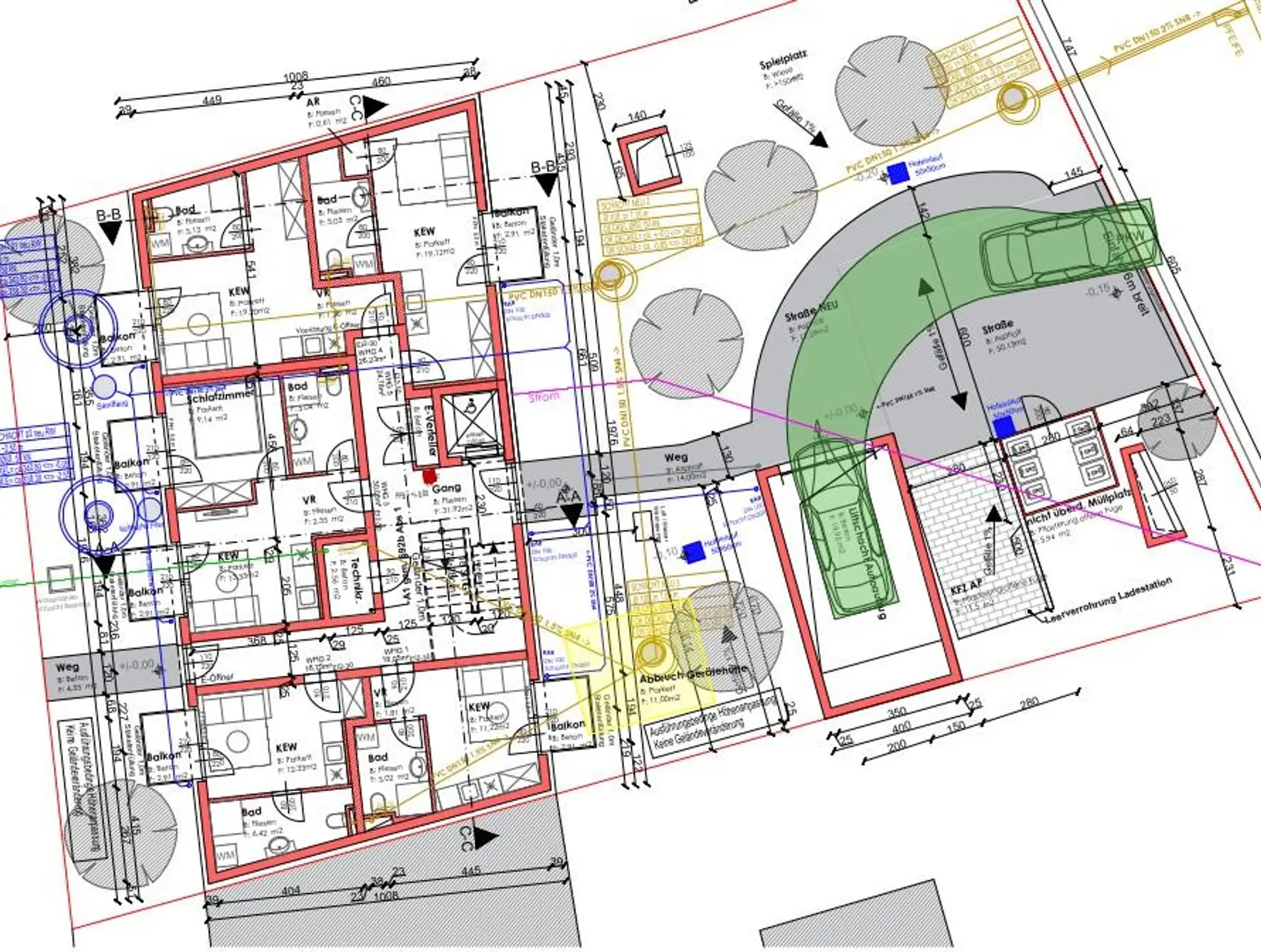
Ansicht Ansicht Grundriss EG Grundriss 1 OG Grundriss 2 OG Grundriss Tiefgarage