NEU - Attraktive 2-Zimmer-Wohnung - heute Kapitalanlage, morgen Ihr Zuhause! Befristet vermietet

Wohnung zum Kauf in 1100 Wien - Kaufpreis: 183.000 € / Objektnummer: 247/22129
Ausstattung: Fahrstuhl

Preisinformationen

Kaufpreis:
183.000 €
Kaufpreis/m²
3.338,20 €
Preisinfos:
GrESt 3,5% + Grundbucheintragung 1,1% des Gesamtkaufpreises / Vertragserrichtung 1,5% + Barauslagen, Beglaubigungs-, ggf. Treuhandkosten bei Finanzierung +USt. (WeiKes RA) / WE-Begründungsbeitrag € 500 +USt. / Provisio…
Vermittlungsprovision:
Ja
Provision:
3%

Fakten

Objektnummer:
247/22129
Objekttyp:
Wohnung
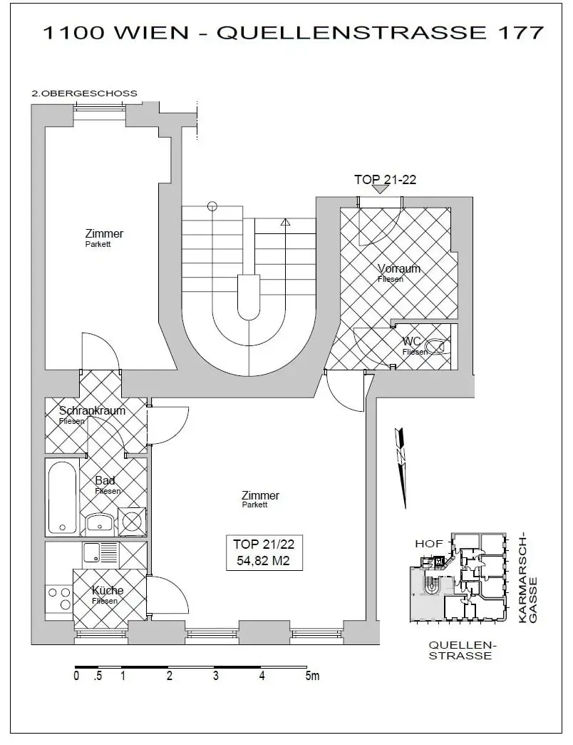
Wohnfläche:
54,82 m²
Zimmer:
2
Badezimmer:
1
Toilette:
1
Baujahr:
1888
Altbau:
Ja
Verfügbarkeit:
Verfügbar
Verfügbar ab:
sofort

Beschreibung

In attraktiver Lage des 10. Bezirks gelangen in der Quellenstraße mehrere Wohnungen zum Einzelabverkauf. Das Angebot umfasst überwiegend unbefristet und befristet vermietete sowie einige leerstehende Einheiten mit Wohnflächen von ca. 15 m² bis 83 m²; Die ca. 55 m² große 2-Zimmer-Wohnung (Vorraum, Küche, 2 Zimmer, Bad mit Badewanne und Toilette) befindet sich im 2. Stock eines gepflegten Gründerzeithauses, das 2005 saniert und ausgebaut wurde und ist noch bis 14. August 2026 befristet vermietet. Sie bietet kurz-, mittel- und langfristig eine absolute Vorteilslage. Helle Räume und eine durchdachte Aufteilung schaffen eine Atmosphäre, in der man sich vom ersten Moment an wohlfühlt. Hier genießen Sie urbanes Lebensgefühl mit Rückzugscharakter – ideal für Singles, Paare oder als wertbeständige Anlage. Die Details: - Eigentumswohnung im 2. Stock - Vorraum, Badezimmer, Küche, 2 Zimmer, Schrankraum, separates WC - Helle, funktionale Raumaufteilung - Gaszentralheizung - Aufzug vorhanden - Befristet bis zum 14.08.2026 vermietet (keine Eigennutzung bis zur Kündigung des Mieters; bei einem neuen Mietverhältnis kann der Richtwertmietzins vereinbart werden;) - derzeit monatliche Mieteinnahmen netto € 404,47 (Betriebskosten nicht inkludiert) Die Lage: - Matzleinsdorfer Platz/Keplerplatz um die Ecke - unweit zum Wienerberg - Zahlreiche Cafés und Einkaufsmöglichkeiten Der Kaufpreis für diese Eigentumswohnung mit hervorragender Infrastruktur beträgt Euro 183.000,-. Tipp: Die gesamte Anlage wird gerade parifiziert und abverkauft. Fragen Sie uns nach weiteren Objekten bzw. Paketangeboten! Wir möchten darauf hinweisen, dass unsere Antwort möglicherweise in Ihrem Spamordner landen könnte. Bitte kontrollieren Sie diesen, wenn Sie keine Rückmeldung auf Ihre Anfrage erhalten haben.
Beschreibung weiterlesen

Lage und Verkehrsanbindung

Keplerplatz

Energieeffizienz

HWB:
73,7 kWh/(m²*a)
HWB Klasse:
C
fGEE:
1,63
fGEE Klasse:
C

Grundrisse

Ruschitzka-Schilhorn Marion

Ruschitzka-Schilhorn Marion
Vertrieb

IMV Immobilienmakler

Lade...

Fotomix

Hausansicht Wohnraum I Schlafzimmer Badezimmer Wohnraum Küche Schrankraum Vorraum Fassade V Stiegenhaus I Stiegenhaus V Innenhof I