Attraktives Baugrundstück in sonniger Lage – voll aufgeschlossen

Grundstück zum Kauf in 5242 St. Johann am Walde - Kaufpreis: 92.180 € / Objektnummer: 1651/5018
Ausstattung:

Preisinformationen

Kaufpreis:
92.180 €
Vermittlungsprovision:
Ja
Provision:
3% des Kaufpreises zzgl. 20% USt.

Fakten

Objektnummer:
1651/5018
Objekttyp:
Grundstück
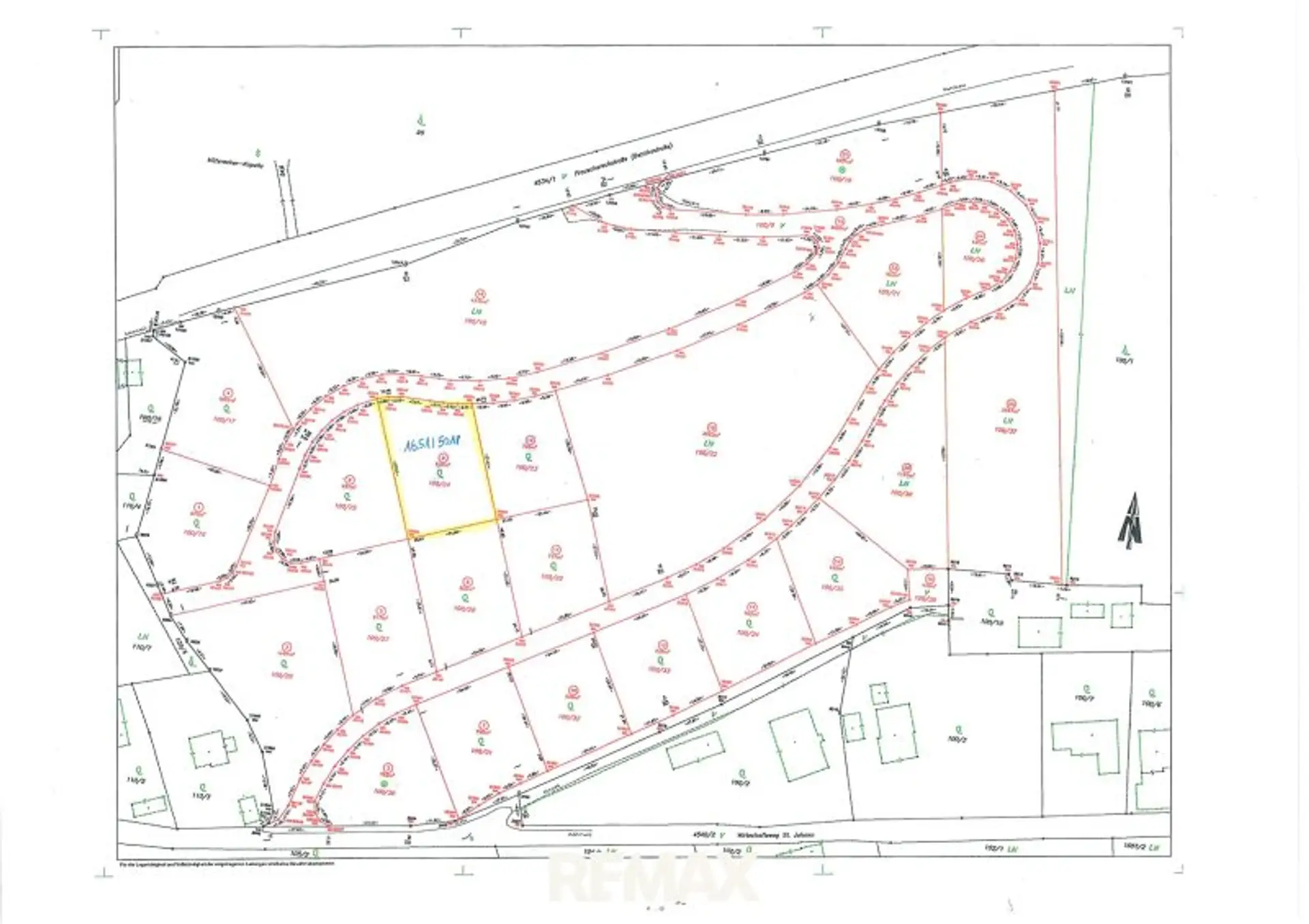
Grundstücksfläche:
838 m²
Verfügbarkeit:
Verfügbar

Beschreibung

Baugrundstück in St. Johann am Walde

Attraktives Baugrundstück in sonniger Lage – voll aufgeschlossen

Lage: Das angebotene Baugrundstück befindet sich in St. Johann am Walde und überzeugt durch seine ruhige, 
sonnige Lage in einer attraktiven Wohngegend. 
Die Umgebung bietet eine hohe Lebensqualität und eignet sich ideal für Familien sowie Ruhesuchende. 
Die Anbindung an die umliegenden Orte sowie die vorhandene Infrastruktur machen den Standort besonders interessant.

📐 Grundstück & Widmung:
Widmung: Bauland
Sonnige, gut gelegene Parzelle
Voll aufgeschlossen bzw. technisch bestens vorbereitet

🏗️ Bebauung: Die Bebauung richtet sich nach den örtlichen Bauvorschriften.
Hinweis: Für den Baugrund gilt eine Bebauungsverpflichtung. Das Grundstück muss innerhalb von 5 Jahren bebaut werden.

⚙️ Infrastruktur & Aufschließung: Das Grundstück ist optimal vorbereitet und verfügt über folgende Anschlüsse bzw. Einrichtungen:
+Kanalanschluss durch die Gemeinde
+Wasser-, Strom- und Telefonanschluss vorhanden
+Leerverrohrung für Glasfaser (zukunftssicher)
+Straßenbeleuchtung vorhanden
+Retentionsbecken / Oberflächenentwässerung zur sicheren Ableitung von Regenwasser
👉 Voll aufgeschlossen bzw. technisch vorbereitet – ideale Voraussetzungen für einen raschen Baustart.

💶 Kostenhinweis:
Verkehrsflächenbeiträge und Kanalgebühren werden bei Baubewilligung fällig

⭐ Besonderes Angebot
Die ersten 3 Käufer erwerben provisionsfrei!
→ Ein attraktiver Vorteil für schnelle Entscheidungen.

🌳 Highlights auf einen Blick:
+Sonnige Lage
+Ruhige Wohnumgebung
+Sofort bebaubar (nach Genehmigung)
+Voll erschlossen / vorbereitet
+Zukunftssichere Infrastruktur
 

Wir weisen auf Ihre 14-tägige Rücktrittsfrist (nach § 11 FAGG ) hin. Damit Ihre Rechte gewahrt werden, beantworten wir nur Anfragen mit vollständigen Kontaktdaten (Name, Adresse, Handy, E-Mail). Wir werden gerne vor Ablauf der 14-tägigen Rücktrittsfrist für Sie tätig, wenn Sie uns gesetzeskonform (FAGG) und ausdrücklich (am besten per E-Mail) auffordern. Wenn Kaufvertrag/ Mietvertrag nicht zustande kommen, ist unsere Tätigkeit für Sie völlig kostenfrei. Wir möchten an dieser Stelle auf unsere Doppelmaklertätigkeit hinweisen.

Nur auf www.remax.at finden Sie neue REMAX Immobilien früher und vollständig.

Neuer Job, neue Perspektiven: Jetzt als Immobilienmakler/in durchstarten!

Werden Sie Teil unseres Teams – jetzt bewerben unter karriere@remax-innova.at.
Weitere Infos in unseren News: https://www.remax.at/de/ib/remax-innova-braunau-inn/news/wir-suchen-sie-16641

Der Vermittler ist als Doppelmakler tätig.
Beschreibung weiterlesen

Lageplan

5242 St. Johann am Walde | Braunau am Inn

Lade...
Bernadette Mayer-Gratz

Bernadette Mayer-Gratz

REMAX Innova

Lade...

Fotomix

Bild 1 Bild 2 Bild 3 Bild 4 Bild 5 Bild 6 Bild 7