NEU - BAUBEWILLIGTER BAUGRUND | 2 Exklusive Doppelhäuser – 4 Einheiten | WNF ges. 655 m² | Hainbachgasse

Grundstück zum Kauf in 1140 Wien - Kaufpreis: 1.600.000 € / Objektnummer: 737
Ausstattung:

Preisinformationen

Kaufpreis:
1.600.000 €
Vermittlungsprovision:
Ja
Provision:
3% des Kaufpreises zzgl. 20% USt.

Fakten

Objektnummer:
737
Objekttyp:
Grundstück
Wohnfläche:
655 m²
Grundstücksfläche:
1.436 m²
Verfügbarkeit:
Verfügbar

Beschreibung

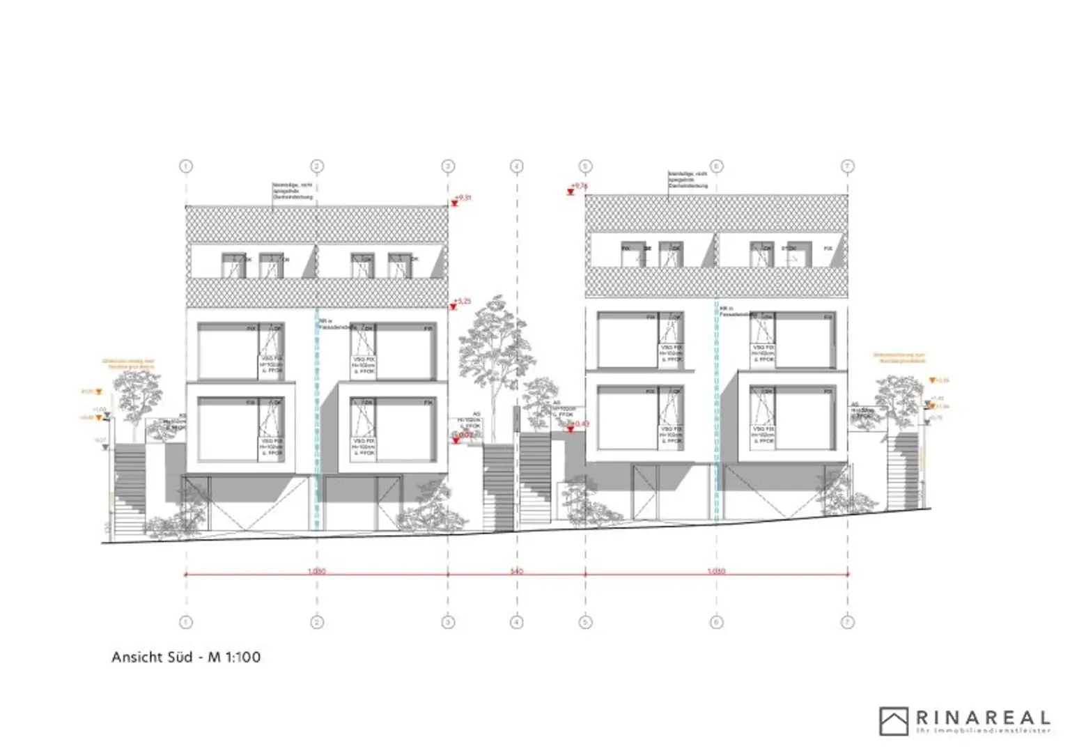
Die zum Verkauf stehende Liegenschaft bietet eine attraktive Möglichkeit zur Errichtung von zwei Doppelhäusern (sohin vier Wohneinheiten) und eignet sich damit ideal für Bauträger, Projektentwickler oder Investoren.

Das Grundstück befindet sich in einer ruhigen Wohnlage und überzeugt durch die gelungene Kombination aus guter Infrastruktur und naturnaher Umgebung. Eine Baugenehmigung sowie eine umfassende Projektplanung sind bereits vorhanden.

Zu den Eckdaten:

* Grundstücksfläche: ca. 1.436 m²
* Genehmigtes Projekt: 2 Doppelhäuser, somit 4 Einheiten mit insgesamt ca. 655,40 m² erzielbarer Wohnnutzfläche | ung. 163,85 WNF m² pro Doppelhaushälfte | 6 Garagenstellplätze
* Bruttogeschossfläche (BGF): KG 250,42 m² | EG 299,74 m² | OG 295,62 m² | DG 295,62 m² | Gesamt 1.141,40 m²
*
Stellplatznachweis WGarG 2008: WNF gesamt 655,4 m² | 655,40m² / 100m² = 6 Stellplätze auf Eigengrund

Flächenwidmung: W I 6,5m o BB 1,3 G

* Besondere Bebauungsbestimmungen:
* BB 1: Max. 25% des Bauplatzes bebaut. Je Gebäude max. 150m2
* BB 3: Nur Kleinhäuser gem. § 116 (1) BO Wien

Die Liegenschaft in der Hainbachgasse in 1140 Wien überzeugt durch ihre attraktive Lage im grünen Stadtteil Penzing, nahe Auhof Center. Die ausgezeichnete Infrastruktur bietet alle Annehmlichkeiten für ein komfortables und modernes Wohnen:

* Vielfältige Einkaufsmöglichkeiten, Supermärkte, Ärzte und Apotheken befinden sich in der näheren Umgebung
* Schulen, Kindergärten und Betreuungseinrichtungen sind bequem erreichbar
* Die Bushaltestelle der Linie 49B ist nur ca. 210 m entfernt
* Zahlreiche Wald- und Wanderwege liegen praktisch vor der Haustüre und laden zu erholsamen Spaziergängen ein
* Ein breites Angebot an Freizeit- und Erholungsmöglichkeiten sorgt für hohe Lebensqualität

Die Umgebung kombiniert städtischen Komfort mit naturnahen Qualitäten - ideal für zukünftige Bewohner.

Für nähere Informationen, sowie für Ihren persönlichen Besichtigungstermin erreichen Sie mich am besten unter: +43 664 14 24 164 [tel:+436641424164] oder katharina@rinareal.at - Katharina Hlawaty, MA

Hinweis gemäß Energieausweisvorlagegesetz: Ein Energieausweis wurde vom Eigentümer bzw. Verkäufer, nach unserer Aufklärung über die generell geltende Vorlagepflicht, sowie Aufforderung zu seiner Erstellung noch nicht vorgelegt. Daher gilt zumindest eine dem Alter und der Art des Gebäudes entsprechende Gesamtenergieeffizienz als vereinbart. Wir übernehmen keinerlei Gewähr oder Haftung für die tatsächliche Energieeffizienz der angebotenen Immobilie.

Wir weisen darauf hin, dass zwischen dem Vermittler und dem zu vermittelnden Dritten ein familiäres oder wirtschaftliches Naheverhältnis besteht.

Der Vermittler ist als Doppelmakler tätig.

Infrastruktur / Entfernungen

Gesundheit
Arzt <2.500m
Apotheke <2.500m
Klinik <7.000m
Krankenhaus <6.500m

Kinder & Schulen
Schule <4.500m
Kindergarten <4.500m
Universität <4.000m
Höhere Schule <9.000m

Nahversorgung
Supermarkt <3.000m
Bäckerei <4.000m
Einkaufszentrum <4.500m

Sonstige
Geldautomat <4.000m
Bank <4.000m
Post <4.000m
Polizei <2.500m

Verkehr
Bus <500m
Straßenbahn <6.000m
U-Bahn <6.500m
Bahnhof <4.500m
Autobahnanschluss <5.000m

Angaben Entfernung Luftlinie / Quelle: OpenStreetMap
Beschreibung weiterlesen

Grundrisse

Lageplan

1140 Wien | Wien 14., Penzing

Lade...
Katharina Hlawaty

Katharina Hlawaty
Geschäftsführung

RINAREAL Immobilien Entwicklungs- und Vermarktungsgesellschaft mbH

Lade...

Fotomix

Bild 1 Bild 2 Bild 3 Bild 4 Bild 5