NEU - Baubewilligter Rohdachboden in zentraler Lage in Wien.

Investment zum Kauf in 1050 Wien - Kaufpreis: 849.000 € / Objektnummer: 5098
Baubewilligter Rohdachboden in zentraler Lage in Wien.

Preisinformationen

Kaufpreis:
849.000 €
Vermittlungsprovision:
Ja
Provision:
3% des Kaufpreises zzgl. 20% USt.

Fakten

Objektnummer:
5098
Objekttyp:
Investment
Wohnfläche:
278,99 m²
Nutzfläche:
436,86 m²
Baujahr:
1910
Altbau:
Ja
Verfügbarkeit:
Verfügbar

Beschreibung

_Im Falle der Notwendigkeit einer Fremdfinanzierung Ihrer Wunschimmobilie ermittelt unser Wohnbau-Finanzierungsexperte gerne die optimale Finanzierungslösung und findet das passende Zins- und Konditionsangebot für Sie. Er vergleicht die aktuellen Angebote aller relevanten Banken und Bausparkassen. Der Angebotsvergleich kann aus einem Portfolio von über 120 Banken erfolgen. Das Erstgespräch ist für Sie kostenfrei und unverbindlich, gerne auch bei Ihnen vor Ort. So sparen Sie Ihre wertvolle Zeit und erhalten eine professionelle und unabhängige Finanzierungslösung vom Spezialisten. Sprechen Sie uns wegen eines Termins gerne an!_

 

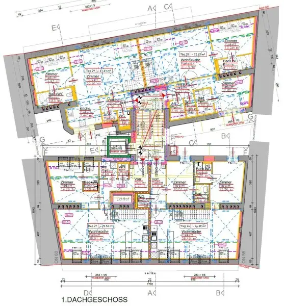
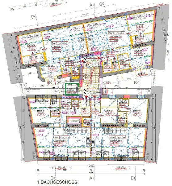
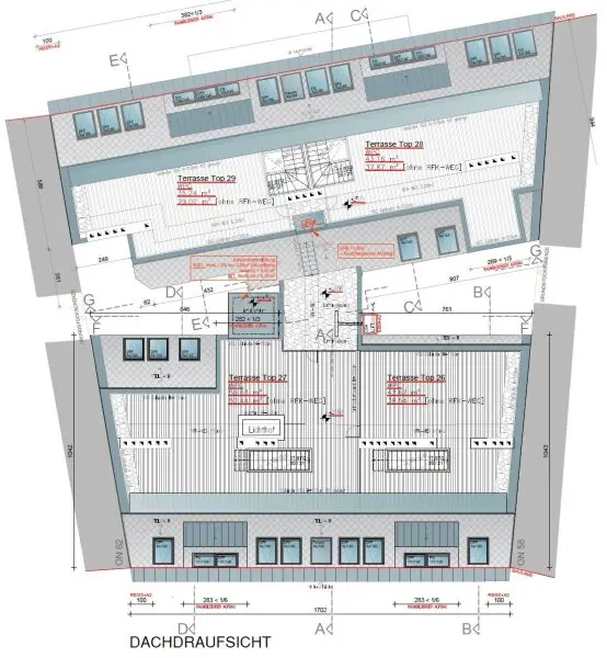
Zum Verkauf gelangt ein baubewilligter Rohdachboden im 5. Wiener Gemeindebezirk. Lift im Haus ist vorhanden.

Die beigelegte Einreichplanung sieht einen Dachgeschossausbau mit 4 Wohneinheiten vor, wodurch eine Wohnfläche von ca. 279 m² erzielt werden könnte. Zusätzlich ist zu jeder Wohneinheit eine Dachterrasse geplant.

Die Flächen teilen sich wie folgt auf:
- Top 26: 3-Zimmer Wohnung mit ca. 74,22 m² und ca. 38,54 m² Terrasse.
- Top 27: 2-Zimmer Wohnung mit ca. 70,53 m² und ca. 52,44 m² Terrasse.
- Top 28: 3-Zimmer Wohnung mit ca. 72,63 m² und ca. 37,87 m² Terrasse.
- Top 29: 2-Zimmer Wohnung mit ca. 61,61 m² und ca. 29,02 m² Terrasse.

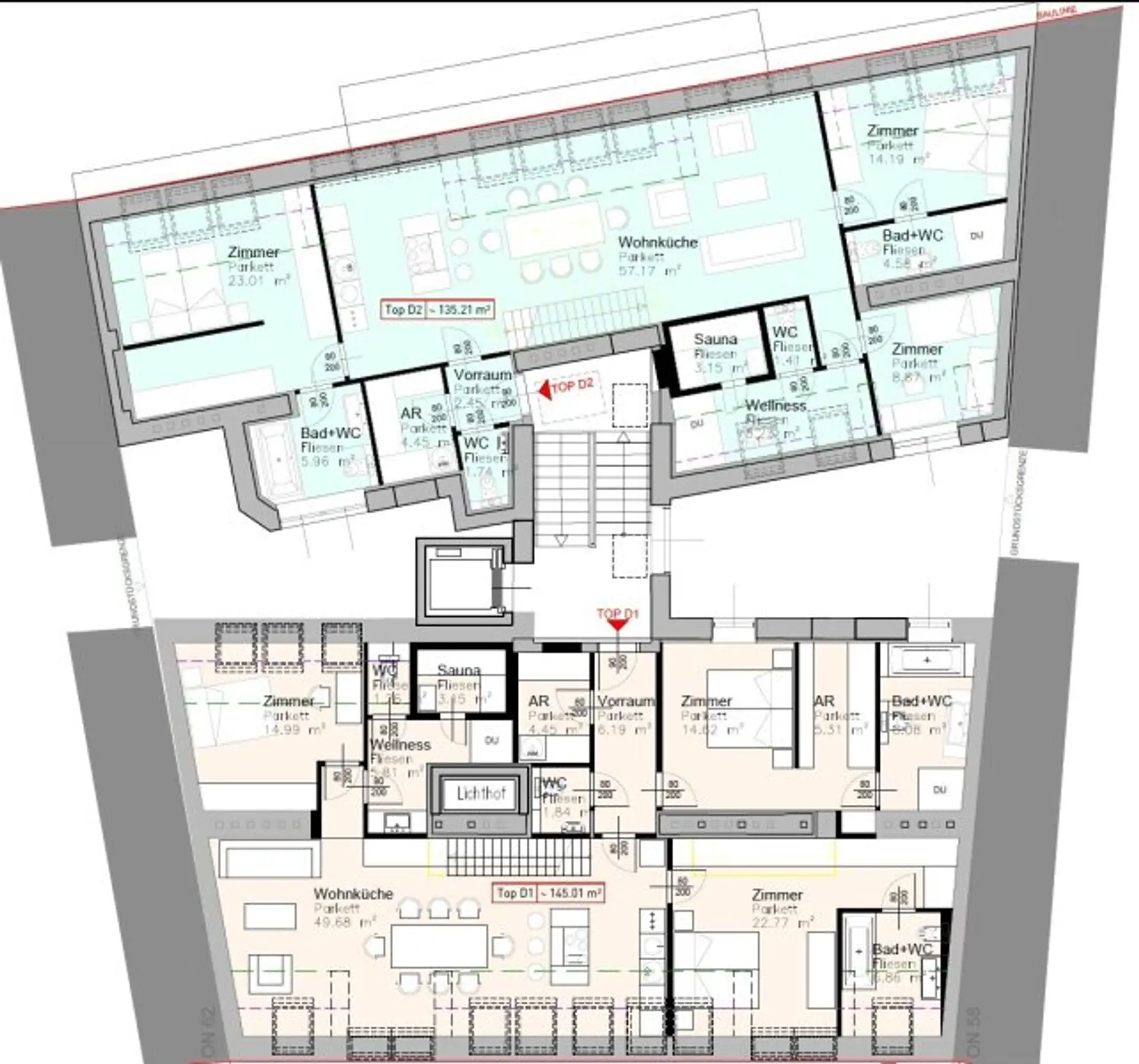
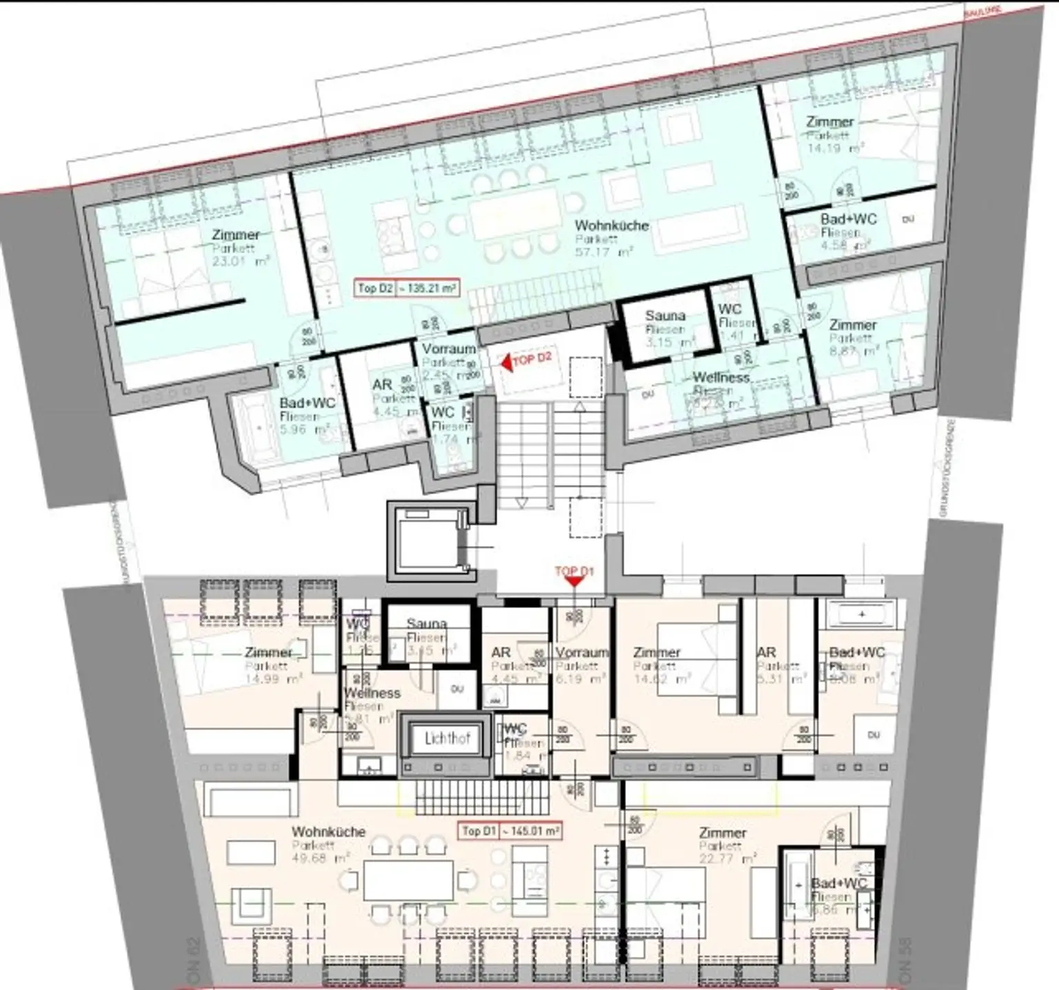
Alternativ gibt es eine weitere Baustudie, die den Bau von 2 Einheiten mit jeweils einer Terrasse vorsieht. Hierfür müsste allerding neu eingereicht werden.
Hier teilen sich die Flächen wie folgt auf:
- Top D1: 4-Zimmer Wohnung mit ca. 145,01 m² und ca. 95,45 m² Terrasse.
- Top D2: 4-Zimmer Wohnung mit ca. 135,21 m² und ca. 71,95 m² Terrasse.

Die Lage und Infrastruktur des 1910 erbauten Gründerzeithauses ist als sehr gut zu bewerten. In unmittelbarer Nähe befinden sich diverse Geschäfte des täglichen Lebens (Supermarkt, Kiosk etc.). Ebenso sind mehrere Restaurants fußläufig erreichbar. Die Anbindung an den öffentlichen Verkehr ist durch die U4 sowie die Autobuslinien 12A, 13A und 59A gewährleistet. Für genauere Informationen zur Infrastruktur, fordern Sie bitte unser Exposé an.

Gerne lassen wir Ihnen bei ernsthaftem Interesse - vor Kaufanbotlegung - weitere vertraulichen Dokumente zu dieser Liegenschaft zukommen, welche nicht veröffentlicht werden dürfen.

Überzeugen Sie sich selbst von diesem überaus attraktiven Entwicklungsobjekt. Für Besichtigungen und nähere Informationen stehen wir Ihnen gerne zur Verfügung!

Mag. Viola Wasmuth
national - Tel: 0670 4039361 [tel:06704039361]
international - Tel: +43 670 4039361 [/+436704039361]
e-mail: wasmuth@lifestyle-properties.at

Wir weisen darauf hin, dass zwischen dem Vermittler und dem zu vermittelnden Dritten ein familiäres oder wirtschaftliches Naheverhältnis besteht.

Der Vermittler ist als Doppelmakler tätig.

 

 

Infrastruktur / Entfernungen

Gesundheit
Arzt <500m
Apotheke <500m
Klinik <500m
Krankenhaus <1.000m

Kinder & Schulen
Schule <500m
Kindergarten <500m
Universität <1.000m
Höhere Schule <500m

Nahversorgung
Supermarkt <500m
Bäckerei <500m
Einkaufszentrum <1.000m

Sonstige
Geldautomat <500m
Bank <500m
Post <500m
Polizei <500m

Verkehr
Bus <500m
U-Bahn <500m
Straßenbahn <1.000m
Bahnhof <500m
Autobahnanschluss <4.000m

Angaben Entfernung Luftlinie / Quelle: OpenStreetMap
Beschreibung weiterlesen

Lage und Verkehrsanbindung

U4 Pilgramgasse

Grundrisse

Lageplan

1050 Wien | Wien 5., Margareten

Lade...
Viola Wasmuth

Viola Wasmuth
Real Estate Agent

IM Lifestyle Properties GmbH

Lade...

Fotomix

Bild 1 Bild 2 Bild 3 Bild 4 Bild 5 Baubewilligter Rohdachboden in zentraler Lage in Wien.