NEU - Baugrundstück in absoluter Ruhelage am Attendorfberg/ Nähe Seiersberg

Grundstück zum Kauf in 8054 Graz-Straßgang - Kaufpreis: 176.000 € / Objektnummer: 1608
Zielfoto
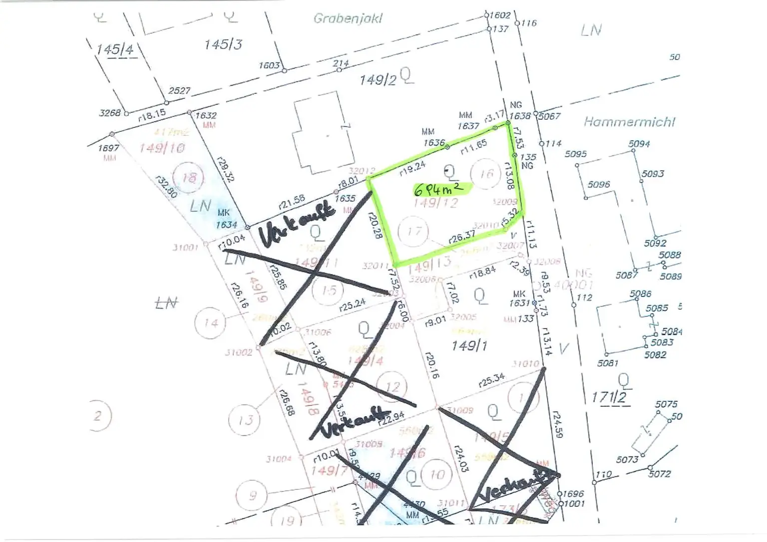
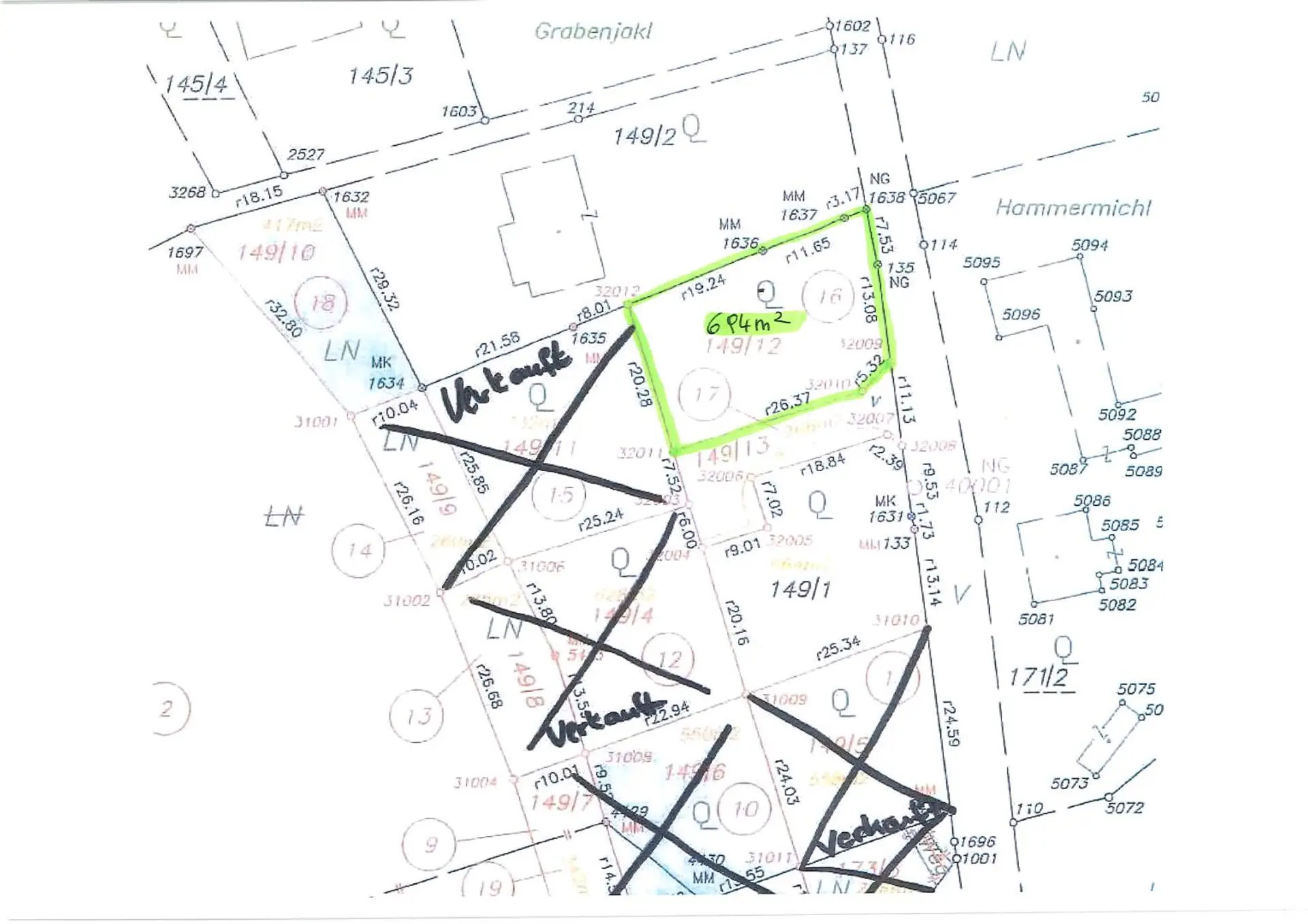
Lageplan markiert 694 m²
Ansicht 6
Ansicht 8
Ansicht 9
Ansicht 5

Preisinformationen

Kaufpreis:
176.000 €
Provision:
3.60 %

Fakten

Objektnummer:
1608
Objekttyp:
Grundstück
Grundstücksfläche:
694 m²
Verfügbarkeit:
Verfügbar

Beschreibung

Obj. Nr. 58, Baugrundstück in absoluter Ruhelage in Attendorfberg/ Nähe Seiersberg
mit 694 m² Grundstücksfläche und Weganteil, 0,2-0,4 Bebauungsdichte, Satteldach, kein Bebauungsplan,
keine Bebauungsfrist!, voll aufgeschlossen, wunderbare Aussichtslage
Kaufpreis € 176.000, - inkl. Aufschliessungskosten und Weganteil
Info: Frau Elisabeth Resch 0664-975 86 84, resch@immoresch.at

Nähe: Hitzendorf, Seiersberg, Tobelbad, Lieboch, Mantscha

Das angebotene Grundstück befindet sich in Attendorfberg, einer idyllischen und ländlich geprägten Gegend südwestlich von Graz. Die Liegenschaft besticht durch ihre absolut ruhige Lage – fernab vom Durchzugsverkehr, eingebettet in die sanften Hügel der Weststeiermark. Das Grundstück ist voll aufgeschlossen – sämtliche Anschlüsse wie Strom, Wasser, Kanal, befinden sich auf dem Grundstück.
Beschreibung weiterlesen

Dokumente

Elisabeth Resch

Elisabeth Resch

Immobilien Resch GmbH

Lade...

Fotomix

Zielfoto Lageplan markiert 694 m² Ansicht 6 Ansicht 8 Ansicht 9 Ansicht 5