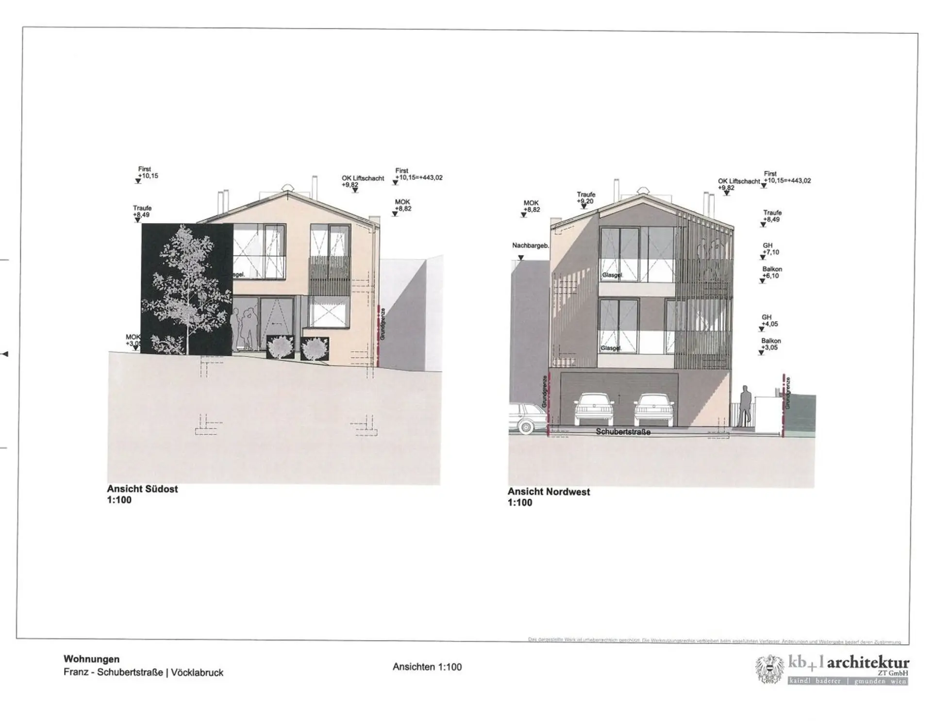
NEU - ( Bauprojekt ) !! Baugrund inkl. Baugenehmigung für 3 Wohnungen in Vöcklabruck: mit Garten, Terrasse, 2 Balkonen & 3 Stellplätzen!

Grundstück zum Kauf in 4840 Vöcklabruck - Kaufpreis: 298.800 €
Ausstattung: Außenparkplatz Balkon Terrasse

Preisinformationen

Kaufpreis:
298.800 €
Vermittlungsprovision:
Ja

Fakten

Objekttyp:
Grundstück
Balkon:
1
Terrasse:
1
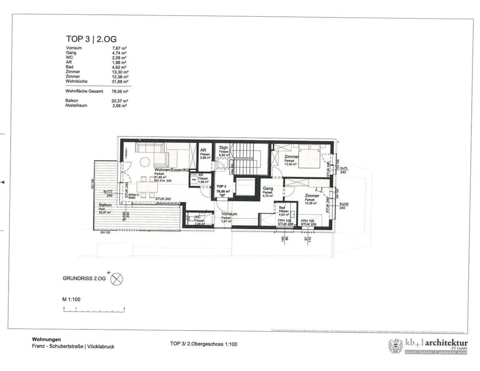
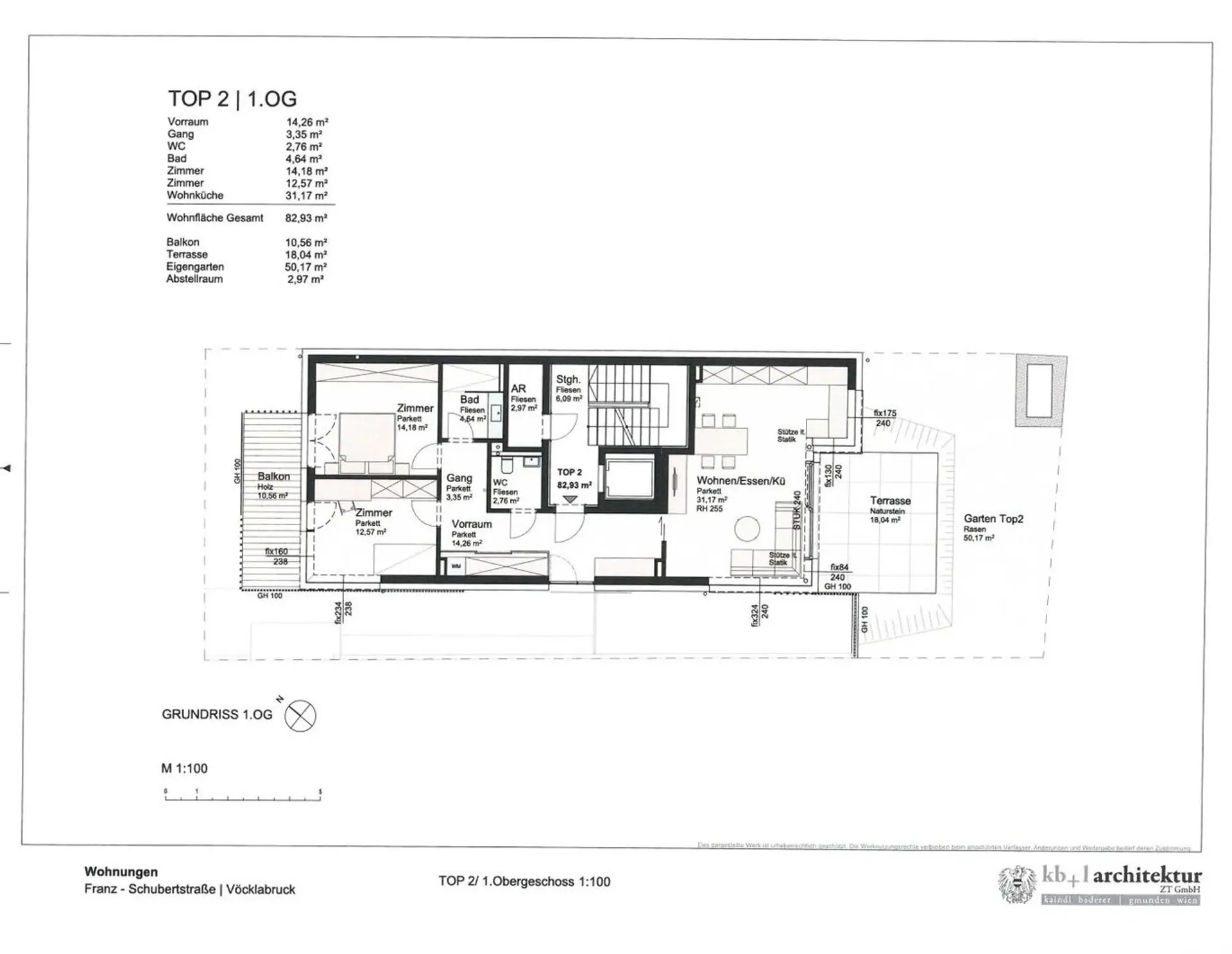
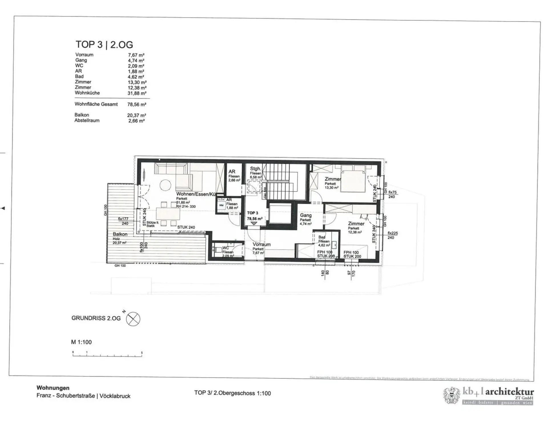
Nutzfläche:
201 m²
Grundstücksfläche:
298 m²
Neubau:
Ja
Verfügbarkeit:
Verfügbar

Beschreibung

Ihr Traum vom Eigenheim beginnt hier - auf diesem attraktiven Baugrundstück in 4840 Vöcklabruck, können 3 Eigentumswohnungen errichtet werden . Dieses Grundstück bietet die perfekte Basis, um Ihr individuelles Zuhause g…
Beschreibung weiterlesen

E.R. Immobilien GmbH

Lade...

Fotomix

Bild 1 Bild 2 Bild 3 Bild 4 Bild 5 Bild 6