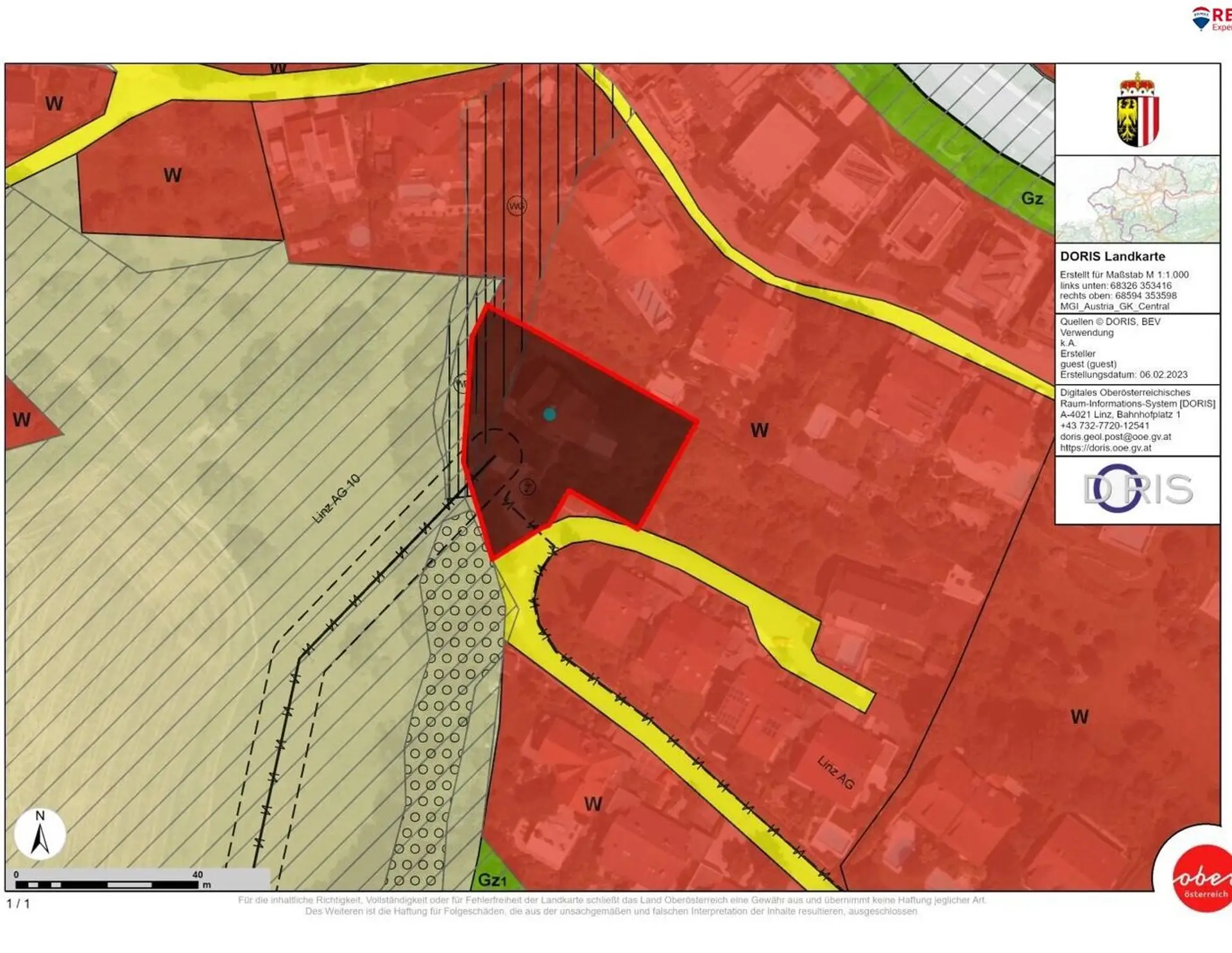
NEU - Bauträger 1.665 m² Grosses Baugrundstück mit Bestand in Bestlage

Grundstück zum Kauf in 4040 Linz - Kaufpreis: 1.349.000 €
Ausstattung:

Preisinformationen

Kaufpreis:
1.349.000 €
Vermittlungsprovision:
Ja

Fakten

Objekttyp:
Grundstück
Grundstücksfläche:
1.665 m²
Neubau:
Ja
Verfügbarkeit:
Verfügbar

Beschreibung

***Bauträger*** 1.665 m² grosses Baugrundstück mit Bestand in Bestlage Zum Verkauf steht ein rund 1.665 m² großes, süd-westlich ausgerichtetes Grundstück welches sich in exklusiver und begehrter Lage befindet. Das Gr…
Lade...

Fotomix

Bild 1 Bild 2