NEU - BESTLAGE GEIDORF I FISCHGRÄTPARKETT I SANIERUNGSOBJEKT MIT POTENZIAL I OSTBALKON I LICHTDURCHFLUTET I PROJEKT WOHNEN

Wohnung zum Kauf in 8010 Graz - Kaufpreis: 239.900 € / Objektnummer: 38409
Ausstattung: Boden Bad Balkon

Preisinformationen

Kaufpreis:
239.900 €
Kaufpreis/m²
2.803,88 €
Betriebskosten netto:
186,44 € / Monat
Preisinfos:
Darlehen per 30.11.2025: 5.419,97 €
Vermittlungsprovision:
Ja
Provision:
3% des Kaufpreises zzgl. 20% USt.

Fakten

Objektnummer:
38409
Objekttyp:
Wohnung
Balkon:
1
Balkonfläche:
4,18 m²
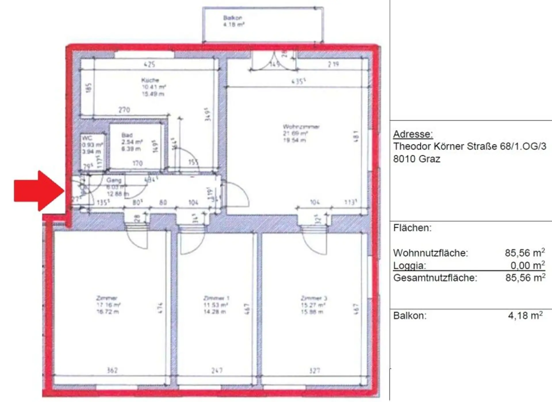
Wohnfläche:
85,56 m²
Nutzfläche:
85,56 m²
Zimmer:
4
Badezimmer:
1
Toilette:
1
Stockwerk:
1
Baujahr:
1958
Altbau:
Ja
Zustand:
Sanierungsbedürftig
Verfügbarkeit:
Verfügbar
Verfügbar ab:
ab sofort!

Beschreibung

Ankommen. Durchatmen. Gestalten. – 4-Zimmer-Wohnung mit Balkon in Graz-Geidorf

 

* Gefragte Lage in 8010 Graz-Geidorf 
In einem etablierten, beliebten Grazer Wohnbezirk gelegen – mit hervorragender Infrastruktur, angenehmem Wohnumfeld und kurzer Erreichbarkeit von Stadtleben, Nahversorgung und Erholungsräumen.
* Großzügige Wohnfläche mit idealer Grundstruktur: 85,56 m² im 1. Stock
Die Wohnung bietet viel Platz für Paare, Familien oder anspruchsvolle Stadtmenschen – und eine Raumaufteilung, die sich hervorragend modernisieren und individuell interpretieren lässt (Hinweis: _kein Lift_).
* 4 Zimmer mit Charakter – Fischgrätparkett in Vorraum & Wohnräumen
Vorraum und alle vier Zimmer sind mit einem schönen Parkett im Fischgrätmuster ausgestattet – eine klassische Basis mit Stil, die nach einer Sanierung wieder voll zur Geltung kommt.
* Helle, freundliche Atmosphäre dank vieler Fenster
Große Fensterflächen sorgen tagsüber für ein lichtdurchflutetes Wohngefühl und unterstreichen den offenen, einladenden Charakter der Räume.
* Ostbalkon mit 4,18 m² – direkt vom Wohnzimmer begehbar
Der Balkon ist östlich ausgerichtet und bietet einen wunderbaren Platz für Frühstück in der Morgensonne, Kräutertöpfe oder den ersten Kaffee mit Ausblick.
* Bad mit Fenster & Dusche + separates WC (extra begehbar)
Praktisch und alltagstauglich: Badezimmer mit Dusche und Fenster sowie ein separates WC, beide direkt vom Vorraum aus erreichbar.
* Sanierungsbedürftig – die perfekte Gelegenheit, Ihre Traumwohnung zu schaffen
Die Wohnung bietet die ideale Möglichkeit, Ihr Zuhause ganz nach Ihren eigenen Vorstellungen zu gestalten – inklusive freier Küchenplanung. Besonders attraktiv: Ein Anschluss an die Fernwärme kann direkt hergestellt werden.
* Zusätzlich stehen Besucherparkplätze direkt vor der Wohnanlage zur Verfügung.

 

 

 

 

Wohnen mit Potenzial in einer sehr gepflegten Wohnanlage

 

Diese Wohnung befindet sich in einer sehr gepflegten Wohnanlage in der Theodor-Körner-Straße 68 in 8010 Graz. Auf 85,56 m² im 1. Stock erwartet Sie eine Wohnung, die mit ihrer großzügigen Zimmeranzahl, dem klassischen Fischgrätparkett und der hellen Fensterfront eine ausgezeichnete Grundlage für ein hochwertiges Zuhause bietet. Die Wohnung liegt im 1. Stock, ohne Lift – angenehm überschaubar und in vielen Fällen genau die richtige Balance.

Beim Betreten gelangen Sie in den Vorraum, von dem aus das separat begehbare WC sowie das Badezimmer mit Dusche und Fenster erreichbar sind. Die vier Zimmer sind großzügig geschnitten und verfügen über große Fenster, die für eine freundliche, offene Stimmung sorgen. Ein besonderes Highlight ist der Balkon mit 4,18 m², der direkt vom Wohnzimmer aus betreten wird und durch die Ostausrichtung einen wunderbaren Start in den Tag ermöglicht.

Da keine Küche vorhanden ist, bietet sich Ihnen die ideale Möglichkeit, Ihre eigene Traumküche ganz nach Ihren Bedürfnissen – ob offen, modern, klassisch oder designorientiert – zu planen und umzusetzen. Der sanierungsbedürftige Zustand eröffnet dabei insgesamt viel Gestaltungsspielraum, um aus einer soliden Basis ein Zuhause mit Persönlichkeit zu machen.

Die Wohnung kann direkt an die Fernwärme angeschlossen werden, wodurch eine effiziente und zukunftssichere Heizlösung geschaffen werden kann. Besucherparkplätze befinden sich direkt vor der Wohnanlage.

Ein zugeordnetes Kellerabteil ergänzt das Angebot und sorgt für praktischen Stauraum – ideal für Sportequipment, Saisonales oder einfach alles, was man gerne ordentlich verstaut.

Ich freue mich auf Ihre Anfrage und darauf, Ihnen diese wunderschöne Wohnung bei einem persönlichen Besichtigungstermin präsentieren zu dürfen.

Der Vermittler ist als Doppelmakler tätig.

Infrastruktur / Entfernungen

Gesundheit
Arzt <150m
Apotheke <125m
Klinik <875m
Krankenhaus <875m

Kinder & Schulen
Schule <275m
Kindergarten <225m
Universität <525m
Höhere Schule <575m

Nahversorgung
Supermarkt <250m
Bäckerei <350m
Einkaufszentrum <1.700m

Sonstige
Geldautomat <225m
Bank <225m
Post <250m
Polizei <1.350m

Verkehr
Bus <50m
Straßenbahn <100m
Bahnhof <1.175m
Autobahnanschluss <5.350m

Angaben Entfernung Luftlinie / Quelle: OpenStreetMap
Beschreibung weiterlesen

Lage und Verkehrsanbindung

Die Theodor-Körner-Straße 68 befindet sich im beliebten Grazer Bezirk Geidorf, einer der gefragtesten und lebenswertesten Wohnlagen der Stadt. Die Lage überzeugt durch ihre ideale Kombination aus zentraler Erreichbarkeit und angenehmer Wohnruhe.
In unmittelbarer Umgebung finden sich zahlreiche Einkaufsmöglichkeiten, Supermärkte, Apotheken, Cafés und Restaurants, die den Alltag besonders komfortabel gestalten. Auch die Karl-Franzens-Universität Graz, die Medizinische Universität sowie das LKH Graz sind schnell erreichbar – ideal für Studierende, medizinisches Personal oder Berufstätige.
Die Grazer Innenstadt sowie der beliebte Stadtpark liegen nur wenige Minuten entfernt und bieten vielfältige Freizeit- und Erholungsmöglichkeiten. Auch sportliche Aktivitäten kommen durch nahegelegene Grünflächen und Radwege nicht zu kurz.
Die Anbindung an den öffentlichen Verkehr ist ausgezeichnet: Mehrere Straßenbahn- und Buslinien befinden sich in Gehweite und ermöglichen eine schnelle Verbindung in alle Stadtteile sowie zum Hauptbahnhof.
Insgesamt bietet die Lage rund um die Theodor-Körner-Straße 68 eine perfekte Mischung aus urbanem Leben, hervorragender Infrastruktur und hoher Lebensqualität – ein idealer Wohnort für alle, die Graz in vollen Zügen genießen möchten.

Karl-Franzens-Universität Graz, Botanischer Garten Graz

Energieeffizienz

HWB:
78,4 kWh/(m²*a)
HWB Klasse:
C
fGEE:
1,01
fGEE Klasse:
C
Energieausweisart:
Energiebedarfs-ausweis
Gültig bis:
21.08.2033

Grundriss

Lageplan

8010 Graz | Graz (Stadt)

Lade...
Sabina Maitz

Sabina Maitz
Projekt Wohnen

Projekt Wohnen Gruppe GmbH

Lade...

Fotomix

Bild 1 Bild 2 Bild 3 Bild 4 Bild 5 Bild 6 Bild 7 Bild 8 Bild 9 Bild 10 Bild 11 Bild 12 Bild 13 Bild 14