NEU - Bright Side - exklusive & außergewöhnliche Eigentumswohnung in Gmunden am Sonnenhang - Wohnen für Anspruchsvolle Top 5

Wohnung zum Kauf in 4810 Gmunden / Objektnummer: 1068/5013
Ausstattung: Fahrstuhl Zentralheizung Terrasse Garten
Ausblick
Baufortschritt
Rendering von vorne
Rendering von der Zufahrt-Seite
Rendering vom Gartengeschoss
Rendering
Rendering
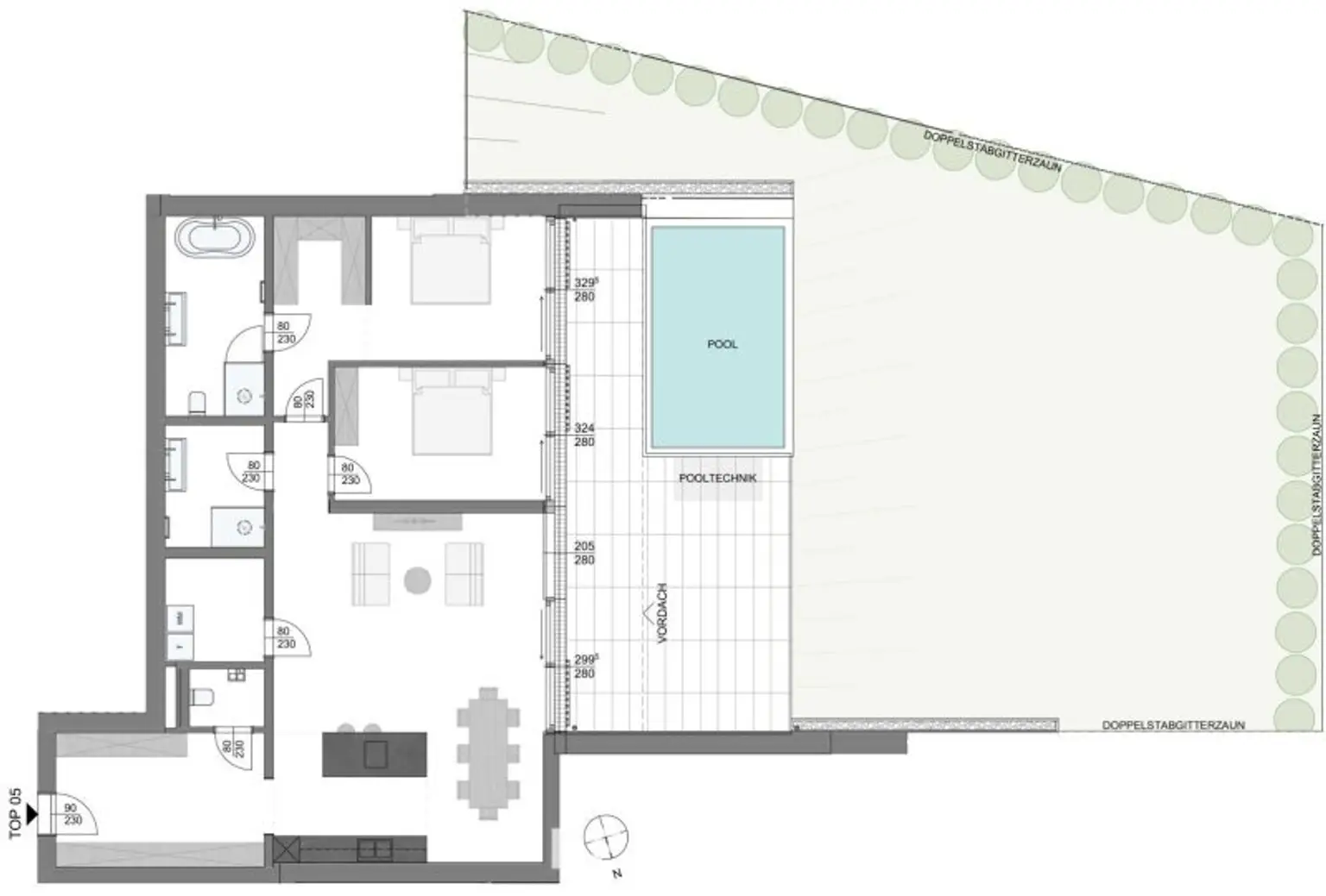
Plan zur Wohnung Top 5

Preisinformationen

Vermittlungsprovision:
Ja
Provision:
3% des Kaufpreises zzgl. 20% USt.

Fakten

Objektnummer:
1068/5013
Objekttyp:
Wohnung
Terrasse:
1
Keller Fläche:
14 m²
Wohnfläche:
125 m²
Gartenfläche:
180 m²
Zimmer:
3
Badezimmer:
2
Toilette:
2
Baujahr:
2025
Neubau:
Ja
Zustand:
Erstbezug
Verfügbarkeit:
Verfügbar

Beschreibung

6 luxuriöse Einheiten mit privatem Pool und traumhaftem Weitblick

In bester Lage am malerischen Sonnenhang in Gmunden entsteht ein architektonisches Meisterwerk mit nur sechs außergewöhnlichen Wohneinheiten. Die moderne Formensprache trifft auf zeitlose Eleganz – ein Rückzugsort für Menschen mit höchsten Ansprüchen.

Privatsphäre mit Panoramablick
Durch versetzte Baukörper und die durchdachte Höhenstaffelung bietet jede Einheit maximale Privatsphäre – bei gleichzeitig atemberaubender Aussicht auf Gmunden und den Traunsee. Großzügige Terrassen mit eigenem Pool erweitern den Wohnraum nach außen und schaffen exklusive Wohlfühlbereiche unter freiem Himmel.

Wohnen auf der Sonnenseite des Lebens
Lichtdurchflutete Räume, intelligente Grundrisse und eine hochwertige Bauweise vereinen sich zu einem Wohngefühl, das gleichermaßen stilvoll wie behaglich ist. Willkommen auf der hellen Seite des Wohnens – Welcome to the bright side.

Technik mit Weitblick
Für nachhaltigen Komfort sorgt eine zentrale Sole-Wasser-Wärmepumpe, die Heizung, Kühlung und Warmwasser effizient in einem System bündelt. So wird modernes Wohnen mit ökologischem Bewusstsein harmonisch verbunden.

Auf einen Blick
• 6 exklusive Wohneinheiten
• Jede Einheit mit großzügiger Terrasse und privatem Pool
• Höchste Privatsphäre und traumhafter Panoramaausblick
• Zentrale Sole-Wasser-Wärmepumpe für Heizung, Kühlung & Warmwasser
• Erstklassige Bauqualität in begehrter Lage von Gmunden

Infrastruktur / Entfernungen

Gesundheit
Arzt <1.500m
Apotheke <1.500m
Krankenhaus <2.500m
Klinik <3.000m

Kinder & Schulen
Schule <1.000m
Kindergarten <1.000m

Nahversorgung
Supermarkt <1.500m
Bäckerei <1.500m
Einkaufszentrum <2.500m

Sonstige
Bank <1.500m
Geldautomat <1.500m
Post <1.000m
Polizei <1.500m

Verkehr
Bus <500m
Straßenbahn <1.000m
Bahnhof <1.000m
Autobahnanschluss <8.000m
Flughafen <6.500m

Angaben Entfernung Luftlinie / Quelle: OpenStreetMap
Beschreibung weiterlesen

Lage und Verkehrsanbindung

Traunsee - Gmunden Zentrum

Energieeffizienz

HWB:
52 kWh/(m²*a)
HWB Klasse:
C
fGEE:
0,75
fGEE Klasse:
A
Energieausweisart:
Energiebedarfs-ausweis

Lageplan

4810 Gmunden | Gmunden

Lade...
Sabine Wenzel

Sabine Wenzel
akad. IM univ. - Assistentin der Geschäftsleitung

RE/MAX Traunsee

Lade...

Fotomix

Ausblick Baufortschritt Rendering von vorne Rendering von der Zufahrt-Seite Rendering vom Gartengeschoss Rendering Rendering Plan zur Wohnung Top 5