NEU - Büro in begehrter Lage des 4. Wiener Gemeindebezirks

Büro zum Kauf in 1040 Wien - Kaufpreis: 230.000 € / Objektnummer: 1924
Ausstattung: Fahrstuhl Möbliert Etagenheizung
Haus
Haus_Treppe
Raum 35 m2
WC
Aufzug
Haus
Haus_Treppe
Plan

Preisinformationen

Kaufpreis:
230.000 €
Provision:
3.00 %

Fakten

Objektnummer:
1924
Objekttyp:
Büro
Nutzfläche:
36,3 m²
Bürofläche:
36,3 m²
Baujahr:
1871
Altbau:
Ja
Zustand:
Gepflegt
Verfügbarkeit:
Verfügbar

Beschreibung

Lage

In hervorragender Lage des 4. Bezirks, in der charmanten Lambrechtgasse, präsentiert sich dieses repräsentative Gebäude als ideale Kombination aus historischer Substanz und zeitgemäßem Komfort. Die zentrale Lage bietet eine ausgezeichnete Infrastruktur sowie eine optimale Anbindung an den öffentlichen Verkehr und die Wiener Innenstadt.

Gebäude & Architektur

Das Objekt wurde im Jahr 1871 in massiver Bauweise errichtet und befindet sich in geschlossener Bauweise. Das Gebäude umfasst insgesamt fünf Geschosse (Erdgeschoß, 1.–3. Obergeschoß sowie ein bereits ausgebautes Dachgeschoß) und ist voll unterkellert.
Ein Lift ist vorhanden und sorgt für komfortable Erschließung aller Einheiten. Der historische Charakter des Hauses verleiht dem Objekt eine besondere Ausstrahlung und repräsentative Wirkung.

Die Einheiten wurden vor einigen Jahren renoviert und befinden sich in einem gepflegten, zeitgemäßen Zustand. Die Grundrisse sind funktional gestaltet.

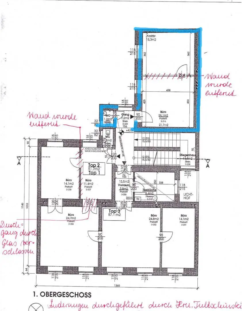
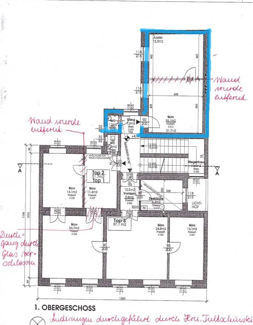
Aufteilung im Überblick:

1. Obergeschoß
Büro 2a - 35,1 m²
WC - ca. 1,2 m²

Kaufbedingungen

Kaufpreis gesamt: 230 000 Euro
Maklerprovision: 3% vom Kaufpreis, zzgl. 20% Ust.

Die Umwidmung von Büro- zu Wohnnutzung ist möglich.

Dieses stilvolle Wiener Zinshaus bietet repräsentative, renovierte Büroflächen in einer der gefragtesten innerstädtischen Lagen. Die gelungene Verbindung aus historischem Flair, moderner Ausstattung und flexibler Nutzbarkeit macht das Objekt sowohl für Eigennutzer als auch für Anleger besonders attraktiv.
Angaben gemäß gesetzlichem Erfordernis:
Heizwärmebedarf: 115.9 kWh/(m²a)
Klasse Heizwärmebedarf: D
Faktor Gesamtenergieeffizienz: 1.85
Klasse Faktor Gesamtenergieeffizienz: D
Beschreibung weiterlesen

Energieeffizienz

HWB Klasse:
D
fGEE:
1,85
fGEE Klasse:
D
Energieausweisart:
Energiebedarfs-ausweis
Maria Kohler

Maria Kohler

ImmoTrading GmbH

Lade...

Fotomix

Haus Haus_Treppe Raum 35 m2 WC Aufzug Haus Haus_Treppe Plan