NEU - CANAVESE - Urban wohnen, im Grünen leben - PROVISIONSFREI

Projekt / Wohnung zum Kauf in 1230 Wien / Objektnummer: 62460
Ausstattung: Barrierefrei Boden Fahrstuhl Tiefgarage Parkplatz Fahrradraum Abstellraum Fernwärme Fußbodenheizung

Preisinformationen

Preis von:
279.200,00 €
Preis bis:
642.000,00 €

Fakten

Objektnummer:
62460
Objekttyp:
Wohnung
Fläche von:
41,99 m²
Fläche bis:
114,79 m²
Baujahr:
2027
Neubau:
Ja
Zustand:
Erstbezug
Verfügbarkeit:
Verfügbar

Beschreibung

Der Vermittler ist als Doppelmakler tätig.

Infrastruktur / Entfernungen

Gesundheit
Arzt <1.000m
Apotheke <500m
Klinik <500m
Krankenhaus <2.000m

Kinder & Schulen
Schule <500m
Kindergarten <500m
Universität <5.000m
Höhere Schule <4.500m

Nahversorgung
Supermarkt <500m
Bäckerei <500m
Einkaufszentrum <2.000m

Sonstige
Geldautomat <500m
Bank <500m
Post <2.000m
Polizei <2.000m

Verkehr
Bus <500m
U-Bahn <2.000m
Straßenbahn <2.000m
Bahnhof <500m
Autobahnanschluss <2.500m

Angaben Entfernung Luftlinie / Quelle: OpenStreetMap
Beschreibung weiterlesen

Lage und Verkehrsanbindung

Die Liegenschaft Canavesegasse 4, 1230 Wien liegt im beliebten Stadtteil Atzgersdorf und vereint ruhiges, grünes Wohnen mit einer sehr guten infrastrukturellen Anbindung und bietet damit eine ausgewogene Kombination aus höchster Wohnqualität, Erreichbarkeit und langfristiger Attraktivität.

Der Standort ist sowohl öffentlich als auch individuell sehr gut erreichbar. Der Bahnhof Wien Atzgersdorf (S-Bahn S2, S3, S4) sowie mehrere Buslinien gewährleisten eine direkte Anbindung an die U-Bahn-Linien U4 (Hietzing) und U6 (Alterlaa) sowie eine zügige Verbindung in die Wiener Innenstadt.

Die Nahversorgung ist umfassend und im unmittelbaren Umfeld gegeben. Supermärkte, Apotheken, Schulen, Kindergärten sowie medizinische Einrichtungen befinden sich in kurzer Distanz. Ergänzt wird das Angebot durch das Riverside Shopping Center sowie die Westfield Shopping City Süd. Grün- und Erholungsräume wie der Stadtpark Atzgersdorf und Spazierwege entlang der Liesing unterstreichen die Attraktivität und nachhaltige Wohnqualität des Standorts.

Atzgersdorf

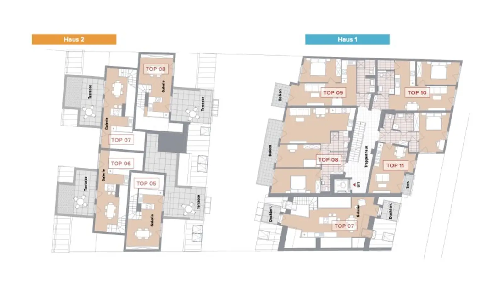
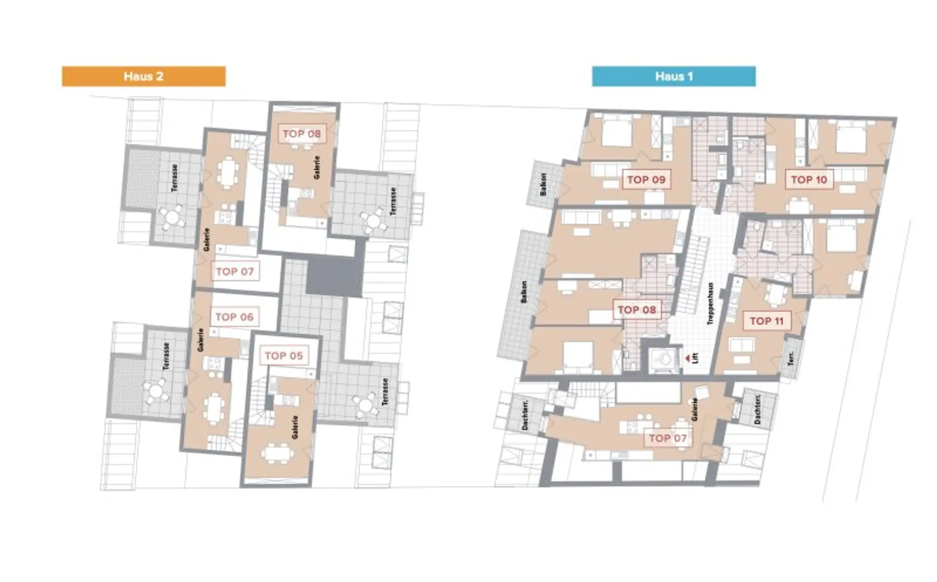
Verfügbare Wohneinheiten im Bauprojekt

Energieeffizienz

HWB:
31 kWh/(m²*a)
HWB Klasse:
B
fGEE:
0,75
fGEE Klasse:
B
Energieausweisart:
Energiebedarfs-ausweis
Gültig bis:
02.01.2036

Grundrisse

Lageplan

1230 Wien | Wien 23., Liesing

Lade...
Lia Seidel

Lia Seidel

AKKADIA Immobilienvermittlung GmbH

Lade...

Fotomix

Bild 1 Bild 2 Bild 3 Bild 4 Bild 5 Bild 6