NEU - City Fever – Zentral gelegene 2-Zimmer Eigentumswohnung mit Bahnhofsnähe!

Wohnung zum Kauf in 2700 Wiener Neustadt - Kaufpreis: 149.000 € / Objektnummer: 3155
Ausstattung: Boden Bad Rollladen Kabel/Satelliten-TV Fahrradraum Abstellraum Etagenheizung

Preisinformationen

Kaufpreis:
149.000 €
Betriebskosten netto:
172,32 € / Monat
Vermittlungsprovision:
Ja
Provision:
5.364,00 € inkl. 20% USt.

Fakten

Objektnummer:
3155
Objekttyp:
Wohnung
Wohnfläche:
62,68 m²
Zimmer:
2
Badezimmer:
1
Toilette:
1
Stockwerk:
2
Baujahr:
1953
Verfügbarkeit:
Verfügbar
Verfügbar ab:
nach Vereinbarung

Beschreibung

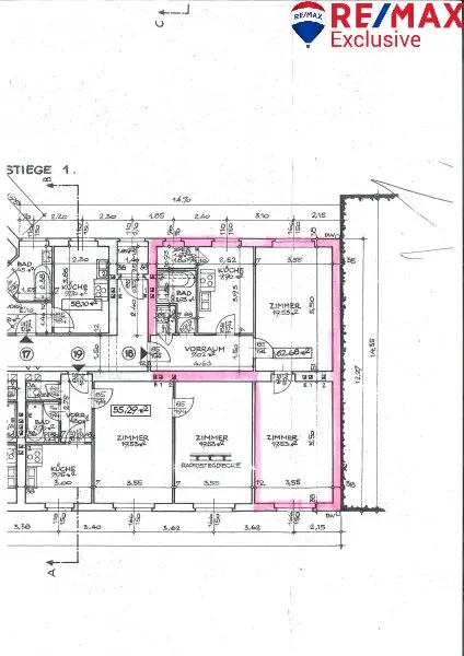
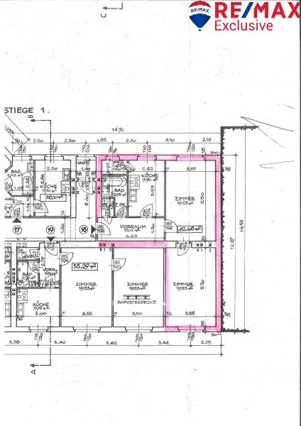
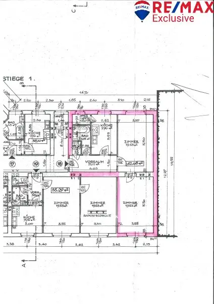
Diese charmante 2-Zimmer-Eigentumswohnung überzeugt durch ihre hervorragende Lage in unmittelbarer Nähe zum Bahnhof Wiener Neustadt sowie eine praktische Raumaufteilung auf ca. 62,68 m² Wohnfläche.

Die Wohnung befindet sich im 2. Stock (ohne Lift) eines Gebäudes aus dem Jahr ca. 1953 und eignet sich ideal für Pendler oder Anleger.

Highlights:

* Top-Lage nahe Bahnhof Wiener Neustadt
* 62,68 m² Wohnfläche, 2 Zimmer
* Gas-Etagenheizung (2006)
* Kunststofffenster, doppelt verglast mit Außenrollos
* Böden: Laminat & Fliesen
* sanierte Gasleitungen (ca. 2021)
* Bad + WC getrennt
* 2 Fenster in den Innenhof, 1 Fenster straßenseitg, zentral aber trotzdem ruhige Lage

Kaufpreis: € 149.000,-

Besichtigungsmöglichkeit besteht jederzeit nach Terminvereinbarung.

 

Aufgrund der Nachweispflicht gegenüber dem Eigentümer ersuchen wir um Verständnis, dass nur Anfragen mit der Angabe der vollständigen Anschrift und Telefonnummer bearbeitet werden können.

Wir weisen auf Ihre 14-tägige Rücktrittsfrist (gemäß § 11 FAGG ) hin. Um Ihre Rechte zu wahren, können nur Anfragen mit vollständigen Kontaktdaten (Name, Adresse, Telefon, Email) beantwortet werden.

Vor Ablauf der 14-tägigen Rücktrittsfrist werden wir gerne für Sie tätig, wenn Sie gesetzeskonform (FAGG) uns ausdrücklich (am einfachsten per E-Mail) dazu auffordern.

Wenn der Kaufvertrag/der Mietvertrag nicht zustande kommt, bleibt unsere Tätigkeit für Sie vollkommen kostenlos.

Gewährleistung:

Die Verkäuferseite gewährleistet, dass der Vertragsgegenstand ihr unbeschränktes Eigentum und frei von Geldlasten, Bestandrechten und sonstigen Rechten Dritter ist.

Ansonsten wird jede Gewährleistung der Verkäuferseite ausgeschlossen und festgestellt, dass sich dieser Gewährleistungsausschluss sowohl auf bestimmte als auch auf gewöhnlich vorausgesetzte Eigenschaften des Vertragsgegenstandes wie beispielsweise Lage, Größe, Zustand, Abnützung, Widmung, Beschaffenheit, Ertrag und Verwendungsmöglichkeit bezieht.

Der Vermittler ist als Doppelmakler tätig.

Infrastruktur / Entfernungen

Gesundheit
Arzt <500m
Apotheke <500m
Klinik <1.500m
Krankenhaus <1.500m

Kinder & Schulen
Schule <500m
Kindergarten <1.000m
Höhere Schule <1.500m
Universität <3.500m

Nahversorgung
Supermarkt <500m
Bäckerei <500m
Einkaufszentrum <1.500m

Sonstige
Bank <500m
Geldautomat <500m
Post <500m
Polizei <1.000m

Verkehr
Bus <500m
Autobahnanschluss <3.000m
Bahnhof <500m
Flughafen <2.500m

Angaben Entfernung Luftlinie / Quelle: OpenStreetMap
Beschreibung weiterlesen

Lage und Verkehrsanbindung

Bahnhof, Zentrum

Energieeffizienz

HWB:
157,6 kWh/(m²*a)
HWB Klasse:
E
fGEE:
3,58
fGEE Klasse:
F
Energieausweisart:
Energiebedarfs-ausweis
Gültig bis:
07.08.2029

Dokumente

Grundriss

Lageplan

2700 Wiener Neustadt | Wiener Neustadt (Stadt)

Lade...
Florian Skalnik, BSc MBA

Florian Skalnik, BSc MBA
Immobilienberater

REMAX Exclusive Brugger KG

Lade...

Fotomix

Bild 1 Bild 2 Bild 3 Bild 4 Bild 5 Bild 6 Bild 7 Bild 8 Bild 9 Bild 10 Bild 11 Bild 12 Bild 13 Bild 14 Bild 15 Bild 16 Bild 17