NEU - DAS LOFT I Erstbezüge I ~5 m hohe Decken I imposante Dachterrassen I U-Bahn-Nähe I

Projekt / Wohnung zum Kauf in 1040 Wien / Objektnummer: 16468
Ausstattung: Boden Fahrstuhl Wohnküche / offene Küche Bad Klimaanlage Fußbodenheizung
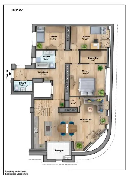
Top 27-OG
Top 27-DG
Top 28-OG
Top 28-DG
Top 27-OG
Top 27-DG
Top 28-OG
Top 28-DG

Preisinformationen

Preis von:
1.389.000,00 €
Preis bis:
1.449.000,00 €

Fakten

Objektnummer:
16468
Objekttyp:
Wohnung
Fläche von:
130,6 m²
Fläche bis:
130,8 m²
Neubau:
Ja
Zustand:
Erstbezug
Verfügbarkeit:
Verfügbar

Beschreibung

DAS LOFT - Luft. Raum. Freiheit. 

Inmitten einer gefragten Lage des 4. Bezirks, umgeben von hervorragender Infrastruktur und einem großzügigen Angebot an öffentlichen Verkehrsmitteln entstanden 2 neue Dachgeschoss-Wohnungen, die in ihrem Design nicht außergewöhnlicher sein könnten! 

Hier verschmilzt modernes Wohngefühl mit dem unverwechselbaren Charme eines Altbaus – ein Zusammenspiel, das diese Wohnungen zu echten Blickfängen macht.

Die beiden Dachgeschoss-Residenzen mit Wohnflächen von ca. 131 m² überzeugen mit offenen, lichtdurchfluteten Grundrissen, die das Bedürfnis nach Raum, Komfort und zeitgemäßem Wohnen widerspiegeln.

Einige der Highlights auf einen Blick: 

* 2 Dachgeschoss-Wohnungen mit außergewöhnlichem Design
* fast 5m hohe Decken 
* ca. 131m² Wohnflächen
* 4 Zimmer 
* Freifläche auf jeder Ebene 
* großzügige Dachterrassen mit Weitblick 
* 2 Bäder pro Wohneinheit 
* Fußbodenheizung 
* Luftwärmepumpe
* Klimaanlage 

Die Wohnungen befinden sich aktuell noch im belagsfertigen Zustand, werden vom Verkäufer jedoch schlüsselfertig übergeben - somit können evtl. Änderungswünsche noch berücksichtigt werden! 

Die Wohnungen im Überblick: 

* Top 27: Wfl.: ca. 130,8m²; 4 Zimmer; Terrassen: ca. 54,4m², Kaufpreis (schlüsselfertig): 1.389.000,- Euro
* Top 28: Wfl.: ca. 130,6m²; 4 Zimmer; Terrassen: ca. 62,2m², Kaufpreis (schlüsselfertig): 1.449.000,- Euro 

 

Die Lage:

Zentrale Lage zwischen innenstädtischem Flair und charmantem Altbau-Charakter. 
Nur einen Schritt vor die Tür und es ist schon alles fast zum Greifen nah! 
Der Hauptbahnhof ist nur wenige Gehminuten entfernt. Ein Spaziergang ist es bis zum Belvedere! 
Rund ums Haus findet man alles für den täglichen Bedarf: Geschäfte, Supermärkte, Bäckereien, Cafés und Restaurants — alles bequem erreichbar.

Hauptbahnhof: ca. 700m

U-Bahn: ca. 550m

Straßenbahn: 18 ca. 200m;  1 und 62 ca. 450m 
Bus: 13A ca. 400m 

Billa: ca. 300m

Kindergarten: ca. 130m
Volksschule: ca. 600m
Gymnasium: ca. 290m 
 

Gerne steht Ihnen Frau Maja Arsic für weitere Fragen bzw. flexibel gestaltbare Besichtigungstermine unter 0699 180 47 130 [tel:069918047130] zur Verfügung.  
www.ringsmuth-immobilien.at

Irrtum und Änderungen vorbehalten!

Top 27: 185,2 m² 1.389.000,00 € aktiv
Top 28: 130,6 m² 1.449.000,00 € aktiv

Infrastruktur / Entfernungen

Gesundheit
Arzt <500m
Apotheke <500m
Klinik <1.000m
Krankenhaus <500m

Kinder & Schulen
Schule <500m
Kindergarten <500m
Universität <500m
Höhere Schule <1.000m

Nahversorgung
Supermarkt <500m
Bäckerei <500m
Einkaufszentrum <500m

Sonstige
Geldautomat <500m
Bank <500m
Post <500m
Polizei <1.000m

Verkehr
Bus <500m
U-Bahn <500m
Straßenbahn <500m
Bahnhof <500m
Autobahnanschluss <3.000m

Angaben Entfernung Luftlinie / Quelle: OpenStreetMap
Beschreibung weiterlesen

Lage und Verkehrsanbindung

Hauptbahnhof: ca. 700m

U-Bahn: ca. 550m

Straßenbahn: 18 ca. 200m;  1 und 62 ca. 450m 
Bus: 13A ca. 400m 

Billa: ca. 300m

Kindergarten: ca. 130m
Volksschule: ca. 600m
Gymnasium: ca. 290m

Verfügbare Wohneinheiten im Bauprojekt

Energieeffizienz

HWB:
31 kWh/(m²*a)
HWB Klasse:
B
fGEE:
0,67
fGEE Klasse:
A+
Energieausweisart:
Energiebedarfs-ausweis

Grundrisse

Lageplan

1040 Wien | Wien 4., Wieden

Lade...
Maja Arsic

Maja Arsic
Immobilienfachberaterin

Alexander Ringsmuth GmbH

Lade...

Fotomix

Bild 1 Bild 2 Bild 3 Bild 4 Bild 5 Bild 6 Bild 7 Top 27-OG Top 27-DG Top 28-OG Top 28-DG