NEU - Eckreihenhaus ein Architekturjuwel in Ziegelmassivbauweise

Haus zum Kauf in 2100 Korneuburg - Kaufpreis: 529.000 € / Objektnummer: 83856
Ausstattung: Boden Bad Terrasse Garten

Preisinformationen

Kaufpreis:
529.000 €
Vermittlungsprovision:
Ja
Provision:
3% des Kaufpreises zzgl. 20% USt.

Fakten

Objektnummer:
83856
Objekttyp:
Haus
Terrasse:
1
Wohnfläche:
117 m²
Gartenfläche:
112 m²
Zimmer:
5
Badezimmer:
1
Toilette:
1
Neubau:
Ja
Zustand:
Erstbezug
Verfügbarkeit:
Verfügbar
Verfügbar ab:
Frühling 2026

Beschreibung

ARCHITEKTURJUWEL – DREI REIHENHÄUSER IN RUHIGER LAGE VON KORNEUBURG – QUALITÄT TRIFFT KOMFORT

Inmitten einer charmanten Wohngegend in der Leopold-Loibl-Siedlung in Korneuburg entstehen drei hochwertig ausgeführte Reihenhäuser in Ziegelmassivbauweise. Umgeben von gepflegten Einfamilienhäusern und einer ausgezeichneten Infrastruktur genießen Sie hier modernen Wohnkomfort in ruhiger, familienfreundlicher Lage.

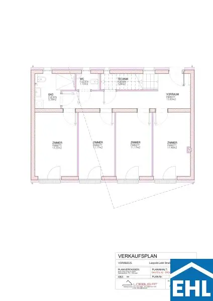
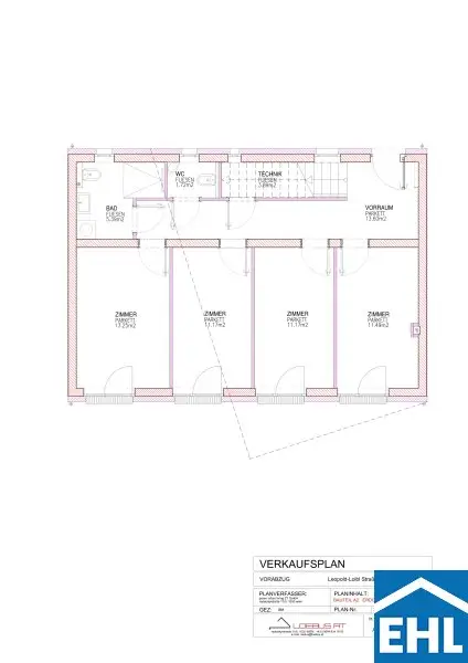
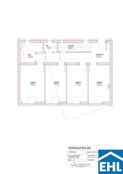
Jedes der drei Häuser bietet rund 117 m² Wohnfläche auf zwei durchdacht gestalteten Etagen – ideal für Familien und alle, die Wert auf Qualität, Funktionalität und zeitgemäßes Wohnen legen.

ERDGESCHOSS: RÜCKZUGSORT MIT GARTENANSCHLUSS

Drei helle, nach Osten ausgerichtete Schlafzimmer bieten direkten Zugang zum eigenen Garten und schaffen eine lichtdurchflutete, freundliche Wohnatmosphäre – perfekt für entspannte Morgenstunden und erholsame Rückzugsmöglichkeiten.

OBERGESCHOSS: OFFENES WOHNEN MIT STIL

Die großzügige Wohnküche lädt zum gemeinsamen Kochen, Essen und Verweilen ein. Hier verschmelzen Wohnqualität und Gemütlichkeit zu einem idealen Lebensmittelpunkt für die ganze Familie.
Das Badezimmer ist modern ausgestattet – mit eleganten Armaturen und stilvollen Keramiken.

HOCHWERTIGE AUSSTATTUNG MIT WEITBLICK

*
Luft/Wasser-Wärmepumpe für nachhaltige Energieversorgung

*
Vorbereitung für PV-Anlage und Klimaanlage

*
Dreifach verglaste Kunststofffenster mit Raffstores

*
Edler Parkettboden in allen Wohnräumen

*
Große Panorama-Glas-Schiebetür zur Terrasse

*
Stellplatz direkt vor dem Haus (EUR 15.000,– je Einheit)

LAGE MIT LEBENSQUALITÄT

Die ruhige, grüne Umgebung überzeugt mit Naherholungsgebieten, Parks und einer guten öffentlichen Anbindung nach Wien. Schulen, Kindergärten und Einkaufsmöglichkeiten sind schnell erreichbar – ideal für den Alltag mit Kindern.

BAURECHT MIT ZUKUNFT

Das Grundstück wird im rollierenden Baurecht auf 99 Jahre vergeben. Dieses Projekt bietet ein attraktives Preis-Leistungs-Verhältnis bei gleichzeitig langfristiger Nutzungssicherheit. Eine Indexierung der Pacht ist vereinbart.

Voraussichtliche Fertigstellung: Anfang 2027
Provision: 3 % Käuferprovision
Hinweis: Fotos zeigen ein bestehendes Reihenhaus (Symbolfoto)

STILVOLLES ECKREIHENHAUS IN RUHIGER LAGE VON KORNEUBURG – QUALITÄT TRIFFT KOMFORT

Inmitten einer charmanten Wohngegend in der Leopold-Loibl-Siedlung in Korneuburg erwartet Sie dieses hochwertig ausgeführte Eckreihenhaus in Ziegelmassivbauweise. Umgeben von gepflegten Einfamilienhäusern und einer ausgezeichneten Infrastruktur, genießen Sie hier rund 117 m² Wohnfläche auf zwei durchdacht gestalteten Etagen – ideal für Familien und alle, die modernen Wohnkomfort schätzen.

ERDGESCHOSS: RÜCKZUGSORT MIT GARTENANSCHLUSS

Drei helle, nach Osten ausgerichtete Schlafzimmer bieten direkten Zugang zum Garten und schaffen eine lichtdurchflutete, freundliche Wohnatmosphäre – perfekt für entspannte Morgenstunden.

OBERGESCHOSS: OFFENES WOHNEN MIT STIL

Die großzügige Wohnküche lädt zum gemeinsamen Kochen, Essen und Verweilen ein. Hier verschmelzen Wohnqualität und Gemütlichkeit zu einem idealen Lebensmittelpunkt für die ganze Familie. Das Badezimmer ist modern ausgestattet – mit eleganten Armaturen und stilvollen Keramiken.

HOCHWERTIGE AUSSTATTUNG MIT WEITBLICK

*
Luft/Wasser-Wärmepumpe für nachhaltige Energieversorgung

*
Vorbereitung für PV-Anlage und Klimaanlage

*
Dreifach verglaste Kunststofffenster mit Raffstores

*
Edler Parkettboden in allen Wohnräumen

*
Große Panorama-Glas-Schiebetür zur Terrasse

*
Stellplatz direkt vor dem Haus (EUR 15.000,–)

LAGE MIT LEBENSQUALITÄT

Die ruhige, grüne Umgebung punktet mit Naherholungsgebieten, Parks und guter öffentlicher Anbindung nach Wien. Schulen, Kindergärten und Einkaufsmöglichkeiten sind schnell erreichbar – ideal für den Alltag mit Kindern.

BAURECHT MIT ZUKUNFT

Das Grundstück wird im rollierenden Baurecht auf 99 Jahre vergeben. Mit einem monatlichen Pachtzins von nur EUR 354,- bietet dieses Objekt ein attraktives Preis-Leistungs-Verhältnis bei gleichzeitig langfristiger Nutzungssicherheit. Für die Pacht ist eine Indexierung vereinbart.

Voraussichtliche Fertigstellung: Winter 2026
Provision: 3 % Käuferprovision
Hinweis: Fotos sind von einem bestehendem Reihenhaus

Wir weisen darauf hin, dass zwischen dem Vermittler und dem zu vermittelnden Dritten ein familiäres oder wirtschaftliches Naheverhältnis besteht.

Der Vermittler ist als Doppelmakler tätig.

Infrastruktur / Entfernungen

Gesundheit
Arzt <3.250m
Apotheke <1.000m
Krankenhaus <1.000m
Klinik <5.250m

Kinder & Schulen
Schule <750m
Kindergarten <500m
Universität <7.250m

Nahversorgung
Supermarkt <500m
Bäckerei <1.000m
Einkaufszentrum <7.000m

Sonstige
Bank <500m
Geldautomat <500m
Post <750m
Polizei <1.500m

Verkehr
Bus <500m
Straßenbahn <7.750m
Autobahnanschluss <1.250m
Bahnhof <1.250m

Angaben Entfernung Luftlinie / Quelle: OpenStreetMap
Beschreibung weiterlesen

Energieeffizienz

HWB:
45,4 kWh/(m²*a)
HWB Klasse:
B
fGEE:
0,65
fGEE Klasse:
A+
Energieausweisart:
Energiebedarfs-ausweis
Gültig bis:
26.10.2033

Dokumente

Grundrisse

Lageplan

2100 Korneuburg | Korneuburg

Lade...
Ingrid Neugebauer

Ingrid Neugebauer
Eigentum

EHL Wohnen GmbH

Lade...

Fotomix

Bild 1 Bild 2 Bild 3 Bild 4 Bild 5 Bild 6 Bild 7 Bild 8 Bild 9 Bild 10 Bild 11