NEU - Eigentumswohnung | Stadt. Land. Fluss. | 3 - Zimmer Wohntraum - Top 3/18

Wohnung zum Kauf in 1220 Wien - Kaufpreis: 509.000 € / Objektnummer: 00220000710065
Ausstattung: Fußbodenheizung Balkon
IMG_2461
IMG_2474
IMG_2462
IMG_2471
IMG_2472
IMG_2466
IMG_2467
IMG_2469
IMG_2470
IMG_2463
IMG_2459
IMG_2464
IMG_2465
IMG_2460
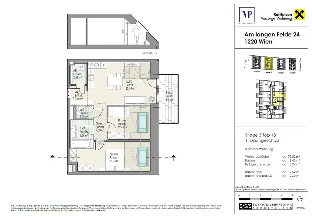
Top 18 Stiege 3

Preisinformationen

Kaufpreis:
509.000 €
Kaufpreis/m²
6.409,00 €
Preisinfos:
zzgl. PKW-Stellplatz: 32.490€ brutto

Fakten

Objektnummer:
00220000710065
Objekttyp:
Wohnung
Balkon:
1
Balkonfläche:
8,43 m²
Wohnfläche:
73,52 m²
Zimmer:
3
Stockwerk:
2
Verfügbarkeit:
Verfügbar

Beschreibung

Eigennutzer: Am Langen Felde 24, 1220 Wien


Entdecken Sie Ihr Traumzuhause in einer der attraktivsten Wohngegenden Wiens! "Am Langen Felde 24" im 22. Wiener Gemeindebezirk bietet nicht nur eine ideale Kombination aus urbanem Leben und Natur, sondern setzt auch neue Maßstäbe in puncto Nachhaltigkeit und Wohnqualität. Dieses einzigartige Projekt ist für Eigennutzer konzipiert, die Wert auf eine hochwertige Ausstattung, eine hervorragende Lage sowie eine ausgezeichnete öffentliche Verkehrsanbindung legen.


Einzigartige Lage:

Direkt an der Schnittstelle zwischen der belebten Stadt und der beruhigenden Natur gelegen, bietet dieses Projekt den perfekten Rückzugsort. In der unmittelbaren Nähe befinden sich die Alte Donau und die grüne Lobau, die mit ihren Badeplätzen, Rad- und Wanderrouten für eine ausgeglichene Work-Life-Balance sorgen. Das Projekt ist zudem nur wenige Schritte von den Blumengärten Hirschstetten entfernt, was den zukünftigen Bewohnern eine Vielzahl an Freizeitgestaltungsmöglichkeiten bietet.


Hervorragende Anbindung:

Die optimale Verkehrsanbindung durch die U-Bahn Linie U1, die Straßenbahnlinie 26 sowie die Buslinien 22A und 24A garantieren eine schnelle Verbindung in die Innenstadt und zum Donauzentrum, dem größten Einkaufs- und Entertainmentcenter Wiens. Das Projekt profitiert außerdem von der Nähe zum Einkaufszentrum „K1“ am Kagraner Platz, wodurch alle Bedürfnisse des täglichen Bedarfs gedeckt sind.


Nachhaltiges Wohnen:

Ein Vorzertifikat in Gold von der Österreichischen Gesellschaft für nachhaltige Immobilienwirtschaft (ÖGNI) unterstreicht das Engagement für Nachhaltigkeit und Energieeffizienz. Ziel ist es, nach der Fertigstellung ein Zertifikat in Gold oder höher zu erlangen, um den Eigennutzern ein umweltfreundliches und zukunftsorientiertes Wohnen zu ermöglichen.


Kostentransparenz:

Die ausgewiesenen Preise verstehen sich als Bruttokaufpreise exklusive aller gesetzlichen Nebenkosten. Dazu zählen 3,5% Grunderwerbsteuer vom Gesamt-Kaufpreis, 1,1% Grundbucheintragungsgebühr vom Gesamt-Kaufpreis und das Treuhandentgelt inklusive Vertragserrichtungsentgelt in Höhe von 1,5% vom Gesamt-Kaufpreis (zzgl. USt und Barauslagen). Für den Hauptwohnsitzerwerb in einem neu erworbenen Eigenheim entfallen von Juli 2024 bis Juli 2026 die Grundbuch- und Pfandrechtseintragungsgebühren bis zu einem Wert von 500.000 Euro (für übersteigenden Beträge ist die Gebühr zu entrichten).


Dieses Projekt bietet eine einmalige Gelegenheit für alle, die nach einem Zuhause suchen, das sowohl den Geist der Großstadt als auch die Ruhe der Natur einfängt. "Am Langen Felde 24" ist mehr als nur eine Adresse – es ist ein Ort, an dem Sie Ihr ideales Leben gestalten können.

Beschreibung weiterlesen

Energieeffizienz

HWB:
25 kWh/(m²*a)
HWB Klasse:
A
fGEE:
0,71
fGEE Klasse:
A
Energieausweis Ausstellungsdatum:
31.03.2022
Ausstellung:
ab dem 1.5.2014

Grundriss

Raiffeisen Eigentum Wohnung

Raiffeisen Eigentum Wohnung

Raiffeisen Vorsorge Wohnung GmbH

Lade...

Fotomix

IMG_2461 IMG_2474 IMG_2462 IMG_2471 IMG_2472 IMG_2466 IMG_2467 IMG_2469 IMG_2470 IMG_2463 IMG_2459 IMG_2464 IMG_2465 IMG_2460