NEU - Ein Rückzugsort mit Zukunft: Dachgeschosswohnung in Bestlage Unbefristet vermietet

Wohnung zum Kauf in 1170 Wien - Kaufpreis: 299.000 € / Objektnummer: 247/21969
Ausstattung: Barrierefrei Fahrstuhl Fernwärme Terrasse
Haus I
Galerie
Terrasse
Haus II
Zimmer
Vorraum I
Küche
Badezimmer
Stiegenhaus V
Lift
Stiegenhaus II
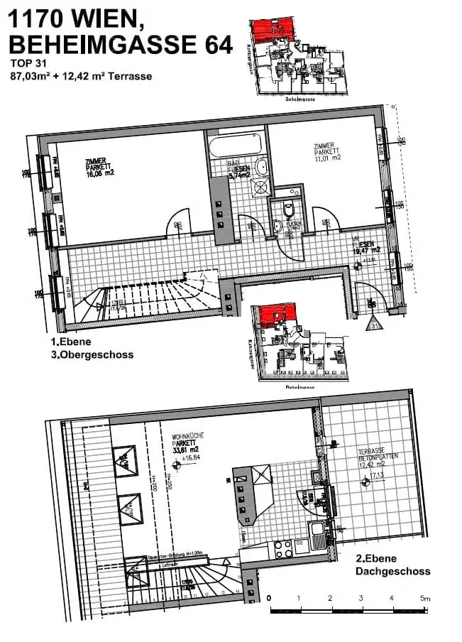
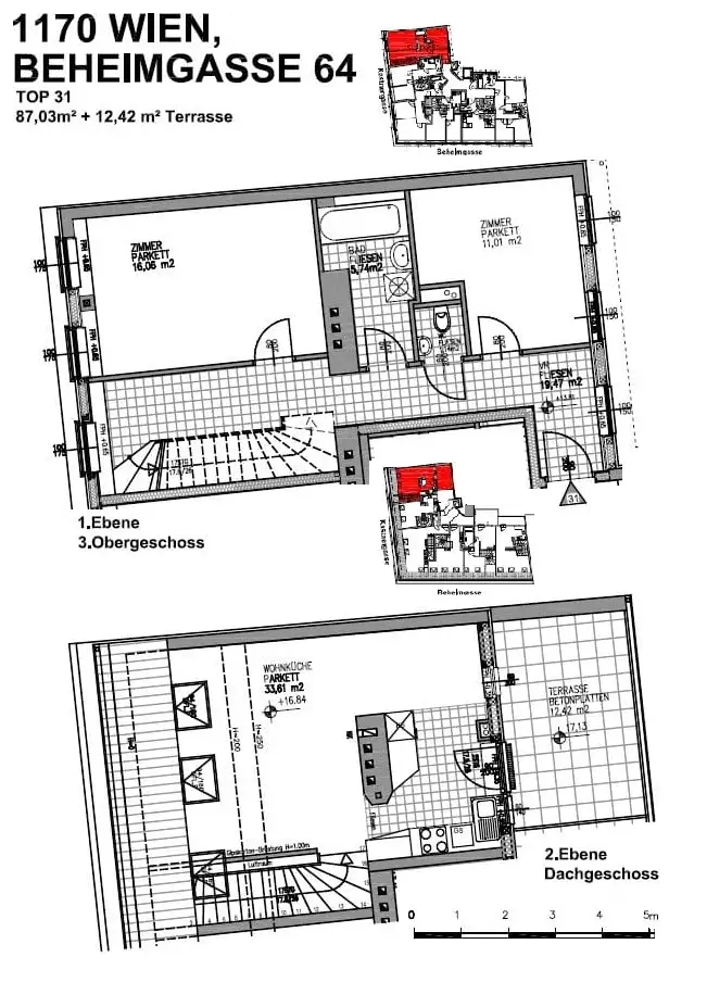
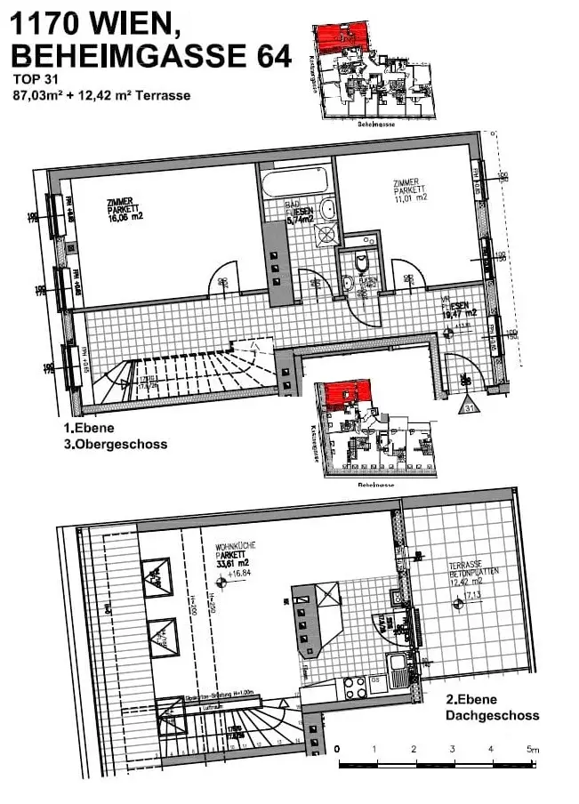
Plan Top 31
Lageplan

Preisinformationen

Kaufpreis:
299.000 €
Kaufpreis/m²
3.380,44 €
Preisinfos:
GrESt 3,5% + Grundbucheintragung 1,1% des Gesamtkaufpreises / Vertragserrichtung 1,5% + Barauslagen, Beglaubigungs-, ggf. Treuhandkosten bei Finanzierung +USt. (WeiKes RA) / WE-Begründungsbeitrag € 500 +USt. / Provisio…
Vermittlungsprovision:
Ja
Provision:
3%

Fakten

Objektnummer:
247/21969
Objekttyp:
Wohnung
Terrasse:
1
Wohnfläche:
88,45 m²
Zimmer:
3
Badezimmer:
1
Toilette:
1
Baujahr:
2008/DG-Altbau
Verfügbarkeit:
Verfügbar

Beschreibung

In attraktiver Lage des 17. Bezirks gelangen in der Beheimgasse mehrere Wohnungen zum Einzelabverkauf. Das Angebot umfasst überwiegend unbefristet und befristet vermietete sowie einige leerstehende Einheiten mit Wohnflächen von ca. 25 m² bis 112 m²; Dachgeschosswohnungen verfügen über Freiflächen. Die ca. 88 m² große 3-Zimmer-Terrassenwohnung (Vorraum, Wohnküche, 2 Zimmer, Bad mit Dusche, Toilette) befindet sich im Dachgeschoss eines gepflegten Gründerzeithauses, das 2008 saniert und ausgebaut wurde und ist unbefristet vermietet. Sie bietet kurz-, mittel- und langfristig eine absolute Vorteilslage. Die Highlights: - Maisonette - clevere Raumaufteilung - Dachgeschoss-Zubau 2008 (dadurch sehr guter Zustand) - ca. 13,55 m² Terrasse (ostseitig in den Innenhof ausgeerichtet) - Aufzug vorhanden, barrierefrei erreichbar - Kellerabteil, ca. 2 m² - Kinderwagen- und Fahrradraum - Fernwärmeheizung - unbefristet vermietet (keine Eigennutzung bis zur Kündigung des Mieters möglich; bei einem neuen Mietverhältnis kann der freie Mietzins vereinbart werden; Mieterin Jahrgang 1981/1987) - derzeit monatliche Mieteinnahmen netto € 734,40 (Betriebskosten nicht inkludiert) Lage-Highlights: - Grün & Erholung: Christine-Nöstlinger-Park direkt ums Eck – ideal für Spaziergänge, Sport und Freizeit - Öffentliche Anbindung: Straßenbahnlinien 43 und 9 in Gehweite, schnelle Verbindung ins Stadtzentrum - Nahversorgung & Alltag: Supermärkte, Bäckereien, Apotheken, Cafés und Restaurants zu Fuß erreichbar - Lokale Atmosphäre: Ruhige Wohnstraße mit typischem 17. Bezirk-Charme und lebendiger Nachbarschaft Der Kaufpreis für diese in ausgezeichneter Lage und Infrastruktur befindliche Eigentumswohnung beträgt Euro 299.000,-. Vereinbaren Sie noch heute einen Besichtigungstermin und lassen Sie sich von dieser besonderen Immobilie verzaubern. Diesbezüglich freuen wir uns über Ihre geschätzte Anfrage per Mail. Tipp: Die gesamte Anlage wird gerade parifiziert und abverkauft. Fragen Sie uns nach weiteren Objekten bzw. Paketangeboten! Wir möchten darauf hinweisen, dass unsere Antwort möglicherweise in Ihrem Spamordner landen könnte. Bitte kontrollieren Sie diesen, wenn Sie keine Rückmeldung auf Ihre Anfrage erhalten haben. Wir freuen uns auf Ihre Anfrage und einen gemeinsamen Besichtigungstermin!
Beschreibung weiterlesen

Lage und Verkehrsanbindung

Elterleinplatz

Energieeffizienz

HWB:
40,1 kWh/(m²*a)
HWB Klasse:
B
fGEE:
1,05
fGEE Klasse:
C

Grundrisse

Ruschitzka-Schilhorn Marion

Ruschitzka-Schilhorn Marion

IMV Immobilienmakler

Lade...

Fotomix

Haus I Galerie Terrasse Haus II Zimmer Vorraum I Küche Badezimmer Stiegenhaus V Lift Stiegenhaus II