Einzelgaragenplätze in begehrter Lage des 7. Wiener Bezirks

Parken zur Miete in 1070 Wien - Gesamtmiete: 180,00 € / Objektnummer: 5612/345
Ausstattung:

Preisinformationen

Gesamtmiete:
180,00 € / Monat
Kaution:
2 Bruttomonatsmieten
Vermittlungsprovision:
Ja
Provision:
432,00 € inkl. 20% USt.

Fakten

Objektnummer:
5612/345
Objekttyp:
Parken
Zustand:
Vollsaniert
Verfügbarkeit:
Verfügbar

Beschreibung

Dieses Angebot ermöglicht Ihnen eine Anmietung eines Parkplatzes in einer der begehrtesten Wohnlagen Wiens – einer Gegend, in der die Parkplatzsituation besonders herausfordernd ist. Profitieren Sie von den zahlreichen Vorteilen dieses Angebotes und erleichtern Sie sich das tägliche Parken mitten im 7. Bezirk.

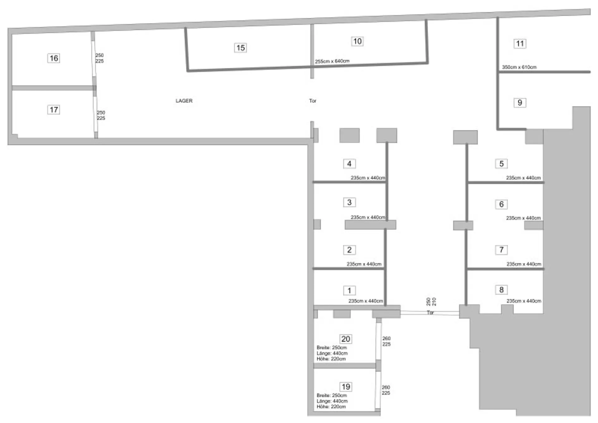
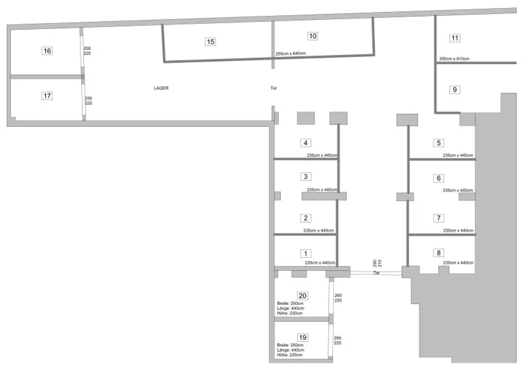
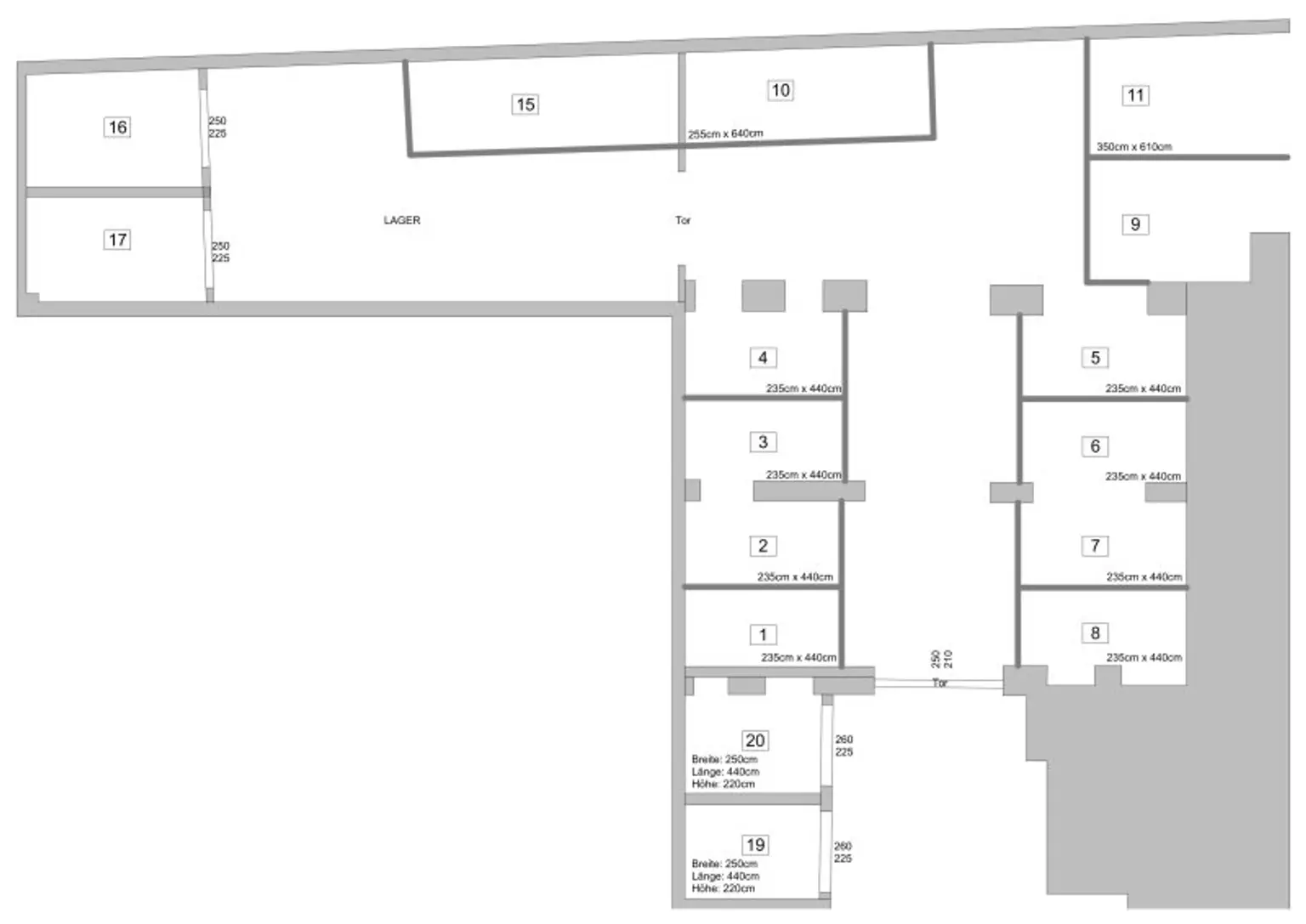
Zur Vermietung stehen 2 vollständig abgetrennte Garagenboxen (sowohl SP19 als auch SP20 verfügbar) im geschützten Innenhof des Gebäudes. Diese bieten eine komfortable, sichere und äußerst bequeme Lösung in einem stark frequentierten Umfeld wie der Hermanngasse, wo freie Parkmöglichkeiten erfahrungsgemäß selten sind. Die Boxen stehen auch zur Einzelanmietung zur Verfügung.

Wir weisen darauf hin, dass zwischen dem Vermittler und dem zu vermittelnden Dritten ein familiäres oder wirtschaftliches Naheverhältnis besteht.

Der Vermittler ist als Doppelmakler tätig.

Infrastruktur / Entfernungen

Gesundheit
Arzt <500m
Apotheke <500m
Klinik <500m
Krankenhaus <1.000m

Kinder & Schulen
Schule <500m
Kindergarten <500m
Universität <500m
Höhere Schule <1.000m

Nahversorgung
Supermarkt <500m
Bäckerei <500m
Einkaufszentrum <500m

Sonstige
Geldautomat <500m
Bank <500m
Post <500m
Polizei <500m

Verkehr
Bus <500m
U-Bahn <500m
Straßenbahn <500m
Bahnhof <500m
Autobahnanschluss <4.500m

Angaben Entfernung Luftlinie / Quelle: OpenStreetMap
Beschreibung weiterlesen

Lage und Verkehrsanbindung

Diese Parkmöglichkeit in 1070 Wien befindet sich in einer ruhigen und dennoch zentralen Lage im Herzen von Wien. Das Objekt liegt in unmittelbarer Nähe zu zahlreichen Einkaufsmöglichkeiten, Restaurants, Cafés und kulturellen Einrichtungen. Die exzellente Verkehrsanbindung ermöglicht es Ihnen, schnell und bequem alle Teile der Stadt zu erreichen.

Kandlgasse/Hermanngasse

Grundriss

Lageplan

1070 Wien | Wien 7., Neubau

Lade...
Ivona Jelovic

Ivona Jelovic
Sales Manager

WI-RE Immobilienmakler GmbH

Lade...

Fotomix

Bild 1 Bild 2 Bild 3 Bild 4 Bild 5 Bild 6 Bild 7 Bild 8 Bild 9