NEU - Einziehen oder vermieten: Sanierte 2-Zimmer-Wohnung

Wohnung zum Kauf in 1100 Wien - Kaufpreis: 173.000 € / Objektnummer: 247/21968
Ausstattung: Fahrstuhl
Hausansicht I
Zimmer 1
Zimmer 1_2
Zimmer 1_3
Vorraum 1_1
Zimmer 1_1
Zimmer 2_1
Vorraum 1
Vorraum 2
Zimmer 2
Küche 1
Küche 1_1
Bad 1
Hausansicht II
Hausansicht III
Innenhof II
Stiegenhaus I
Innenhof I
Eingang Stiegenhaus
Stiegenhaus II
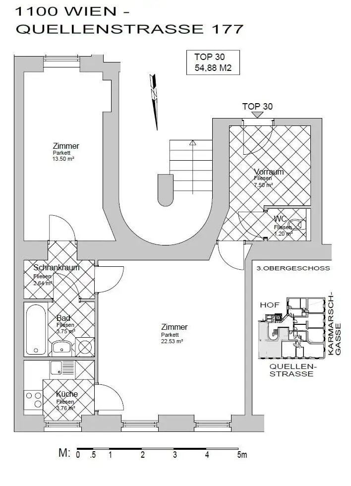
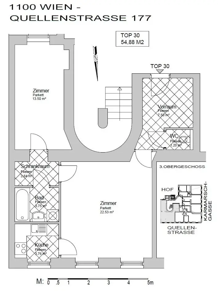
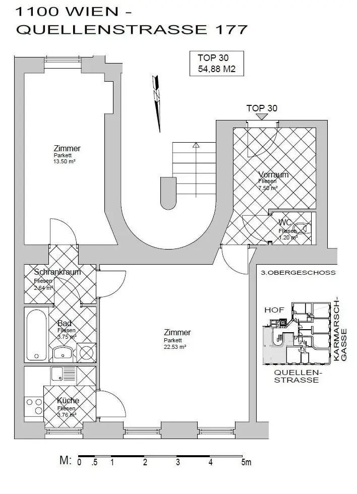
Plan
Lageplan

Preisinformationen

Kaufpreis:
173.000 €
Kaufpreis/m²
3.152,33 €
Preisinfos:
GrESt 3,5% + Grundbucheintragung 1,1% des Gesamtkaufpreises / Vertragserrichtung 1,5% + Barauslagen, Beglaubigungs-, ggf. Treuhandkosten bei Finanzierung +USt. (WeiKes RA) / WE-Begründungsbeitrag € 500 +USt. / Provisio…
Vermittlungsprovision:
Ja
Provision:
3%

Fakten

Objektnummer:
247/21968
Objekttyp:
Wohnung
Wohnfläche:
54,88 m²
Zimmer:
2
Badezimmer:
1
Toilette:
1
Baujahr:
1888
Altbau:
Ja
Verfügbarkeit:
Verfügbar

Beschreibung

Sichern Sie sich diese geräumige 2-Zimmer-Wohnung nahe dem Matzleinsdorfer Platz. Die ca. 55 m² große Wohnung befindet sich im 3. Obergeschoss eines stilvoll sanierten Altbaus und überzeugt neben ihrer funktionalen sowie lichtdurchfluteten Raumaufteilung durch ihre Top-Lage. Die Details: - Wohnungseigentumsobjekt - Vorraum, Küche (Anschlüsse vorhanden), Badezimmer, 2 Zimmer, Schrankraum, WC - Gaszentralheizung - Aufzug vorhanden Die Lage: - Matzleinsdorfer Platz/Keplerplatz um die Ecke - unweit zum Wienerberg - Zahlreiche Cafés und Einkaufsmöglichkeiten Der Kaufpreis für diese Eigentumswohnung mit hervorragender Infrastruktur beträgt Euro 173.000,-. Tipp: Die gesamte Anlage wird gerade parifiziert und abverkauft. Fragen Sie uns nach weiteren Objekten bzw. Paketangeboten! Wir möchten darauf hinweisen, dass unsere Antwort möglicherweise in Ihrem Spamordner landen könnte. Bitte kontrollieren Sie diesen, wenn Sie keine Rückmeldung auf Ihre Anfrage erhalten haben.
Beschreibung weiterlesen

Lage und Verkehrsanbindung

Keplerplatz

Energieeffizienz

HWB:
73,7 kWh/(m²*a)
HWB Klasse:
C
fGEE:
1,63
fGEE Klasse:
C

Grundrisse

Ruschitzka-Schilhorn Marion

Ruschitzka-Schilhorn Marion

IMV Immobilienmakler

Lade...

Fotomix

Hausansicht I Zimmer 1 Zimmer 1_2 Zimmer 1_3 Vorraum 1_1 Zimmer 1_1 Zimmer 2_1 Vorraum 1 Vorraum 2 Zimmer 2 Küche 1 Küche 1_1 Bad 1 Hausansicht II Hausansicht III Innenhof II Stiegenhaus I Innenhof I Eingang Stiegenhaus Stiegenhaus II