NEU - Entzückende Dachterrassenwohnung mit Blick auf den Wienerwaldsee

Wohnung zum Kauf in 3013 Tullnerbach-Lawies - Kaufpreis: 270.000 € / Objektnummer: 95386
Ausstattung: Boden Wohnküche / offene Küche Bad Parkplatz Außenparkplatz Etagenheizung Balkon

Preisinformationen

Kaufpreis:
270.000 €
Betriebskosten netto:
175,97 € / Monat
Vermittlungsprovision:
Ja
Provision:
3% des Kaufpreises zzgl. 20% USt.

Fakten

Objektnummer:
95386
Objekttyp:
Wohnung
Balkon:
2
Balkonfläche:
10,22 m²
Keller Fläche:
5,39 m²
Wohnfläche:
73 m²
Zimmer:
2
Badezimmer:
1
Toilette:
1
Baujahr:
1994
Verfügbarkeit:
Verfügbar
Verfügbar ab:
n.V.

Beschreibung

Diese entzückende Wohnanlage liegt in einer besonders begehrten Lage am westlichen Stadtrand von Wien und verbindet naturnahes Wohnen mit hervorragender Anbindung an die Stadt. Eingebettet in die Hügellandschaft des Wienerwaldes bietet die Umgebung hohe Lebensqualität, Ruhe und vielfältige Erholungsmöglichkeiten, wobei der nahe Wienerwaldsee zu Spaziergängen und Freizeitaktivitäten einlädt.

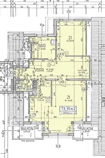
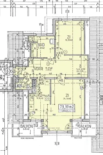
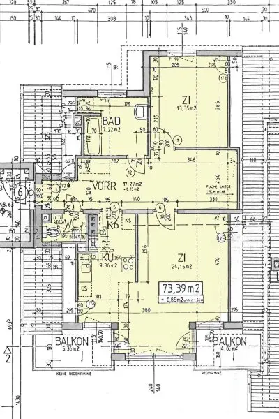
Die rund 73 m² große Dachgeschoßwohnung verfügt über einen geräumigen Vorraum, ein separates WC, ein Badezimmer mit Badewanne und Waschmaschinenanschluss, eine Küche mit Einbaugeräten sowie ein nordseitiges Schlafzimmer. Herzstück ist der helle, über 24 m² große Wohnbereich mit Zugang zu zwei südöstlich ausgerichteten Balkonen, die viel Sonnenlicht und einen schönen Blick ins Grüne bis zum Wienerwaldsee bieten.

Zur Wohnung gehören außerdem ein Kellerabteil und ein PKW-Stellplatz. Ein großer Gemeinschaftsgarten mit Spielplatz steht ebenfalls zur Verfügung und rundet das Angebot ab.

Die Nahversorgung ist durch zahlreiche Einkaufsmöglichkeiten, Gastronomie sowie Banken und Poststellen in Tullnerbach, Pressbaum und Purkersdorf bestens gewährleistet. Familien profitieren von einem guten Bildungsangebot direkt vor Ort und in der Umgebung, während auch die medizinische Versorgung gesichert ist.

Die Verkehrsanbindung ist ausgezeichnet: Über die nahe Westautobahn (A1) sowie die Bahnverbindung ab Tullnerbach-Pressbaum ist Wien schnell erreichbar, ergänzt durch regionale Busverbindungen direkt vor der Wohnanlage.

Der Vermittler ist als Doppelmakler tätig.

Infrastruktur / Entfernungen

Gesundheit
Arzt <500m
Apotheke <1.000m
Klinik <6.500m

Kinder & Schulen
Schule <1.000m
Kindergarten <2.000m

Nahversorgung
Supermarkt <1.000m
Bäckerei <1.000m
Einkaufszentrum <9.000m

Sonstige
Bank <1.000m
Geldautomat <1.000m
Post <1.000m
Polizei <2.500m

Verkehr
Bus <500m
Bahnhof <1.000m
Autobahnanschluss <3.000m

Angaben Entfernung Luftlinie / Quelle: OpenStreetMap
Beschreibung weiterlesen

Energieeffizienz

HWB:
114,4 kWh/(m²*a)
HWB Klasse:
D
fGEE:
1,52
fGEE Klasse:
C
Energieausweisart:
Energiebedarfs-ausweis
Gültig bis:
20.04.2036

Grundriss

Lageplan

3013 Tullnerbach-Lawies | Sankt Pölten (Land)

Lade...
Sebastian Wiesinger

Sebastian Wiesinger
Immobilienmakler

Rudi Dräxler Immobilientreuhand GesmbH

Lade...

Fotomix

Blick zum Wienerwaldsee gartenseitige Hausansicht Wohnzimmer mit zwei Balkonen Vorraum Küche mit Geräten Wohnbereich mit Balkonausgang Wohnzimmer mit zwei Balkonen Ausblick vom Balkon Badezimmer mit Wanne und Waschmaschinenanschluss Zimmer Gemeinschaftsgarten