NEU - ERSTBEZUG 3 Zimmer DG-Balkon-Neubauwohnung

Wohnung zur Miete in 1170 Wien - Gesamtmiete: 1.910,00 € / Objektnummer: 19555
Ausstattung: Barrierefrei Rollstuhlgerecht Boden Fahrstuhl Bad Rollladen Kabel/Satelliten-TV Klimaanlage Fahrradraum Abstellraum Fußbodenheizung Balkon

Preisinformationen

Gesamtmiete:
1.910,00 € / Monat
Betriebskosten netto:
187,10 € / Monat
Umsatzsteuer:
173,64 €
Kaution:
7.700,00 €
Provision:
Gemäß Erstauftraggeberprinzip bezahlt der Abgeber die Provision.

Fakten

Objektnummer:
19555
Objekttyp:
Wohnung
Balkon:
1
Balkonfläche:
13,4 m²
Keller Fläche:
2 m²
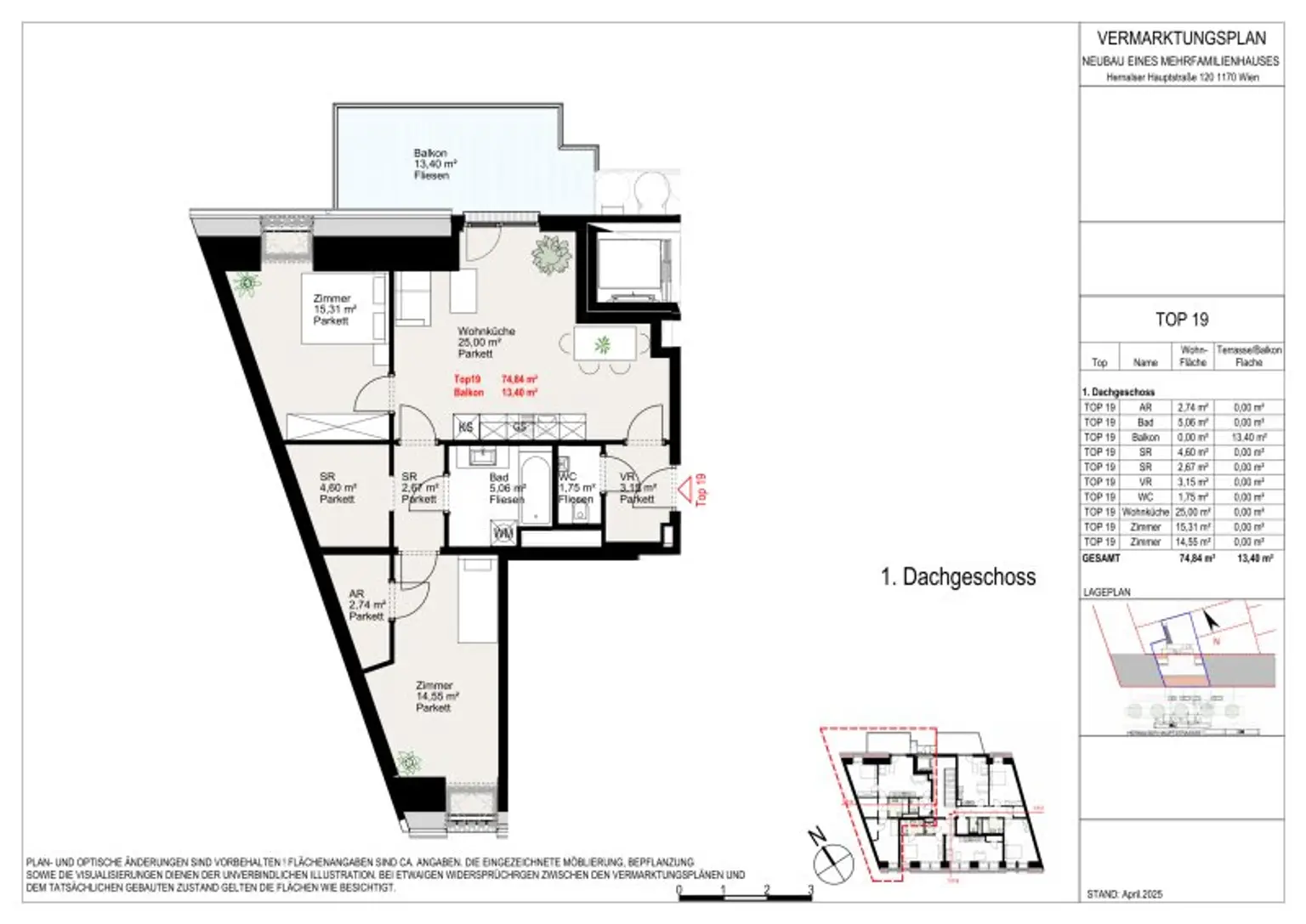
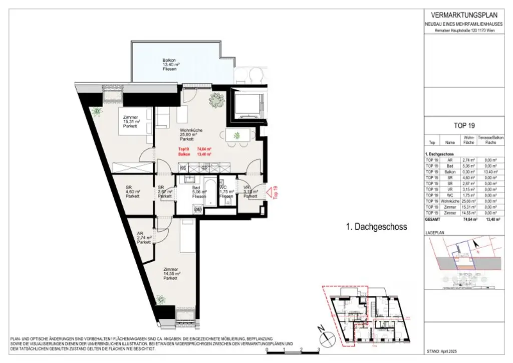
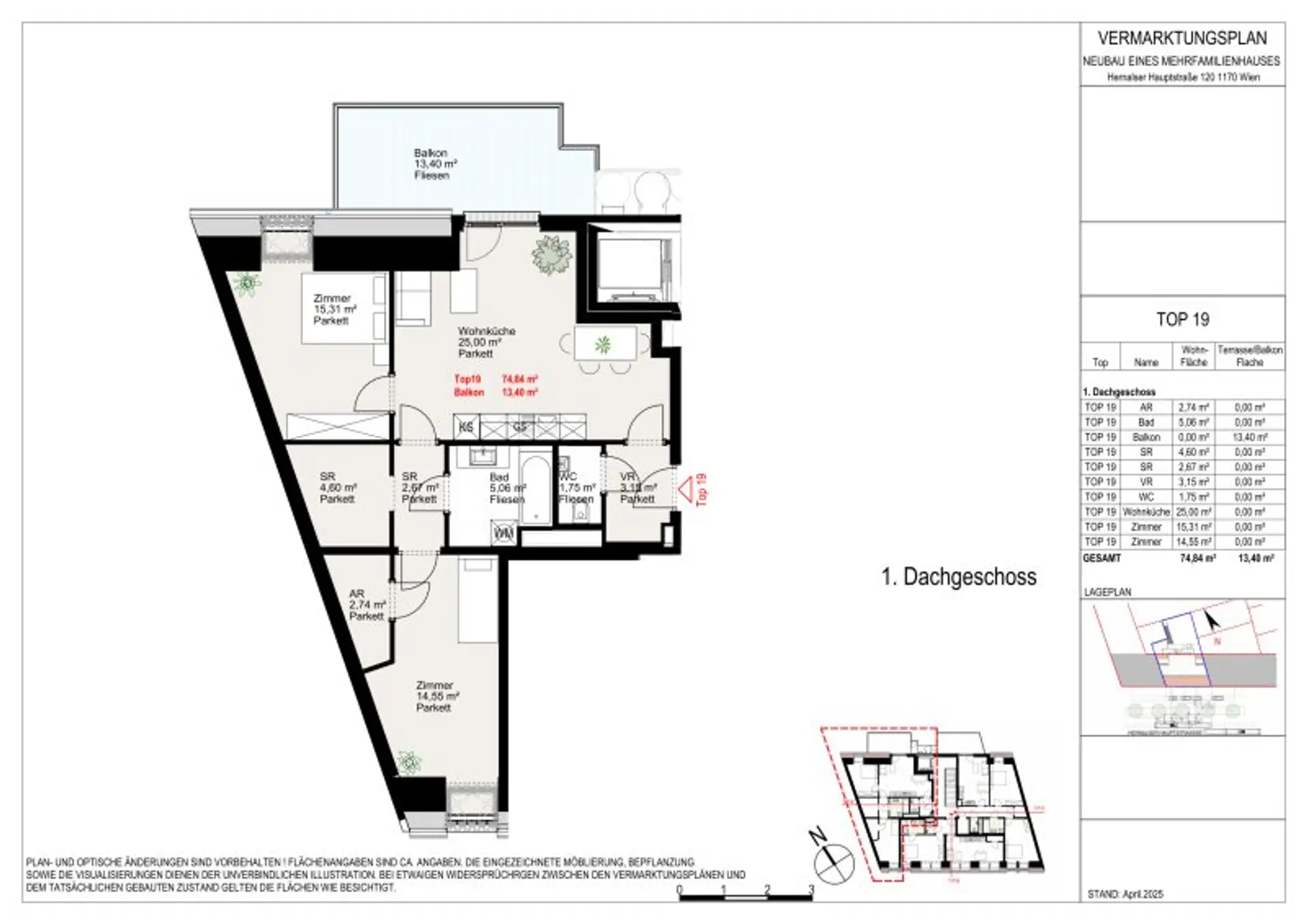
Wohnfläche:
74,84 m²
Zimmer:
3
Badezimmer:
1
Toilette:
1
Baujahr:
2022
Neubau:
Ja
Zustand:
Erstbezug
Verfügbarkeit:
Verfügbar
Verfügbar ab:
ab sofort

Beschreibung

Diese herrliche ERSTBEZUGS-Balkon-Wohnung befindet sich im 1. Dachgeschoss (mit Lift) eines wunderschönen Neubauhauses auf der Hernalser Hauptstraße (fast Höhe Wattgasse).

Die ca. 75 m² 3 Zimmer Wohnung ist einerseits nach Nordosten (Wohnzimmer samt Balkon und Schlafzimmer 1) und andererseits nach Südwesten (Schlafzimmer 2) ausgerichtet. Nordostseitig blickt die Wohnung auf eine große, ruhige Innenhof (KEIN DIREKTES GEGENÜBER!) und Südwestseitig auf die Hernalser Hauptstraße. Die Wohnküche hat einen direkten Zugang zu einem ca. 13,5 m² Balkon! Beide Schlafzimmer sind getrennt begehbar!

Weitere Highlights sind: Fußbodenheizung/Kühlung (mittels Betonkern bzw. Bauteilaktivierung), Eiche-Parkettböden, Sonnenschutz durch außenliegende Rollos vor allen Fenstern, eine vollausgestattete Küche inkl. Backrohr mit Ceranfeld, Kühlschrank, Geschirrspüler, Dunstabzugshaube und sogar 2 Abstellräume!

Heizung/Kühlung/Warmwasser/Kaltwasser (Luftwärmepumpe) wird direkt mit der Firma Techem verrechnet - angenommene Kosten/Monat/Brutto: € 160,91
Waschmaschinen- wie auch KabelTV/Internet-Anschlüsse sind vorhanden. 

FAHRRADABSTELLRAUM befindet sich im Untergeschoss und im Erdgeschoss befinden sich sowohl ein KINDERWAGENABSTELLRAUM als auch ein barrierefreies WC.

TOLLE LAGE, TOLLE ANBINDUNG: 
Alles was das Herz begehrt ist in max. 5 Gehminuten sofort erreichbar - ob Lebensmittel, Drogerie, Restaurant oder öffentliche Anbindung: Billa, Bipa, Bäckerei, Apotheke, Bank, Tabak/Trafik, Straßenbahnhaltestelle Rosensteingasse (2, 9, 43).
Auch die Schnellbahnstation Hernals (S45) ist in 10 Gehminuten leicht erreichbar!

RAUMAUFTEILUNG:
Vorraum/Gang, Wohnküche, Balkon, Schlafzimmer 1, Schlafzimmer 2 plus begehbare Garderobe, Badezimmer (Badewanne/Waschbecken/Waschmaschinenanschluss), WC mit Waschbecken, Abstellraum, Kellerabteil

Kosten bei Mietvertragsabschuss:
EURO 7.700,00 Kaution
EURO 1.910,00 Erste Brutto Monatsmiete 
EURO 9.610,00 GESAMT 

Energieausweiswerte: HWB: A 19,1 und fGEE: A 0,73

Wir weisen darauf hin, dass zwischen dem Vermittler und dem zu vermittelnden Dritten ein familiäres oder wirtschaftliches Naheverhältnis besteht.

Der Immobilienmakler erklärt, dass er – entgegen dem in der Immobilienwirtschaft üblichen Geschäftsgebrauch des Doppelmaklers – einseitig nur für den Vermieter tätig ist.
Beschreibung weiterlesen

Lage und Verkehrsanbindung

Hernalser Hauptstraße / Wattgasse

Energieeffizienz

HWB:
19,1 kWh/(m²*a)
HWB Klasse:
A
fGEE:
0,73
fGEE Klasse:
A
Energieausweisart:
Energiebedarfs-ausweis
Gültig bis:
28.08.2034

Grundriss

Lageplan

1170 Wien | Wien 17., Hernals

Lade...
Tania Oppel

Tania Oppel
native speaker: Englisch, Afrikaans

IMMO AGENCY GmbH

Lade...

Fotomix

Bild 1 Bild 2 Bild 3 Bild 4 Bild 5 Bild 6 Bild 7 Bild 8 Bild 9 Bild 10 Bild 11 Bild 12 Bild 13 Bild 14 Bild 15 Bild 16 Bild 17 Bild 18 Bild 19 Bild 20 Bild 21