NEU - Erstbezug 3-Zimmer Wohnung mit Garten, Nähe Aumannplatz

Wohnung zum Kauf in 1180 Wien - Kaufpreis: 764.000 € / Objektnummer: 5141
Ausstattung: Boden Fahrstuhl Fahrradraum Abstellraum Fußbodenheizung Terrasse Garten

Preisinformationen

Kaufpreis:
764.000 €

Fakten

Objektnummer:
5141
Objekttyp:
Wohnung
Terrasse:
1
Wohnfläche:
85,5 m²
Gartenfläche:
18 m²
Zimmer:
3
Badezimmer:
1
Toilette:
1
Baujahr:
1885
Altbau:
Ja
Zustand:
Erstbezug
Verfügbarkeit:
Verfügbar

Beschreibung

Zu Verkauf gelangt eine helle 3-Zimmer Wohnung mit Garten im 18. Wiener Gemeindebezirk.

Mit dem Projekt Marie, einem charmant modernisierten und ausgebautem Gründerzeithaus mit hochwertiger Ausstattung, entsteht ein Ort, der Altbaucharme mit moderner Wohnqualität verbindet. Helle Räume, kombiniert mit eleganten Details, sowie ruhig gelegene Terrassen und Balkone schaffen eine besondere Wohnatmosphäre. In diesem Wohnprojekt stehen 9 hochwertige Wohnungen mit 43 bis 123 m² sowie ein charmantes Town House zum Verkauf. 

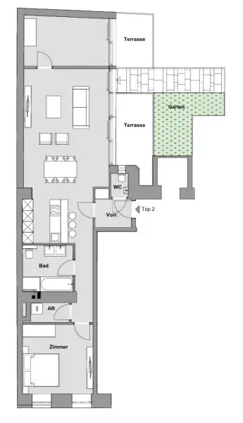
Die Wohnung mit ca. 85 m² ist ein Erstbezug und gliedert sich in einen Vorraum, große Wohnküche mit Anschlüssen für eine offene Küche, zwei Schlafzimmer, ein Badezimmer mit Doppelwaschbecken, Badewanne, Dusche und Toilette, einen Abstellraum mit Waschmaschinenanschluss, sowie eine separate Toilette mit Waschbecken. Von der Wohnküche und einem der beiden Schlafzimmer aus erreicht man die traumhafte Terrasse, sowie den großen Garten, der in einem schönem Innenhof liegt.

Alle Wohnräume sind mit hochwertigem Eichenparkett ausgestattet, während das Badezimmer mit zeitlos eleganten Fliesen versehen ist.

In der gesamten Wohnung sorgt eine Fußbodenheizung für angenehmen Komfort. Im Keller befindet sich eine neu errichtete Heizzentrale (Luftwärmepumpe). Zusätzlichen Stauraum bietet ein großzügiges Kellerabteil. Im Haus stehen zudem ein Kinderwagen- sowie ein Fahrradabstellraum zur Verfügung.

Die Liegenschaft befindet nur wenige Minuten vom Aumannplatz und dem Kutschkermarkt entfernt. In unmittelbarer Gehweite befinden sich diverse Einkaufsmöglichkeiten wie Supermärkte etc. sowie eine optimale öffentliche Verkehrsanbindung durch die Straßenbahnen (9, 40 und 41), der Buslinie (10A) und der S-Bahn (S45) sowie die U-Bahn Linie 6. Die Parks wie der Marie Ebner-Eschenbach-Park, der Türkenschanzpark, der Schubertpark oder der Postsportplatz bieten vielfältige Freizeitmöglichkeiten. Kindergärten und Schulen befinden sich in unmittelbarer Nähe.

Die Vertragserrichtung und Treuhandabwicklung ist an die Kanzlei ENGINDENIZ Rechtsanwälte für Immobilienrecht GmbH (FN 559759a) 1010 Wien, Marc-Aurel-Straße 6/5 gebunden.
Die Kosten betragen 1,5% zzgl. 20% Ust und Barauslagen, sowie zzgl. der Notarkosten für die erforderlichen Unterschriftsbeglaubigungen.

Überzeugen Sie sich selbst von dieser Immobilie.

Gerne lassen wir Ihnen bei ernsthaftem Interesse – vor Kaufanbotlegung – weitere vertrauliche Unterlagen zu dieser Liegenschaft zukommen, welche nicht veröffentlicht werden dürfen.

Für Besichtigungen und nähere Informationen stehen wir Ihnen gerne zur Verfügung!

Frau Marie-Louise Eisenburger
national - Tel: 0676 605 9800 [tel:06766059800]
international - Tel.: +43 676 605 9800 [tel:+436766059800]
e-mail: eisenburger@lifestyle-properties.at

Wir weisen darauf hin, dass zwischen dem Vermittler und dem zu vermittelnden Dritten ein familiäres oder wirtschaftliches Naheverhältnis besteht.

Der Vermittler ist als Doppelmakler tätig.

 

 

Infrastruktur / Entfernungen

Gesundheit
Arzt <500m
Apotheke <500m
Klinik <500m
Krankenhaus <1.000m

Kinder & Schulen
Schule <500m
Kindergarten <500m
Universität <1.000m
Höhere Schule <500m

Nahversorgung
Supermarkt <500m
Bäckerei <500m
Einkaufszentrum <1.000m

Sonstige
Geldautomat <500m
Bank <500m
Post <500m
Polizei <500m

Verkehr
Bus <500m
U-Bahn <1.000m
Straßenbahn <500m
Bahnhof <1.000m
Autobahnanschluss <2.500m

Angaben Entfernung Luftlinie / Quelle: OpenStreetMap
Beschreibung weiterlesen

Lage und Verkehrsanbindung

Aumannplatz

Energieeffizienz

HWB:
44,9 kWh/(m²*a)
HWB Klasse:
B
fGEE:
0,95
Energieausweisart:
Energiebedarfs-ausweis
Gültig bis:
04.11.2035

Grundriss

Lageplan

1180 Wien | Wien 18., Währing

Lade...
Marie-Louise Eisenburger

Marie-Louise Eisenburger
Real Estate Agent

IM Lifestyle Properties GmbH

Lade...

Fotomix

Bild 1 Bild 2 Bild 3 Bild 4 Bild 5 Bild 6