NEU - +++Erstbezug lichtdurchflutete 4-Zimmer Dachgeschosswohnung mit Wienblick und Bergblick + Terrasse- NESTROYPLATZ

Wohnung zum Kauf in 1020 Wien - Kaufpreis: 1.390.000 € / Objektnummer: 8422/3537
Ausstattung: Boden Fahrstuhl Gäste-WC Abstellraum Fußbodenheizung Terrasse

Preisinformationen

Kaufpreis:
1.390.000 €
Betriebskosten netto:
185,00 € / Monat
Vermittlungsprovision:
Ja
Provision:
3% des Kaufpreises zzgl. 20% USt.

Fakten

Objektnummer:
8422/3537
Objekttyp:
Wohnung
Terrasse:
1
Keller Fläche:
4 m²
Wohnfläche:
118 m²
Nutzfläche:
124 m²
Zimmer:
4
Badezimmer:
1
Toilette:
2
Baujahr:
2024
Neubau:
Ja
Letzte Sanierung:
2024
Zustand:
Erstbezug
Verfügbarkeit:
Verfügbar
Verfügbar ab:
Sofort

Beschreibung

Moderne, lichtdurchflutete Dachwohnung - im 2. Bezirk!

Willkommen in Ihrer neuen Traumwohnung! Diese moderne und stilreiche Dachwohnung liegt direkt an der Weintraumgasse im 2. Bezirk. Wenn Sie einen ruhigen aber zentralen Ort suchen, sind Sie hier genau richtig! Die Wohnung befindet sich im absolut ruhigen Lage, und bietet großzügige Glasflächen, die für eine herrliche Helligkeit sorgen.

RAUMAUFTEILUNG:

DG 1:

* Vorraum
* extra WC mit Handwasch
* 3 Schlafzimmer
* Bad mit Dusche und Waschbecken
* Abstellraum
* Stiegenaufgang zum

 DG 2:

* Vorraum
* extra WC mit Handwasch
* DAS TURMZIMMER - großflächige Wohnküche mit größtem Komfort
* Aufgang zur ca. 7 m2  Terrasse

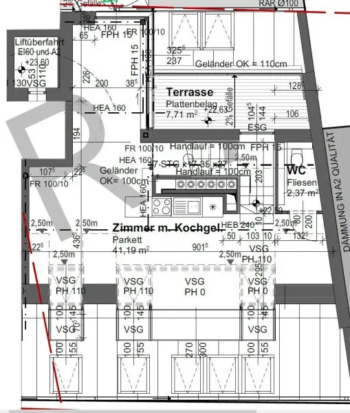
im 2 DG befindet man sich ein großzügiges Wohnzimmer mit offener Küche, das den Mittelpunkt des Wohnens bildet. Hier können Sie entspannte Abende genießen und mit Freunden und Familie zusammenkommen. Ein separates WC mit Handwaschbecken sorgt für zusätzlichen Komfort. Der gesamte Wohnbereich inkludiert 3 WCs.

Das Wohnzimmer ist mit großzügigen bodentiefen Fenstern ausgestattet, die sich komplett öffnen lassen. Hier können Sie entspannte Stunden im Freien verbringen und die Sonne genießen. Jedes Detail dieser Wohnung ist durchdacht, um Ihnen höchsten Komfort zu bieten.

Diese Wohnung ist der perfekte Ort für die, die das Besondere suchen. Zögern Sie nicht und vereinbaren Sie noch heute einen Besichtigungstermin, um diese einzigartige Dachwohnung zu entdecken.

Merkmale der Wohnung:

* Moderne und lichtdurchflutete Dachgeschosswohnung
* Vollständig klimatisiert (Daikin)
* Ideal durchdachte Raumaufteilung
* Hochwertige Fliesen
* Eichenparkett
* Modernes Beleuchtungssystem
* Ruhige Lage
* Wohnung wird mit Luftwärmepumpe geheizt daher kein GAS keine Therme!
* Großzügiges Wohnzimmer mit offener Küche Die hat Gas und Strom Anschluss
* Drei WCs mit Handwaschbecken
* Bodentiefe Fenster im Wohnzimmer mit Terrasse
* Die Wohnfläche dieser Wohnung beträgt ca. 118,40 m2 zuzüglich ca.7m2 Terrasse und bietet somit ausreichend Platz für individuelles Wohnen.

Der Kaufpreis für diese einzigartige Wohnung ist € 1.390,000-

Diese Wohnung bietet eine ruhige, moderne Atmosphäre im Herzen des 2. Bezirks. Verpassen Sie nicht die Gelegenheit, dieses einzigartige Juwel zu ergattern. Kontaktieren Sie uns noch heute, um einen Besichtigungstermin zu vereinbaren. Seien Sie schnell und sichern Sie sich Ihr neues Zuhause!
 

Für weitere Fragen steht Ihnen Herr David PLISHTIEV gerne unter 06644664776 [tel:06644664776] zur Verfügung.

Wir weisen darauf hin, dass zwischen dem Vermittler und dem Auftraggeber ein familiäres oder wirtschaftliches
Naheverhältnis besteht.
Der Vermittler ist als Doppelmakler tätig.

Der Vermittler ist als Doppelmakler tätig.

Infrastruktur / Entfernungen

Gesundheit
Arzt <500m
Apotheke <500m
Klinik <1.000m
Krankenhaus <500m

Kinder & Schulen
Schule <500m
Kindergarten <500m
Universität <500m
Höhere Schule <1.500m

Nahversorgung
Supermarkt <500m
Bäckerei <500m
Einkaufszentrum <1.000m

Sonstige
Geldautomat <500m
Bank <500m
Post <500m
Polizei <500m

Verkehr
Bus <500m
U-Bahn <500m
Straßenbahn <500m
Bahnhof <500m
Autobahnanschluss <3.000m

Angaben Entfernung Luftlinie / Quelle: OpenStreetMap
Beschreibung weiterlesen

Lage und Verkehrsanbindung

U1 Nestroyplatz, Praterstraße; schwedenplatz,

U1 Nestroyplatz, Praterstraße

Energieeffizienz

HWB:
37,78 kWh/(m²*a)
HWB Klasse:
B
fGEE:
0,7
fGEE Klasse:
A+
Energieausweisart:
Energiebedarfs-ausweis
Gültig bis:
31.08.2030

Grundrisse

Lageplan

1020 Wien | Wien 2., Leopoldstadt

Lade...
David Plishtiev

David Plishtiev
Geschäftsführender Gesellschafter

ADAMANT IMMOBILIEN GmbH

Lade...

Fotomix

Bild 1 Bild 2 Bild 3 Bild 4 Bild 5 Bild 6 Bild 7 Bild 8 Bild 9 Bild 10 Bild 11 Bild 12 Bild 13