NEU - Erstbezug mit Garten: 89m² WFL, 40m² Wohnküche & Zi-14 & AR 12m², PKW-Stellplatz

Wohnung zum Kauf in 2425 Nickelsdorf - Kaufpreis: 211.000 € / Objektnummer: 25159
Ausstattung: Barrierefrei Garten

Preisinformationen

Kaufpreis:
211.000 €
Vermittlungsprovision:
Ja
Provision:
7.596,00 € inkl. 20% USt.

Fakten

Objektnummer:
25159
Objekttyp:
Wohnung
Keller Fläche:
2,01 m²
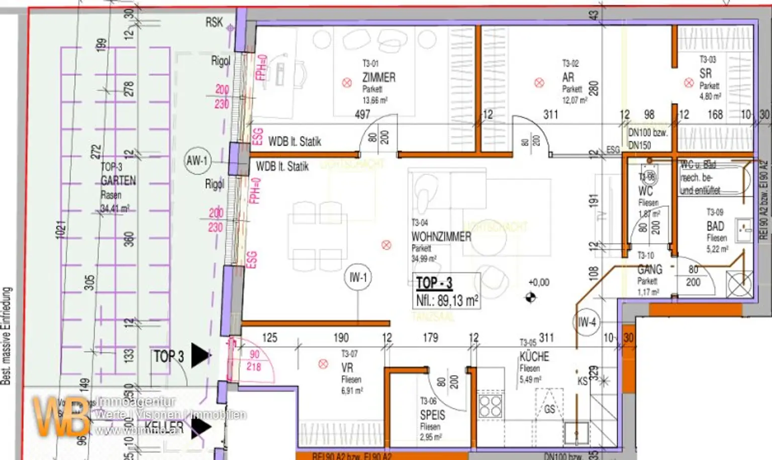
Wohnfläche:
89,13 m²
Gartenfläche:
34 m²
Zimmer:
2
Badezimmer:
1
Toilette:
1
Baujahr:
2026
Neubau:
Ja
Zustand:
Erstbezug
Verfügbarkeit:
Verfügbar

Beschreibung

Zum Verkauf kommt ein Erstbezug 89m² vom Top-Bauträger in Ruhelage

+ Wohnküche ~40m² mit sep. Speis, Zimmer mit 14m², AR 12m², Badezimmer, WC, VR

+ Südwest-Garten mit 34m²

+ belagsfertig oder gegen Aufpreis von 27k schlüsselfertig

+ Gebaut wird nach hohem energetischen Standard und Bauträgervertrag, ein bestehendes Vergleichsobjekt des Bauträgers kann in der Nähe besichtigt werden

+ Insgesamt gibt es 8 Wohnungen, Details zu den anderen Wohnungen sende ich gerne auf Anfrage (Pläne,Preise etc.)

+ Im Ort finden Sie: zwei Kindergärten, eine Volksschule, Tennisplätze, ein Beachvolleyballplatz, einen öffentlichen Sportplatz, eine Skateranlage, eine Bäckerei & Konditorei, Gasthäuser und Buschenschenken, eine Bank, Tankstelle, Nahversorger, diverse Fachgeschäfte, eine Gemeindeärztin, ein reges Vereinsleben, u.v.m.

+ Mit der Bahn oder dem Auto ist das Haus nur ca. eine Stunde von Wien entfernt

Zur Beantwortung etwaiger Fragen nutzen Sie bitte die schriftliche Anfragefunktion oder geben Sie bitte Name und Telefonnummer bei Ihrer Anfrage für einen Rückruf bekannt.

_Walter Pap, _Immobilientreuhänder e.a. Immobilienmakler

+ Top 2, Erdgeschoß - Auszüge aus der Baubeschreibung: 

..EINRICHTUNG VON ABSTELLRÄUMEN, EINES KINDERWAGENABSTELLRAUMS UND EINER VON AUSSEN ERREICHBARER ZWEILÄUFIGER TREPPE MIT ZWISCHENPODEST. EIN ZENTRALER GANG FÜHRT ZU VIER WEITEREN WOHNEINHEITEN. JEDE WOHNUNG ERHÄLT EINEN ODER MEHRERE BALKONE ... DACH: NEUBAU EINES FLACHDACHS. BESTEHENDES KELLERGESCHOSS: ZUGANG ÜBER EINE BESTEHENDE AUSSENTREPPE. UNTERBRINGUNG DER HEIZUNGS- UND WARMWASSERTECHNIK. NEBENANLAGEN: IM ERDGESCHOSS MÜLLSAMMELPLATZ....

DAMIT ENTSTEHT EIN MODERNES, AUF ZWEI EBENEN ORGANISIERTES MEHRFAMILIENHAUS, DAS SOWOHL FUNKTIONALE GRUNDRISSE ALS AUCH GROSSZÜGIGE AUSSEN- UND GEMEINSCHAFTSFLÄCHEN BIETET.
AUSSENWÄNDE: ZIEGELMAUERWERK (ZMW) MIT VOLLWÄRMESCHUTZ; INNENWÄNDE: ZIEGELMAUERWERK (ZMW); DACHKONSTRUKTION: FLACHDACH; AUSSENFASSADE: PUTZFASSADE;
SANITÄRE EINRICHTUNG: HÄNGE-WC MIT UNTERPUTZ-SPÜLKASTEN, SCHWITZWASSERISOLIERT, STAHLBLECHWANNE BZW. - DUSCHE, WASCHMASCHINENANSCHLUSS;
HEIZUNG U. WARM- WASSERZUBEREITUNG:MITTELS ZWEI LUFT-WASSER-WÄRMEPUMPEN, KOMBINIERT MIT FUSSBODENHEIZUNG; 

FENSTER: TERRASSENTÜREN: KUNSTSTOFF-FENSTER;  ALU, K-WERT 0,85 W/M²K;  VERGLASUNG: FENSTER UND AUSSENTÜREN 3 SCHEIBEN - WÄRMEDÄMMVERGLASUNG; DUSCHE – ESG,  HAUSEINGANGSTÜR: ALUMINIUM; INNENTÜREN: HOLZZARGEN, TÜRBLATT HOLZ; VERKLEIDUNGEN: SOHLBANKABDECKUNGEN ALU PULVERBESCHICHTET, FARBE ANTHRAZIT; BESCHATTUNG: ROLLLÄDEN;  FENSTER- UND TÜRBESCHLÄGE: ALU NATUR; VERTIKALE ERSCHLIESSUNG: BETONTREPPE ZWISCHEN ERD- UND OBERGESCHOSS; BESTEHENDE TREPPE IN DEN KELLER;  ABSTURZSICHERUNG UND GELÄNDER: BALKONGELÄNDER, HÖHE = 100 CM; BLITZSCHUTZ- ANLAGE: NEU, (FANGEINRICHTUNGEN, ABLEITUNGEN, ERDUNG)  STANDARD; ELEKTROINSTALLATION: NACH DEM HEUTIGEN STAND DER TECHNIK AUSGEFÜHRT, ABNAHME DURCH EIN KONZESSIONIERTES ELEKTROUNTERNEHMEN;  
AUSSENANLAGEN: FAHR- UND GEHWEGE PFLASTERSTEINE;

 

Der Vermittler ist als Doppelmakler tätig.

Infrastruktur / Entfernungen

Gesundheit
Arzt <2.000m
Apotheke <8.000m

Kinder & Schulen
Schule <1.500m
Kindergarten <1.000m

Nahversorgung
Supermarkt <1.500m
Bäckerei <1.000m

Sonstige
Geldautomat <1.000m
Bank <1.000m
Polizei <1.500m
Post <1.500m

Verkehr
Bus <500m
Autobahnanschluss <2.000m
Bahnhof <500m

Angaben Entfernung Luftlinie / Quelle: OpenStreetMap
Beschreibung weiterlesen

Energieeffizienz

HWB:
48 kWh/(m²*a)
HWB Klasse:
B
Energieausweisart:
Energiebedarfs-ausweis

Dokumente

Lageplan

2425 Nickelsdorf | Neusiedl am See

Lade...
Walter Pap

Walter Pap
selbstständiger Immobilienmakler in Kooperation mit WB Immoagentur e.U.

WB Immoagentur e.U.

Lade...

Fotomix

Bild 1 Bild 2 Bild 3 Bild 4 Bild 5