ERSTBEZUG | Nähe Alte Donau | 2 Balkone | Teils hofseitig | Fernwärme | TG-Stellplatz optional | Ideal für Anleger oder Eigennutzer | Nachhaltiges Projekt

Wohnung zum Kauf in 1210 Wien - Kaufpreis: 495.600 € / Objektnummer: 56674
Ausstattung: Barrierefrei Boden Fahrstuhl Wohnküche / offene Küche Bad Tiefgarage Parkplatz Fahrradraum Abstellraum Fernwärme Fußbodenheizung Balkon

Preisinformationen

Kaufpreis:
495.600 €
Betriebskosten netto:
182,70 € / Monat
Vermittlungsprovision:
Ja
Provision:
17.841,60 € inkl. 20% USt.

Fakten

Objektnummer:
56674
Objekttyp:
Wohnung
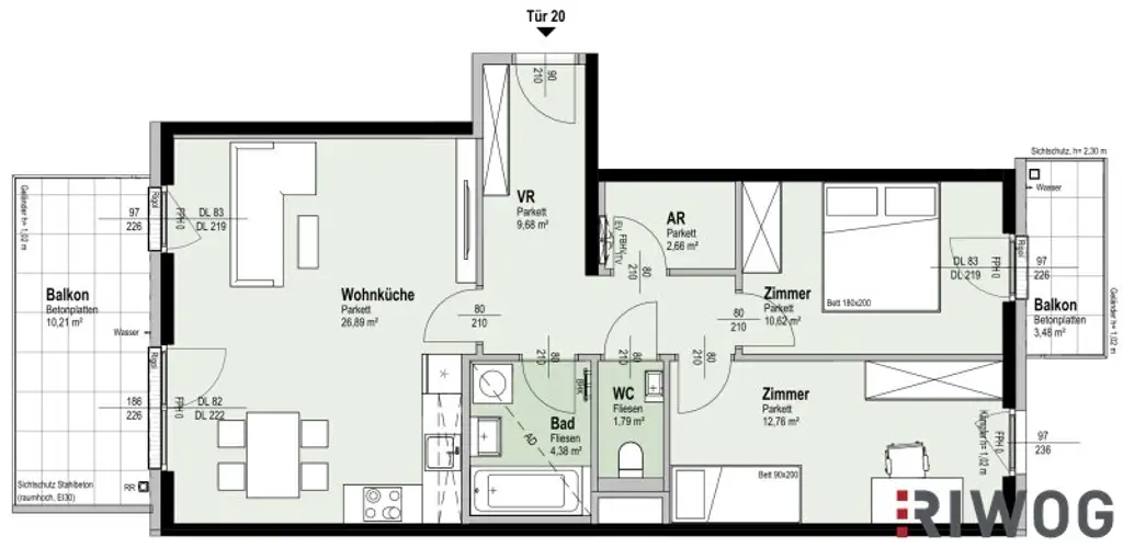
Balkon:
2
Balkonfläche:
13,69 m²
Keller Fläche:
1,39 m²
Wohnfläche:
68,77 m²
Zimmer:
3
Badezimmer:
1
Toilette:
1
Stockwerk:
2
Baujahr:
2025
Neubau:
Ja
Zustand:
Erstbezug
Verfügbarkeit:
Verfügbar
Verfügbar ab:
sofort

Beschreibung

Modernes, nachhaltiges Wohnen nur einen Katzensprung von der Alten Donau entfernt: Hochwertige Eigentums- und Vorsorgewohnungen mit durchdachten Grundrissen und großzügigen Freiflächen bieten Lebensqualität auf höchstem Niveau. Natur und Stadt verbinden sich hier perfekt – die Alte Donau und das Zentrum Wiens sind in kürzester Zeit erreichbar.

In der Fahrbachgasse 6–8 entstanden verteilt auf 2 Stiegen 89 stilvolle Wohnungen mit Wohnflächen von ca. 35 bis 138 m². Klare Architektur, intelligente Planung und hochwertige Materialien schaffen Wohnraum, der sich flexibel an Ihr Leben anpasst. Die Ausstattung folgte nicht nur gestalterischen Kriterien. Vielmehr wurde auf die Verwendung von langlebigen und qualitätsvollen Materialien aus Österreich geachtet.

Nachhaltigkeit steht im Mittelpunkt: energieeffiziente Bauweise, ressourcenschonende Umsetzung und ausgezeichnet mit DGNB-Gold. Weiters wird eine EU-Taxonomie-Verifikation angestrebt. Zukunftssicheres Wohnen mit Verantwortung.

Beste Infrastruktur direkt vor der Tür: Der Bahnhof Wien Floridsdorf mit U6, Schnellbahnen und weiteren Verbindungen garantiert maximale Mobilität. Wien Mitte erreichen Sie in rund 16 Minuten.

Freizeit neu erleben: Alte Donau und Donauinsel laden zu Erholung, Sport und Genuss ein – nur wenige Minuten entfernt.

Perfekte Nahversorgung: Am Franz-Jonas-Platz finden Sie alles für den Alltag. Schulen (Bildungsmeile Franklinstraße) und Kindergärten in unmittelbarer Nähe runden das Angebot ab.

PROJEKT

* Bezugsfertige Eigentums- und Vorsorgewohnungen 
* Wohnflächen von ca. 35 m² - 138 m² mit 1-4 Zimmern
* Loggien, Balkone, Terrassen und Eigengärten
* Gemeinschaftsraum mit Gartenfläche 
* Hauseigene Tiefgarage (Stellplätze für PKW oder Motorrad optional zu erwerben)
* Energieklasse A/Niedrigenergiehaus (HWB 22,90 kWh/m2a, fGEE: 0,71)
* Ideal für Anleger oder Eigennutzer

HIGHLIGHTS

* Eichenparkettböden
* Stilvolle Markenfliesen
* Exklusive Sanitärausstattung u. a. von Laufen und Dornbracht
* Außenliegender elektrischer Sonnenschutz
* Klimaanlage im DG
* dezentrale Wohnraumlüftung
* E-Mobilität (TG 1. UG)
* Fernwärme
* Fußbodenheizung
* Klimaanlage im DG
* Photovoltaikanlage am Dach
* Fassadenbegrünung
* Paketboxenanlage
* Kleinkinderspielplatz
* Gegensprechanlage via Handy-App
* DGNB Gold
* Alte Donau & Donaulinsel schnell öffentlich oder mit Rad zu erreichen
* U6-Station Floridsdorf und Bahnhof Floridsdorf in ca. 3 Minuten zu Fuß erreichbar 
* Ca. 16 Min. öffentlich nach Wien Mitte
* Diverse Supermärkte fußläufig erreichbar

INFOS ZUR WOHNUNG

* WOHNFLÄCHE: ca. 68,7 m²
* ZIMMER: 3
* BALKON: ca. 10,2 m² & 3,4 m²
* EINLAGERUNGSRAUM: ca. 1,4 m²
* AUSRICHTUNG: Südost/Nordwest
* GESCHOSS: 2. OG

Betriebskosten: € 200,97 inkl. 10% USt. p.M. derzeit
WE-Rücklage: € 21,90 p.M. derzeit

Kaufpreis Eigennutzer (WHG): € 495.600,00 
Kaufpreis Anleger netto (WHG): € 453.200,00 zzgl. 20% USt.

Kaufpreis TG-Stellplatz Eigennutzer: ab € 30.000,00 (PKW) | € 12.000,00 (Motorrad)
Kaufpreis TG-Stellplatz Anleger netto: ab € 26.520,00 zzgl. 20% USt. (PKW) | € 9.700,00 zzgl. 20% USt. (Motorrad)

Vertragserrichtung (gebunden): Kanzlei Tiefenthaler Gnesda Rechtsanwälte GmbH (1,5 % vom Kaufpreis zzgl. 20 % Ust., zzgl. Barauslagen und Beglaubigungskosten)

Provision: 3% vom Kaufpreis zzgl. 20% USt.

Bei den Fotos handelt es sich um Fotos der Top 2/38 im 4. Stock mit gleichem Grundriss.

-------------

_Wir freuen uns auf Ihre schriftliche Anfrage, um Ihnen dieses exklusive Projekt näher bringen zu dürfen. _

Wir weisen darauf hin, dass zwischen dem Vermittler und dem zu vermittelnden Dritten ein familiäres oder wirtschaftliches Naheverhältnis besteht.

Der Vermittler ist als Doppelmakler tätig.

Infrastruktur / Entfernungen

Gesundheit
Arzt <125m
Apotheke <400m
Klinik <450m
Krankenhaus <1.275m

Kinder & Schulen
Schule <100m
Kindergarten <275m
Universität <250m
Höhere Schule <425m

Nahversorgung
Supermarkt <200m
Bäckerei <100m
Einkaufszentrum <200m

Sonstige
Geldautomat <225m
Bank <225m
Post <500m
Polizei <550m

Verkehr
Bus <75m
U-Bahn <75m
Straßenbahn <100m
Bahnhof <100m
Autobahnanschluss <800m

Angaben Entfernung Luftlinie / Quelle: OpenStreetMap
Beschreibung weiterlesen

Lage und Verkehrsanbindung

Floridsdorf S+U | Alte Donau | Franz-Jonas-Platz | Floridsdorfer Wasserpark

Energieeffizienz

HWB:
22,9 kWh/(m²*a)
HWB Klasse:
A
fGEE:
0,71
fGEE Klasse:
A
Energieausweisart:
Energiebedarfs-ausweis
Gültig bis:
01.11.2033

Grundriss

Lageplan

1210 Wien | Wien 21., Floridsdorf

Lade...
Learco Andrea Tews, MSc (WU)

Learco Andrea Tews, MSc (WU)
Teamleiter | Immobilienmakler

RIWOG Real Estate Management GmbH

Lade...

Fotomix

Bild 1 Bild 2 Bild 3 Bild 4 Bild 5 Bild 6 Bild 7 Bild 8 Bild 9 Bild 10 Bild 11 Bild 12 Bild 13 Bild 14 Bild 15 Bild 16 Bild 17 Bild 18 Bild 19 Bild 20 Bild 21 Bild 22 Bild 23 Bild 24 Bild 25 Bild 26 Bild 27 Bild 28 Bild 29 Bild 30 Bild 31 Bild 32 Bild 33 Bild 34 Bild 35 Bild 36 Bild 37 Bild 38 Bild 39 Bild 40 Bild 41 Bild 42 Bild 43 Bild 44 Bild 45 Bild 46 Bild 47 Bild 48 Bild 49 Bild 50 Bild 51 Bild 52 Bild 53