NEU - Erstes Eigenheim mit Garten!

Wohnung zum Kauf in 3141 Kapelln - Kaufpreis: 219.553 € / Objektnummer: 1939/163069
Ausstattung: Gäste-WC Fahrradraum Abstellraum Fußbodenheizung Terrasse Garten
20250513_103518
20250513_103207
20250513_103214
20250513_103656
20250513_103702
20250513_103735
20250513_103744
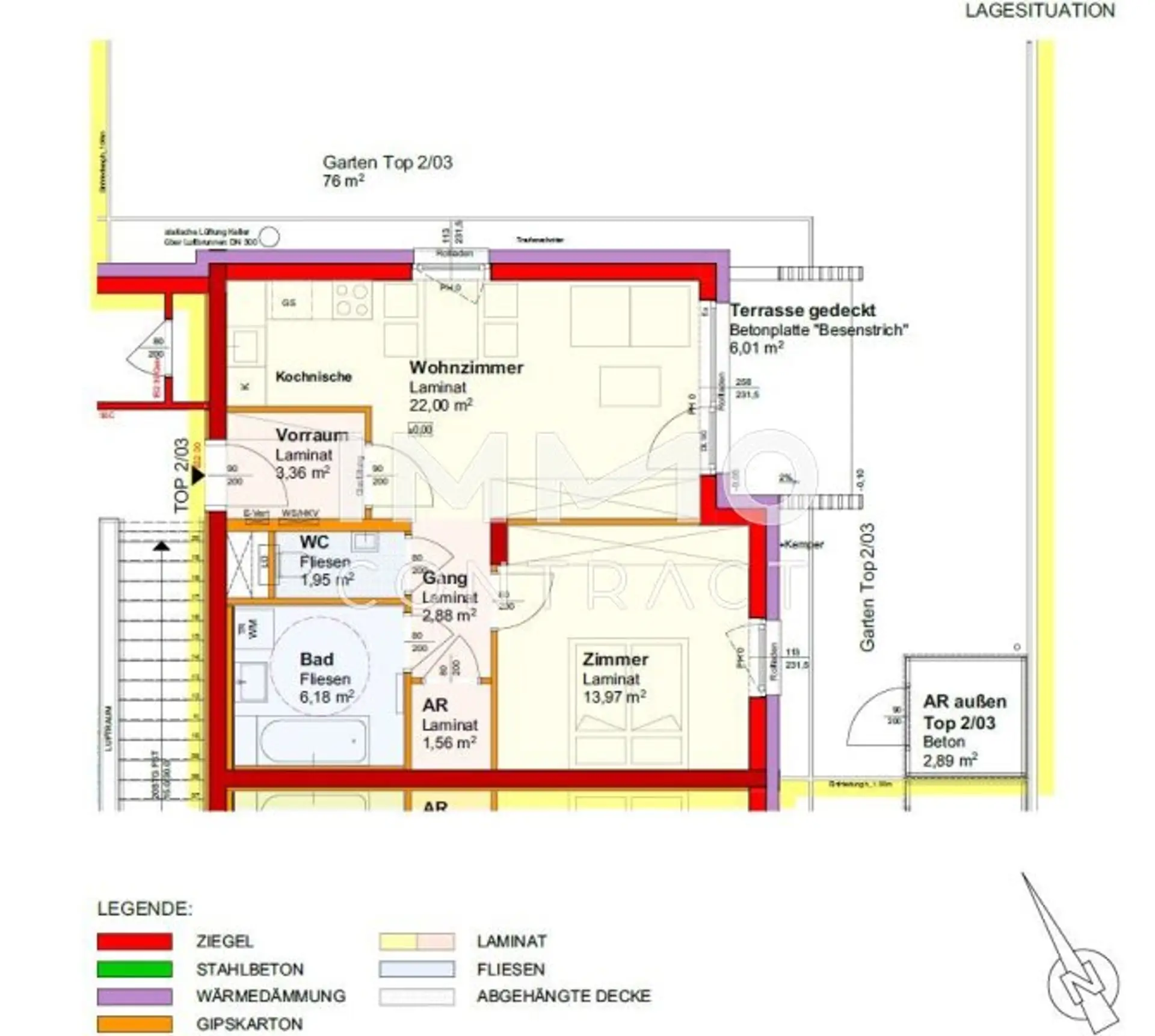
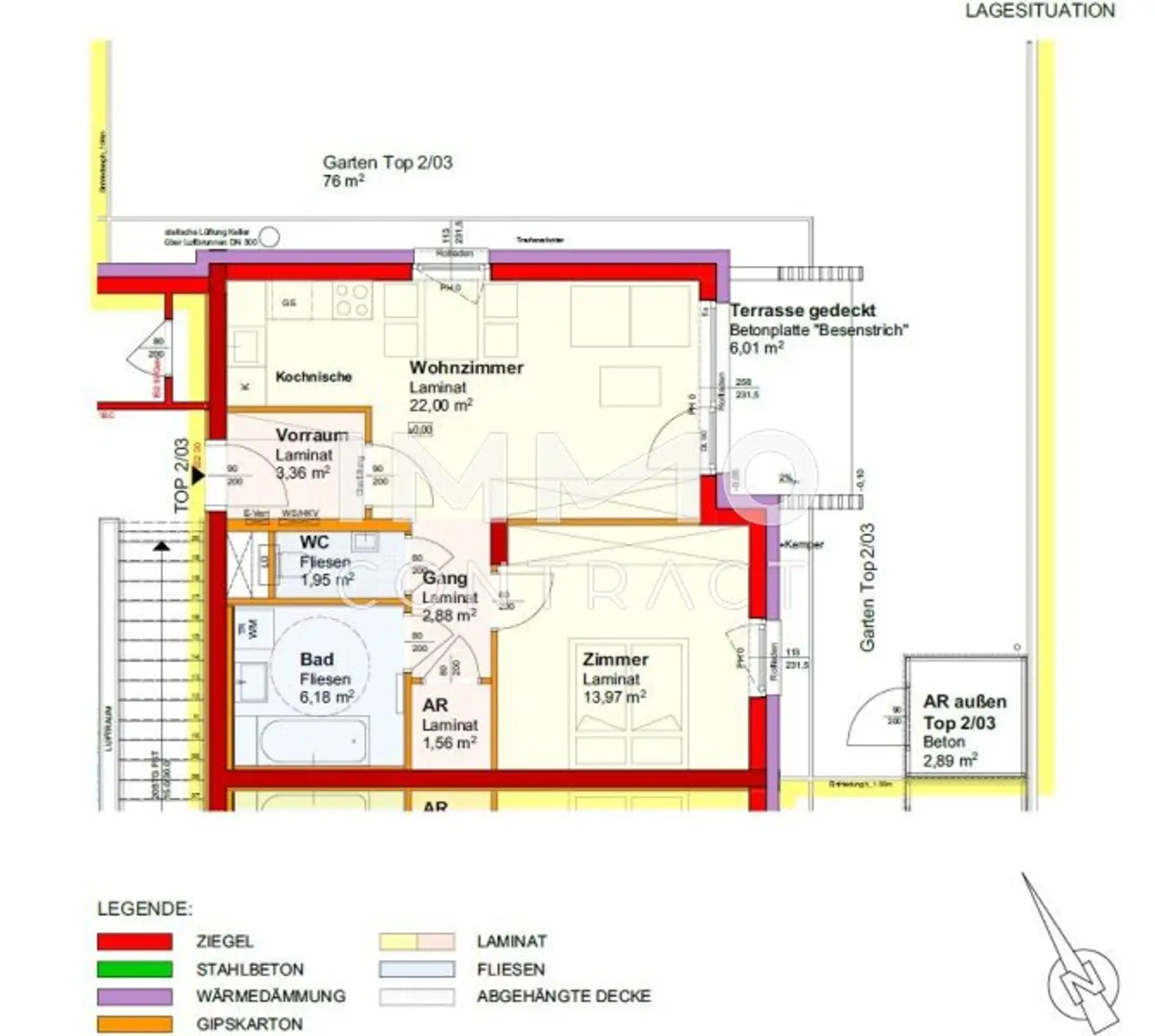
2-03 Wohnung
2-03 Garten

Preisinformationen

Kaufpreis:
219.553 €
Kaufpreis/m²
3.998,42 €
Provision:
Provision bezahlt der Abgeber.

Fakten

Objektnummer:
1939/163069
Objekttyp:
Wohnung
Terrasse:
1
Wohnfläche:
51,9 m²
Gartenfläche:
76 m²
Zimmer:
2
Badezimmer:
1
Toilette:
1
Baujahr:
2023
Zustand:
Erstbezug
Verfügbarkeit:
Verfügbar

Beschreibung

Im Mittelpunkt von Niederösterreich!

Kapelln - Quellengasse

Hier wurden 6 Reihenhäuser und 26 Wohnungen mit großzügigen Freiflächen errichtet,
welche in Wohnungseigentum bzw. in Miete mit Kaufoption provisionsfrei vergeben werden.
Ausstattung:
Fußbodenheizung
Wohnungen mittels Pelletsheizung, Reihenhäuser Luft-Wasser Wärmepumpe
Reihenhäuser mit Photovoltaikanlage
Solaranlage je Wohnhaus
kontrollierte Wohnraumlüftung pro Wohneinheit
usw.
Jeder Wohneinheit stehen ein bis zwei KFZ-Stellplätze zu Verfügung.

Besichtigungen nach telefonischer Vereinbarung jederzeit möglich!

Infrastruktur / Entfernungen

Gesundheit
Arzt <1.500m
Apotheke <5.500m
Klinik <7.000m

Kinder & Schulen
Schule <500m
Kindergarten <6.500m

Nahversorgung
Supermarkt <500m
Bäckerei <5.500m
Einkaufszentrum <5.500m

Sonstige
Bank <500m
Geldautomat <500m
Post <500m
Polizei <5.500m

Verkehr
Bus <500m
Autobahnanschluss <4.500m
Bahnhof <5.000m

Angaben Entfernung Luftlinie / Quelle: OpenStreetMap
Beschreibung weiterlesen

Lage und Verkehrsanbindung

Kapelln, idyllisch gelegen im Herzen Niederösterreichs, bietet die perfekte Kombination aus ländlichem Charme und urbaner Anbindung. Diese Wohnhausanlage befindet sich in einer ruhigen und freundlichen Gemeinde, die durch ihre naturnahe Umgebung und die Nähe zu wichtigen Infrastrukturen besticht. Kapelln liegt in der malerischen Region des Mostviertels, bekannt für ihre sanften Hügel und weitläufigen Wiesenlandschaften.

Die Stadt St. Pölten, die niederösterreichische Landeshauptstadt, ist in kurzer Fahrtzeit erreichbar und bietet eine Fülle an kulturellen und sozialen Möglichkeiten. Der Bahnhof in der Nähe ermöglicht eine bequeme Anbindung an das öffentliche Verkehrsnetz, während die Autobahnen A1 und S33 schnelle Verbindungen zu den wichtigsten Städten und Regionen garantieren.

Die Wohngegend selbst ist von einer harmonischen Nachbarschaft geprägt und bietet eine hohe Lebensqualität. In der Umgebung finden sich alle notwendigen Einrichtungen des täglichen Lebens: Supermärkte, gemütliche Gaststätten sowie Schulen und Kindergärten machen den Alltag angenehm und unkompliziert. Zahlreiche Wander- und Radwege laden zur Erholung und zum Entdecken der malerischen Landschaft ein, die Kapelln so einzigartig macht.

Zusammengefasst besticht diese Lage durch eine harmonische Balance zwischen Ruhe und Lebendigkeit, ideal für Familien, Berufstätige und Ruhesuchende gleichermaßen.

Energieeffizienz

HWB:
22,6 kWh/(m²*a)
HWB Klasse:
A
fGEE:
0,51
fGEE Klasse:
A++
Energieausweisart:
Energiebedarfs-ausweis
Gültig bis:
01.01.2033

Lageplan

3141 Kapelln | Sankt Pölten (Land)

Lade...
Christian Pichler

Christian Pichler
Immobilienfachberater

IMMOcontract Immobilien Vermittlung GmbH

Lade...

Fotomix

20250513_103518 20250513_103207 20250513_103214 20250513_103656 20250513_103702 20250513_103735 20250513_103744 2-03 Wohnung 2-03 Garten