NEU - Exklusive Bürofläche auf der Freyung zu mieten

Büro zur Miete in 1010 Wien / Objektnummer: 16969

Preisinformationen

Betriebskosten netto:
5,05 € / Monat
Miete/m² netto:
24,00 €
Vermittlungsprovision:
Ja

Fakten

Objektnummer:
16969
Objekttyp:
Büro
Nutzfläche:
1.039,47 m²
Bürofläche:
1.039,47 m²
Gesamtfläche:
1.039,47 m²
Verfügbarkeit:
Verfügbar

Beschreibung

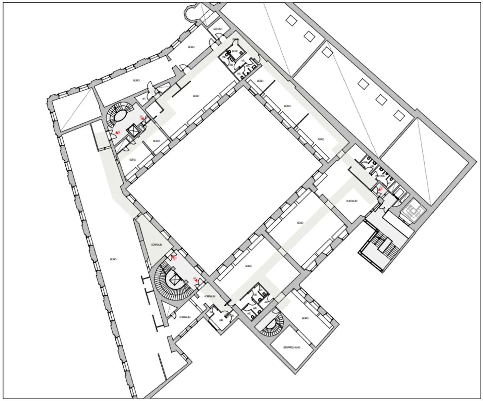
Dieses exklusive Mietfläche im Herzen der Wiener Innenstadt besticht vor allem durch seine weitläufige Struktur und die funktionale Anordnung auf einer einzigen, geschlossenen Etage. Mit einer Gesamtfläche von rund 1.040 m bietet das Büro im 3. Obergeschoss eine Kombination aus Offenheit und Rückzugsmöglichkeiten.
Ein besonderes Merkmal der Einheit ist die hohe Flexibilität in der Erschließung: Durch insgesamt drei separate Eingänge lässt sich die Fläche optimal segmentieren oder für unterschiedliche Abteilungen und Mandantenverkehr zonieren.
Beschreibung weiterlesen

Lage und Verkehrsanbindung

Die Liegenschaft nimmt eine absolute Vorrangstellung im Herzen des 1. Wiener Gemeindebezirks ein. Die Freyung zählt zu den bekanntesten und prestigeträchtigsten Plätzen der Stadt, geprägt von prachtvollen Palais, dem Schottenstift und einer erstklassigen Nachbarschaft aus Politik, Wirtschaft und Kultur.
Die Lage zeichnet sich durch eine exzellente urbane Qualität aus: In direkter Umgebung finden sich renommierte Hotels, exzellente Gastronomiebetriebe und exklusive Einkaufsmöglichkeiten. Die Anbindung an den öffentlichen Verkehr ist durch die unmittelbare Nähe zu den U-Bahn-Linien sowie verschiedenen Bus- und Straßenbahnverbindungen am Schottentor und am Graben als hervorragend zu bezeichnen.

Grundrisse

Andreas Polak-Evans

Andreas Polak-Evans

Modesta Real Estate

Lade...

Fotomix

Bild 1 Bild 2 Bild 3 Bild 4 Bild 5 Bild 6 Bild 7 Bild 8 Bild 9