NEU - Exklusive Dachgeschosswohnung im 20. Bezirk zu kaufen

Wohnung zum Kauf in 1200 Wien - Kaufpreis: 229.000 € / Objektnummer: 8422/1986
Ausstattung: Barrierefrei Boden Fahrstuhl Bad Gäste-WC Klimaanlage Abstellraum Etagenheizung Fußbodenheizung

Preisinformationen

Kaufpreis:
229.000 €
Betriebskosten netto:
59,00 € / Monat
Vermittlungsprovision:
Ja
Provision:
3% des Kaufpreises zzgl. 20% USt.

Fakten

Objektnummer:
8422/1986
Objekttyp:
Wohnung
Keller Fläche:
2 m²
Wohnfläche:
36 m²
Zimmer:
1
Badezimmer:
1
Toilette:
1
Baujahr:
1886
Altbau:
Ja
Letzte Sanierung:
2021
Zustand:
Modernisiert
Verfügbarkeit:
Verfügbar

Beschreibung

Zum Verkauf gelangt eine top sanierte 1-Zimmer Neubauwohnung im Dachgeschoss

 

In einer sehr gut angebundenen Lage
in unmittelbarer Nähe des Augartens! Die Wohnung hat ca. 36 m2.

Diese Wohnung liegt im 5. Liftstocks und bietet: einen Vorraum, einen großzügigen und sehr
hellem Wohnzimmer, Schlafzimmer, und ein Badezimmer mit Dusche und WC.

Das Haus verfügt über einen Lift, Gegensprechanlage und Fahrradabstellraum und die Allgemeinflächen wurden top saniert. Durch die ausgezeichnete Infrastruktur sind alle Geschäfte des täglichen Bedarfs sowie Ärzte, Kindergärten, Schule sowie U-Bahn schnell mit der Straßenbahnlinie 2 oder zu Fuß zu erreichen.
Der Zustand der Wohnung ist gepflegt.

Ausstattung:
Eigentumsneubauwohnung
5 Etage
Personenaufzug
Wohn/Schlafzimmer
Modern eingerichtete Küche mit sämtlichen Elektrogeräten, die perfekt in den offenen Wohnbereich integriert ist.
Badezimmer mit WC und Dusche
Beheizung durch effiziente Wärmelampe.
Klimaanlage

Preis:
Der Kaufpreis dieser Eigentumswohnung beträgt 229.500 €.

Haus:
Die Wohnung befindet sich in der 5. Etage eines top sanierten Altbaus in ausgezeichneter Lage.
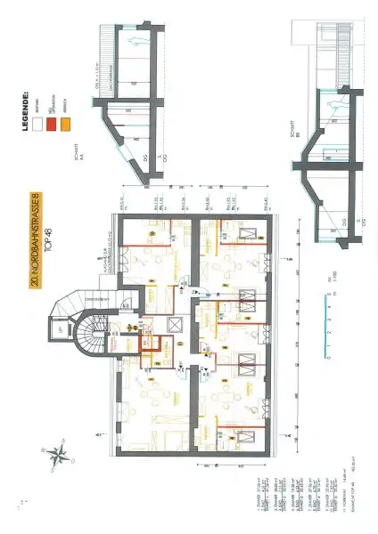
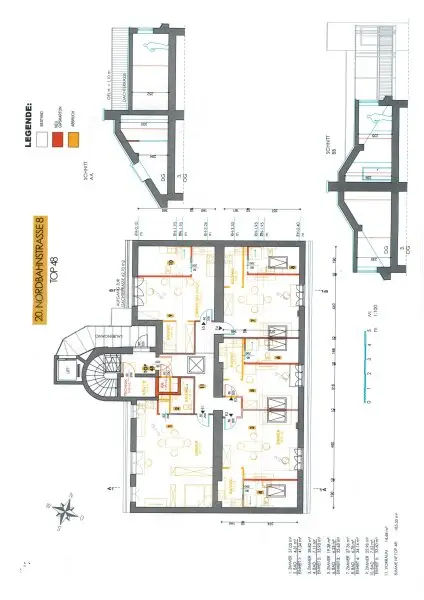
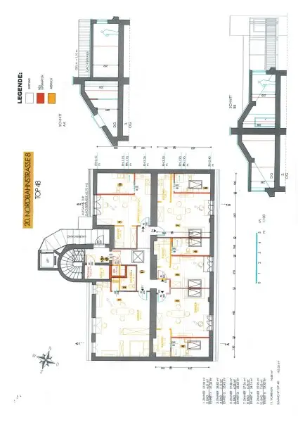
Wir haben im Haus 4 weitere Wohnungen zum Verkauf (siehe Plan).

Top E1: ca.42 m² - 229.000€ (2 Zimmer)
Top E2: ca.36 m² - 204.500€
Top E3: ca.26 m² - 155.500€
Top E4: ca.35 m² - 199.000€
Top E5: ca.34 m² - 198.000€

Für weitere Fragen steht Ihnen Herr David PLISHTIEV gerne unter 0664 466 4776 [tel:06644664776] zur Verfügung.

 

Wir weisen darauf hin, dass zwischen dem Vermittler und dem zu vermittelnden Dritten ein familiäres oder wirtschaftliches Naheverhältnis besteht.

Der Vermittler ist als Doppelmakler tätig.

Infrastruktur / Entfernungen

Gesundheit
Arzt <500m
Apotheke <500m
Klinik <1.000m
Krankenhaus <1.000m

Kinder & Schulen
Schule <500m
Kindergarten <500m
Universität <1.500m
Höhere Schule <1.500m

Nahversorgung
Supermarkt <500m
Bäckerei <500m
Einkaufszentrum <1.500m

Sonstige
Geldautomat <500m
Bank <500m
Post <500m
Polizei <1.000m

Verkehr
Bus <500m
U-Bahn <1.500m
Straßenbahn <500m
Bahnhof <1.000m
Autobahnanschluss <2.000m

Angaben Entfernung Luftlinie / Quelle: OpenStreetMap
Beschreibung weiterlesen

Lage und Verkehrsanbindung

Praterstern, Augarten, Taborstraße

Energieeffizienz

HWB:
124,2 kWh/(m²*a)
HWB Klasse:
D
fGEE:
2,24
fGEE Klasse:
D
Energieausweisart:
Energiebedarfs-ausweis
Gültig bis:
26.02.2033

Grundriss

Lageplan

1200 Wien | Wien 20., Brigittenau

Lade...
David Plishtiev

David Plishtiev
Geschäftsführender Gesellschafter

ADAMANT IMMOBILIEN GmbH

Lade...

Fotomix

Bild 1 Bild 2 Bild 3 Bild 4 Bild 5 Bild 6 Bild 7 Bild 8 Bild 9