Exklusive Dachgeschosswohnung mit 2 Terrassen nahe Augarten – Ruhelage & Fernblick

Wohnung zum Kauf in 1200 Wien - Kaufpreis: 750.000 € / Objektnummer: 8422/3873
Ausstattung: Barrierefrei Boden Fahrstuhl Bad Klimaanlage Etagenheizung Fußbodenheizung Balkon Terrasse

Preisinformationen

Kaufpreis:
750.000 €
Betriebskosten netto:
300,00 € / Monat

Fakten

Objektnummer:
8422/3873
Objekttyp:
Wohnung
Balkon:
1
Terrasse:
1
Balkonfläche:
13 m²
Keller Fläche:
2 m²
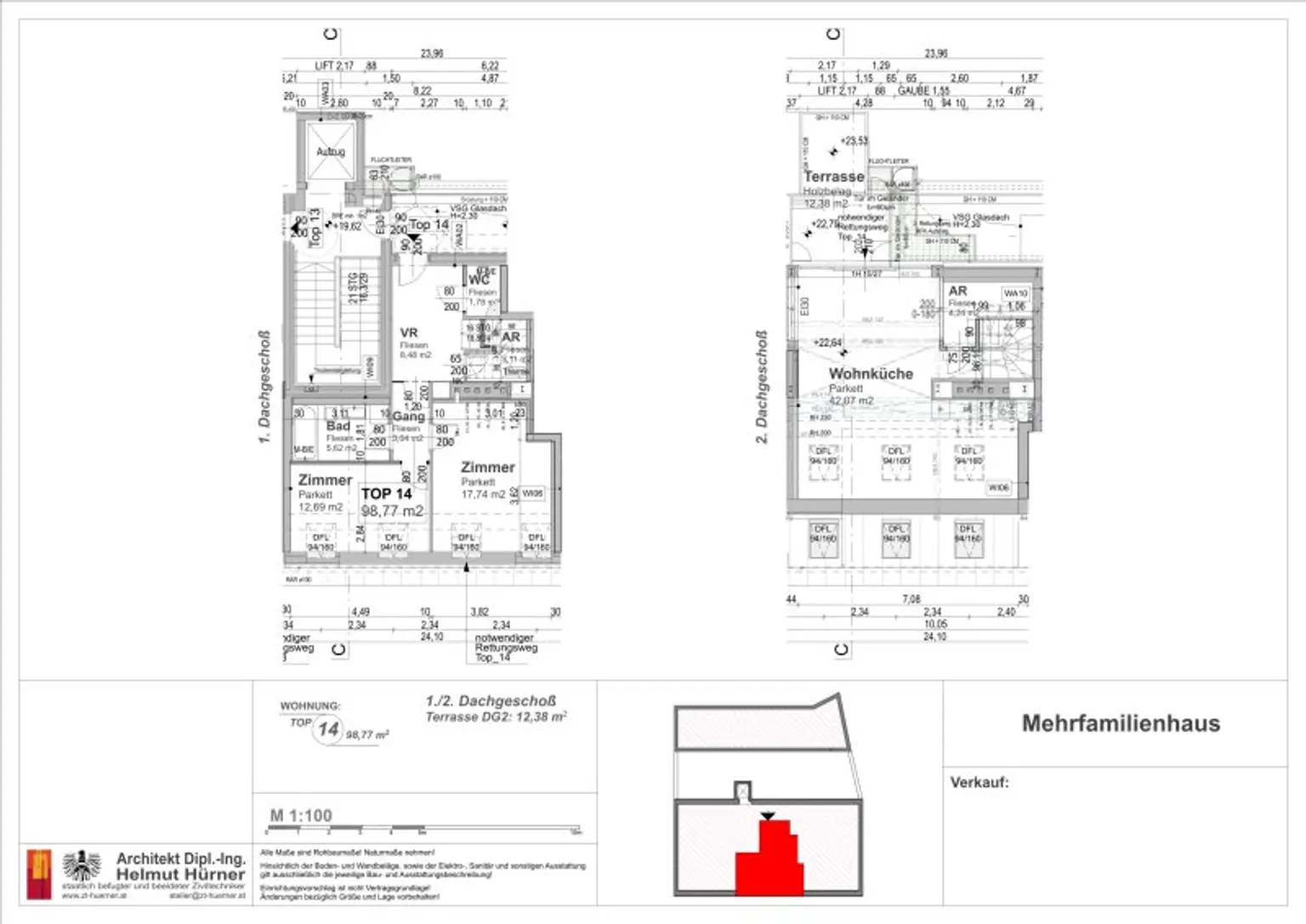
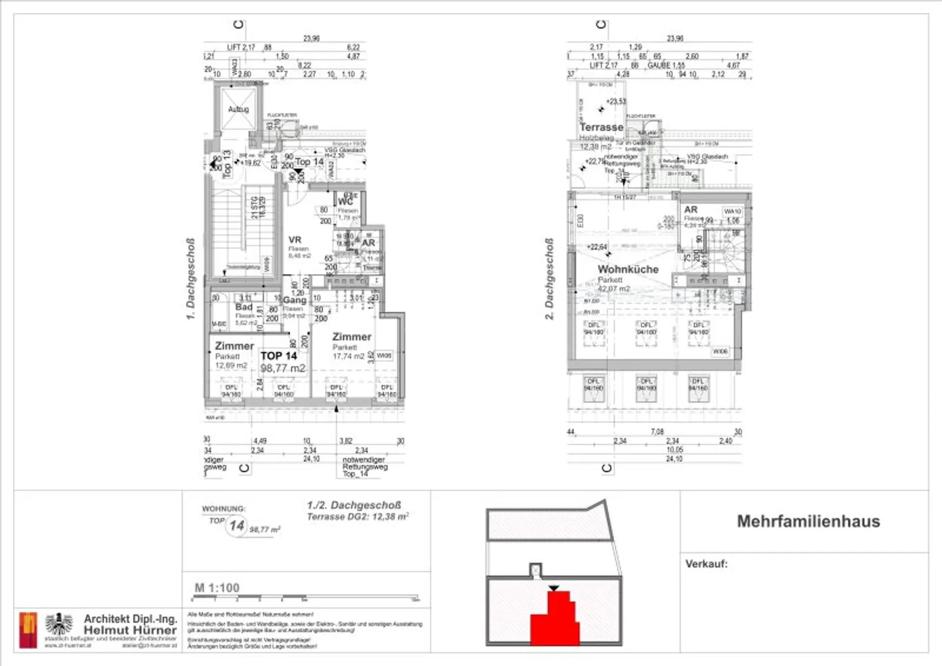
Wohnfläche:
100 m²
Zimmer:
3
Badezimmer:
1
Toilette:
1
Stockwerk:
5
Baujahr:
2016
Neubau:
Ja
Zustand:
Neuwertig
Verfügbarkeit:
Verfügbar
Verfügbar ab:
Sofort

Beschreibung

PENTHOUSE-FEELING ÜBER DEN DÄCHERN WIENS – STILVOLLE DACHGESCHOSSWOHNUNG MIT TERRASSEN & FERNBLICK NAHE AUGARTEN

In einer der begehrtesten Wohnlagen des 20. Wiener Gemeindebezirks präsentiert sich diese außergewöhnliche Dachgeschosswohnung als perfekte Symbiose aus urbanem Lifestyle, moderner Architektur und privater Ruhelage. Auf rund 100 m² Wohnfläche erwartet Sie ein exklusives Zuhause mit lichtdurchfluteten Räumen, hochwertigen Materialien und zwei traumhaften Freiflächen mit beeindruckendem Fernblick.

Bereits beim Betreten der Wohnung spürt man das besondere Wohngefühl: Großzügige Glasflächen, elegante Parkettböden und ein offenes Raumkonzept schaffen eine Atmosphäre von Leichtigkeit und stilvoller Eleganz. Der weitläufige Wohn- und Essbereich bildet das Herzstück der Immobilie und öffnet sich harmonisch zu den sonnigen Terrassenbereichen – ideal für entspannte Abende, Dinner mit Freunden oder einen Kaffee mit Blick über die Dächer Wiens.

Die hochwertige Ausstattung erfüllt höchste Ansprüche an modernes Wohnen. Eine stilvolle Einbauküche, Fußbodenheizung, Klimaanlage sowie ein edles Badezimmer mit Badewanne sorgen für maximalen Komfort. Die Immobilie wurde 2016 errichtet und 2020 generalsaniert – entsprechend präsentiert sie sich in neuwertigem Zustand.

 

 

 

Die intelligente Raumaufteilung bietet:

* großzügigen Wohn-/Essbereich
* zwei ruhige Schlafzimmer
* moderne Wohnküche
* Badezimmer mit Badewanne
* separates WC
* Vorraum
* Kellerabteil

 

Lage

Die Wohnung befindet sich im beliebten und hervorragend angebundenen Teil des 20. Bezirks. Die Wohngegend überzeugt mit einer ausgezeichneten Nahversorgung, kurzen Wegen zu öffentlichen Verkehrsmitteln und einem umfangreichen Angebot an Freizeit- und Bildungseinrichtungen.

Durch die optimale Anbindung an Bus, Straßenbahn, U-Bahn und die Nähe zu wichtigen Knotenpunkten ist die Wohnung ideal für alle, die sowohl das urbane Leben als auch kurze Wege schätzen. Grünflächen in der Umgebung laden zu Spaziergängen und Freizeitaktivitäten ein und machen den Standort besonders attraktiv für Menschen, die Stadt und Erholung verbinden möchten.

Gesundheit:

* Arzt: 200 m
* Apotheke: 300 m
* Klinik: 900 m
* Krankenhaus: 900 m

Nahversorgung:

* Supermarkt: 175 m
* Bäckerei: 300 m
* Einkaufszentrum: 1.050 m

Sonstige Einrichtungen:

* Geldautomat / Bank / Post: 525 m
* Polizei: 275 m

Verkehrsanbindung:

* Bus: 150 m
* Straßenbahn: 200 m
* U-Bahn: 700 m
* Bahnhof: 700 m
* Autobahnanschluss: 1.650 m

 

Kaufpreis & Kosten

* Kaufpreis: € 750.000,-
* Betriebskosten: ca. € 390,- / Monat
 

Kaufnebenkosten:

* Grunderwerbsteuer: 3,5 %
* Grundbucheintragungsgebühr: 1,1 %
* Vertragserrichtung & Treuhand: nach Vereinbarung

Kontakt

Ihr Ansprechpartner:

David Plishtiev

Geschäftsführender Gesellschafter

ADAMANT IMMOBILIEN GmbH

📞 +43 664 466 4776 [tel:+436644664776]

📧 d.plishtiev@adamant-immobilien.at

🌐 www.adamant-immobilien.at

Wir weisen darauf hin, dass zwischen dem Vermittler und dem zu vermittelnden Dritten ein familiäres oder wirtschaftliches Naheverhältnis besteht.

Der Vermittler ist als Doppelmakler tätig.

Infrastruktur / Entfernungen

Gesundheit
Arzt <500m
Apotheke <500m
Klinik <1.000m
Krankenhaus <1.000m

Kinder & Schulen
Schule <500m
Kindergarten <1.000m
Universität <1.500m
Höhere Schule <1.000m

Nahversorgung
Supermarkt <500m
Bäckerei <500m
Einkaufszentrum <1.500m

Sonstige
Geldautomat <1.000m
Bank <1.000m
Post <1.000m
Polizei <500m

Verkehr
Bus <500m
U-Bahn <1.000m
Straßenbahn <500m
Bahnhof <1.000m
Autobahnanschluss <2.000m

Angaben Entfernung Luftlinie / Quelle: OpenStreetMap
Beschreibung weiterlesen

Lage und Verkehrsanbindung

Augarten

Energieeffizienz

HWB:
31,7 kWh/(m²*a)
HWB Klasse:
B
fGEE:
1,09
fGEE Klasse:
C
Energieausweisart:
Energiebedarfs-ausweis
Gültig bis:
03.03.2036

Grundriss

Lageplan

1200 Wien | Wien 20., Brigittenau

Lade...
David Plishtiev

David Plishtiev
Geschäftsführender Gesellschafter

ADAMANT IMMOBILIEN GmbH

Lade...

Fotomix

Bild 1 Bild 2 Bild 3 Bild 4 Bild 5 Bild 6 Bild 7 Bild 8 Bild 9 Bild 10 Bild 11 Bild 12 Bild 13 Bild 14 Bild 15 Bild 16 Bild 17 Bild 18 Bild 19 Bild 20 Bild 21 Bild 22