NEU - Exklusive Dachgeschoßwohnung mit großer Dachterrasse und einzigartigem Blick über Wien - Nähe Cottage / Gersthofer Platzl

Wohnung zum Kauf in 1180 Wien - Kaufpreis: 2.350.000 € / Objektnummer: 334
Ausstattung: Boden Fahrstuhl Bad Klimaanlage Abstellraum Fußbodenheizung Balkon Terrasse

Preisinformationen

Kaufpreis:
2.350.000 €
Betriebskosten netto:
764,55 € / Monat
Vermittlungsprovision:
Ja
Provision:
3% des Kaufpreises zzgl. 20% USt.

Fakten

Objektnummer:
334
Objekttyp:
Wohnung
Balkon:
1
Terrasse:
1
Balkonfläche:
12 m²
Wohnfläche:
258,12 m²
Zimmer:
5
Badezimmer:
1
Toilette:
1
Verfügbarkeit:
Verfügbar
Verfügbar ab:
sofort

Beschreibung

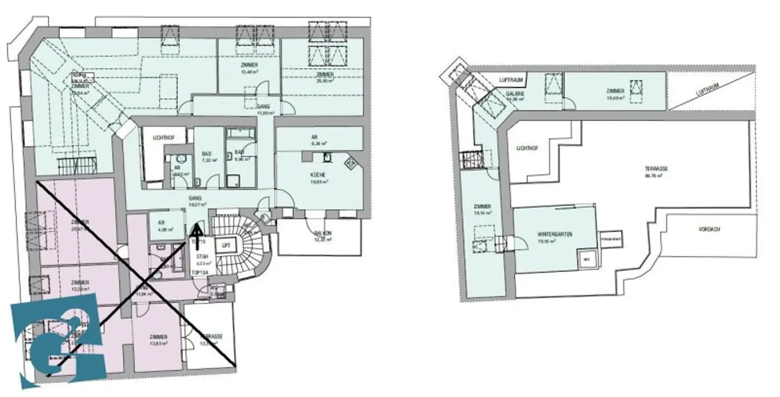
Zum Verkauf gelangt eine repräsentative Dachgeschoßwohnung auf 2 Ebenen mit ca. 260m² Nutzfläche sowie ca. 100m² Freifläche (12m² südseitiger Balkon und 87m² Dachterrasse) in einem sehr gepflegten, charmanten Altbau an der Ecke Alseggerstraße / Ferrogasse. 

In der unteren Ebene ( = 1. Dachgeschoß) befinden sich folgende Räume:

- Eingang / Vorraum mit großer Garderobe

- lichtdurchfluteter, 2-geschossiger Wohnraum (ca. 72m²) mit offener Treppe in das 2. DG

- Master bedroom (ca. 25m²)

- Schlaf-, Kinder-, Arbeitszimmer (ca. 13m²)

- möblierte und komplett ausgestattete Küche

- große Speis / Vorratsraum

- möbliertes Bad mit Dusche, Wanne, Waschtisch, Bidet

- separates WC

- Wirtschaftsraum (optional zu einem weiteren Bad ausbaubar)

- Abestellraum / Haustechnik

- ca. 12m² südseitiger Balkon (direkt von der Küche begehbar)

Das Obergeschoß ( = 2. Dachgeschoß) besteht aus einer offenen Galerie sowie 2 weiteren, kleineren Räumen (mit Dachschrägen). Von dort gelangt man über wenige Stufen auf die beeindruckende Dachterrasse mit einem rundum verglasten Wintergarten, welcher über eine eigene Liftstation verfügt und exklusiv den Bewohnern zur Verfügung steht. Die außergewöhnliche Größe der Terrasse und der Blick auf die Stadt sowie die angrenzenden Bezirke sind einzigartig. Absolute Privatsphäre ist garantiert, da die Terrasse nicht einsehbar ist.

Sowohl die Wohnung als auch das Haus befinden sich in einem sehr gepflegten Zustand in einer der besten Lagen von Währing. Zum Gersthofer Platzl sind es lediglich 3 Gehminuten. In unmittelbarer Nähe befindet sich die gesamte Infrastruktur für den täglichen Bedarf (Supermarkt, Apotheke, Bank etc) sowie Schulen, Restaurants, Cafes etc. sowie eine sehr gute Anbindung an das öffentliche Verkehrsnetz (Straßenbahn, Bus, Schnellbahn). Zum beliebten Türkenschanzpark mit seinen vielen Freizeit- und Erholungsmöglichkeiten sind es ebenfalls nur wenige Gehminuten.

 

 

 

Wir weisen darauf hin, dass zwischen dem Vermittler und dem zu vermittelnden Dritten ein familiäres oder wirtschaftliches Naheverhältnis besteht.

Der Vermittler ist als Doppelmakler tätig.

Infrastruktur / Entfernungen

Gesundheit
Arzt <500m
Apotheke <500m
Klinik <1.000m
Krankenhaus <2.000m

Kinder & Schulen
Schule <500m
Kindergarten <500m
Universität <1.000m
Höhere Schule <500m

Nahversorgung
Supermarkt <500m
Bäckerei <500m
Einkaufszentrum <2.000m

Sonstige
Geldautomat <500m
Bank <500m
Post <500m
Polizei <1.000m

Verkehr
Bus <500m
U-Bahn <1.500m
Straßenbahn <500m
Bahnhof <500m
Autobahnanschluss <3.000m

Angaben Entfernung Luftlinie / Quelle: OpenStreetMap
Beschreibung weiterlesen

Energieeffizienz

HWB:
68 kWh/(m²*a)
fGEE:
1,15
Energieausweisart:
Energiebedarfs-ausweis

Grundriss

Lageplan

1180 Wien | Wien 18., Währing

Lade...
Thomas Tischler

Thomas Tischler
Geschäftsführer

G2 Real GmbH

Lade...

Fotomix

Bild 1 Bild 2 Bild 3 Bild 4 Bild 5 Bild 6 Bild 7 Bild 8 Bild 9 Bild 10 Bild 11 Bild 12 Bild 13 Bild 14 Bild 15 Bild 16 Bild 17 Bild 18 Bild 19 Bild 20 Bild 21 Bild 22 Bild 23 Bild 24