NEU - Exklusive DG-Wohnung mit Top-Infrastruktur I 2 Bäder I voll ausgestattete Küche I Balkon I Luftwärmepumpe I

Wohnung zum Kauf in 1100 Wien - Kaufpreis: 449.000 € / Objektnummer: 16598
Ausstattung: Boden Fahrstuhl Wohnküche / offene Küche Bad Gäste-WC Fahrradraum Fußbodenheizung Balkon

Preisinformationen

Kaufpreis:
449.000 €
Kaufpreis/m²
4.092,98 €
Vermittlungsprovision:
Ja
Provision:
3% des Kaufpreises zzgl. 20% USt.

Fakten

Objektnummer:
16598
Objekttyp:
Wohnung
Balkon:
1
Balkonfläche:
18,38 m²
Wohnfläche:
91,3 m²
Nutzfläche:
109,7 m²
Zimmer:
3
Badezimmer:
2
Toilette:
2
Neubau:
Ja
Verfügbarkeit:
Verfügbar

Beschreibung

Dank der idealen Infrastruktur und der optimalen öffentlichen Verkehrsanbindung präsentiert sich diese exklusive 3-Zimmer-Dachgeschosswohnung als perfektes urbanes Zuhause.

Die Wohnung bietet auf ca. 91,3 m² höchsten Wohnkomfort und besticht mit einem lichtdurchfluteten und einladend offenen Grundriss! 
Die durchdachte Gestaltung der Räume macht diese Wohnung u.a. besonders attraktiv für Familien, die für ihr Kind einen eigenen Bereich inklusive eigenem Badezimmer wünschen.
 

Einige der Highlights auf einen Blick:

* DG-Maisonnette-Wohnung 
* vorteilhafter und gut durchdachter Grundriss 
* ca. 18,4m² großer Balkon 
* voll ausgestattete Küche 
* 2 Tageslichtbäder 
* separates WC mit Handwaschbecken
* Echtholzparkettboden 
* Fußbodenheizung 
* Luftwärmepumpe 
* Kellerabteil
* Fahrradraum 

Die Wohnfläche von ca. 91,3m² verteilt sich über die folgenden Räumlichkeiten: 

Obergeschoss:

* großzügiges Vorzimmer
* lichterfülltes Wohnzimmer mit voll ausgestatteter und unbenutzter Küche sowie Ausgang auf den Balkon 
* Schlafzimmer 
* Tageslichtbad mit Badewanne 
* separates WC mit Handwaschbecken 

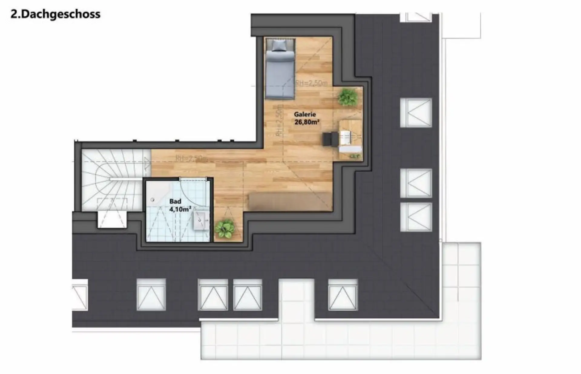
Dachgeschoss:

* Schlafzimmer
* Tageslichtbad mit Dusche 

 

TOP-Lage:

Bus: 7A: ca. 200m; 66A: ca. 500m; 65A: ca. 600m; 15A: ca. 850m 
Straßenbahn: 11 und O: ca. 350m; 6 ca. 700m 
U1: ca. 950m 

Kindergarten ca. 220m
Volksschule ca. 290m 
Mittelschule ca. 650m 
Gymnasium ca. 800m 

 

Gerne steht Ihnen Frau Maja Arsic für weitere Fragen bzw. flexibel gestaltbare Besichtigungstermine unter 0699 180 47 130 zur Verfügung.  
www.ringsmuth-immobilien.at

Irrtum und Änderungen vorbehalten!

Hinweis gemäß Energieausweisvorlagegesetz: Ein Energieausweis wurde vom Eigentümer bzw. Verkäufer, nach unserer Aufklärung über die generell geltende Vorlagepflicht, sowie Aufforderung zu seiner Erstellung noch nicht vorgelegt. Daher gilt zumindest eine dem Alter und der Art des Gebäudes entsprechende Gesamtenergieeffizienz als vereinbart. Wir übernehmen keinerlei Gewähr oder Haftung für die tatsächliche Energieeffizienz der angebotenen Immobilie.

Infrastruktur / Entfernungen

Gesundheit
Arzt <500m
Apotheke <500m
Klinik <1.000m
Krankenhaus <1.500m

Kinder & Schulen
Schule <500m
Kindergarten <500m
Universität <1.000m
Höhere Schule <2.500m

Nahversorgung
Supermarkt <500m
Bäckerei <500m
Einkaufszentrum <1.500m

Sonstige
Geldautomat <500m
Bank <500m
Post <500m
Polizei <500m

Verkehr
Bus <500m
U-Bahn <1.000m
Straßenbahn <500m
Bahnhof <1.000m
Autobahnanschluss <2.000m

Angaben Entfernung Luftlinie / Quelle: OpenStreetMap
Beschreibung weiterlesen

Lage und Verkehrsanbindung

Bus: 7A: ca. 200m; 66A: ca. 500m; 65A: ca. 600m; 15A: ca. 850m 
Straßenbahn: 11 und O: ca. 350m; 6 ca. 700m 
U1: ca. 950m 

Kindergarten ca. 220m
Volksschule ca. 290m 
Mittelschule ca. 650m 
Gymnasium ca. 800m

Grundrisse

Lageplan

1100 Wien | Wien 10., Favoriten

Lade...
Maja Arsic

Maja Arsic
Immobilienfachberaterin

Alexander Ringsmuth GmbH

Lade...

Fotomix

Bild 1 Bild 2 Bild 3 Bild 4 Bild 5 Bild 6 Finanzierung Bild 8 Bild 9