NEU - Exklusive Maisonette im Herzen des 8. Bezirks mit privatem SPA & vielseitiger Zusatzeinheit

Wohnung zum Kauf in 1080 Wien / Objektnummer: 1056
Ausstattung: Fahrstuhl Sauna Sporteinrichtungen Klimaanlage Fußbodenheizung Terrasse Garten WG geeignet
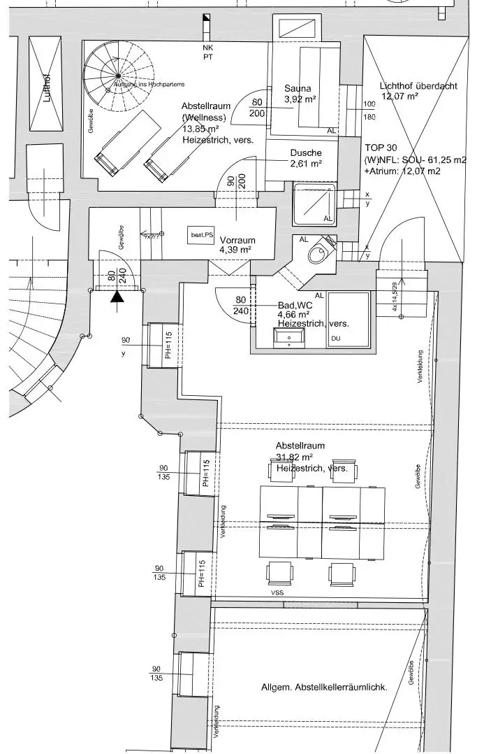
UG Wohnzimmer
UG Dusche + WC
UG Atrium
UG Atrium
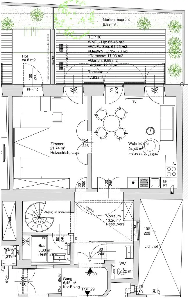
EG Vorzimmer
EG Wohnzimmer mit Küche
EG Terrasse
EG Schlafzimmer
EG Dusche + WC
UG Jacuzzi
UG Eingang
UG Eingang vom Innenhof
UG Innenhof
Top 30 UG
Top 30 EG

Preisinformationen

Betriebskosten netto:
286,39 € / Monat
Preisinfos:
Fixpreis
Provision:
3.00 %

Fakten

Objektnummer:
1056
Objekttyp:
Wohnung
Terrasse:
1
Keller Fläche:
12,07 m²
Wohnfläche:
126,7 m²
Gartenfläche:
9,99 m²
Zimmer:
4,5
Schlafzimmer:
1
Badezimmer:
2
Toilette:
2
Stockwerk:
1
Baujahr:
ca. 1900
Altbau:
Ja
Zustand:
Gepflegt
Verfügbarkeit:
Verfügbar

Beschreibung

Mitten im historischen und gleichzeitig trendigen Josefstadt wartet eine Immobilie, die in Wien ihresgleichen sucht. Diese besondere Maisonette verbindet urbanes Wohnen, stilvolles Arbeiten und exklusives Entspannen – und das in absolut ruhiger, geschützter Innenhoflage. Wer ein Zuhause mit Mehrwert und außergewöhnlicher Nutzungsvielfalt sucht, wird hier fündig.
Investment-Highlight
Die Wohnung ist aktuell bis 1. September 2026 vermietet.

Die mobile Einrichtung gehört dem Mieter und wird bei einem Auszug entfernt.

Die Immobilie

Die Maisonette verteilt sich auf zwei in sich abgeschlossene Ebenen, die gemeinsam als großzügiges Wohnkonzept genutzt oder völlig getrennt geführt werden können. Beide Geschosse verfügen über eigene Eingänge – ideal für flexible Lebens- und Arbeitsmodelle.

Unteres Geschoss – Ihre persönliche Wellness-Oase
Ein seltenes Luxusfeature inmitten der Stadt:
- privater SPA-Bereich mit
- Whirlpool / Jacuzzi
- Sauna
- großem Badezimmer mit Glasdusche
- eleganter, offener Wellnessraum
- überdachter Lichthof (ca. 12 m²) – perfekt zum Entspannen bei jedem Wetter
- direkt angeschlossene, separate Einheit mit eigenem Eingang
ideal als Büro, Atelier, Gäste- oder Personalbereich, alternativ perfekt für ein Privatgym
Diese Ebene bildet ein abgeschirmtes Refugium – ob zur Selbstnutzung, für Gäste oder als wertbringende Zusatzeinheit.

Oberes Geschoss – Wohnen mit Garten & Glasdach
Die obere Ebene empfängt Sie mit moderner Leichtigkeit und zeitloser Eleganz:
großzügiger Vorraum mit Bad und separatem WC
- helle Wohnküche
- Schlafzimmer mit begehbarem Kleiderschrank
- privater Gartenbereich mit innovativem, wetterfestem Glasdach
- atmosphärische LED-Beleuchtung für stimmungsvolle Abende

Der Garten ist ein echtes Highlight – ein geschützter Außenbereich, der dank Glasüberdachung das ganze Jahr über nutzbar ist.
Flexibel, wandelbar, einzigartig
Ob Sie zusätzliche Räume schaffen möchten, die Ebenen trennen oder Ihr eigenes Designkonzept realisieren wollen – bauliche Änderungen sind problemlos möglich.

Diese Maisonette ist nicht nur eine Wohnung – sie ist ein Lebenskonzept.
Mit SPA, Garten, separater Einheit und der außergewöhnlich ruhigen Lage im Zentrum Wiens bietet sie eine seltene Kombination aus Komfort, Stil und Flexibilität.
Eine perfekte Wahl für Eigennutzer, kreative Köpfe, Unternehmer oder Investoren.

Rechtlicher Hinweis
Alle Angaben im Exposé basieren auf Informationen des Auftraggebers und erfolgen ohne Gewähr. Für Richtigkeit, Vollständigkeit und Aktualität wird nicht gehaftet. Zwischenverkauf vorbehalten, sofern keine verbindliche Reservierung oder Kaufbestätigung vorliegt.
Angaben gemäß gesetzlichem Erfordernis:
Heizwärmebedarf: 133.2 kWh/(m²a)
Klasse Heizwärmebedarf: D
Faktor Gesamtenergieeffizienz: 2.52
Klasse Faktor Gesamtenergieeffizienz: E
Beschreibung weiterlesen

Energieeffizienz

HWB Klasse:
D
fGEE:
2,52
fGEE Klasse:
E
Energieausweisart:
Energiebedarfs-ausweis
Maria Kohler

Maria Kohler

ImmoTrading GmbH

Anrufen
Lade...

Fotomix

UG Wohnzimmer UG Dusche + WC UG Atrium UG Atrium EG Vorzimmer EG Wohnzimmer mit Küche EG Terrasse EG Schlafzimmer EG Dusche + WC UG Jacuzzi UG Eingang UG Eingang vom Innenhof UG Innenhof Top 30 UG Top 30 EG