NEU - Exklusives Eckreihenhaus mit Terrasse, Whirlpool und 2 Parkplätzen – voll möbliert, in Zentrumslage von Steyr!

Haus zum Kauf in 4400 Steyr - Kaufpreis: 580.000 € / Objektnummer: 2273/3246
Ausstattung: Möbliert Rollladen Klimaanlage Sicherheitskamera Parkplatz Außenparkplatz Abstellraum Fußbodenheizung Balkon Terrasse

Preisinformationen

Kaufpreis:
580.000 €
Vermittlungsprovision:
Ja
Provision:
3% des Kaufpreises zzgl. 20% USt.

Fakten

Objektnummer:
2273/3246
Objekttyp:
Haus
Balkon:
1
Terrasse:
1
Keller Fläche:
57,7 m²
Wohnfläche:
139,59 m²
Nutzfläche:
57,7 m²
Badezimmer:
2
Toilette:
3
Verfügbarkeit:
Verfügbar

Beschreibung

Träumen Sie von einem besonderen Zuhause – mitten im Leben, aber trotzdem nah an der Natur? Legen Sie besonderen Wert auf ein durchdachtes Raumkonzept, in dem Stil, Komfort und Qualität harmonisch zusammenfinden? Dann lassen Sie sich diese Gelegenheit nicht entgehen!

In sonniger Südlage, im begehrten Steyrer Stadtteil Münichholz, erwartet Sie dieses exklusive Wohnjuwel. Die großzügigen Wohnbereiche sind durchdacht gestaltet und lassen sich flexibel an Ihre individuellen Lebenssituationen anpassen. In Kombination mit den hochwertigen und modernen Ausstattungsdetails wurden alle Elemente mit großer Sorgfalt und Liebe zum Detail aufeinander abgestimmt.

Die Liegenschaft wurde laufend modernisiert und überzeugt außen wie innen durch einen erstklassigen Zustand. Zu den wesentlichen Maßnahmen zählen die Erneuerung von Dach und Fenstern (inkl. Montage von elektrischer Raffstores und Rollläden). Für eine nachhaltige Wärmeversorgung sorgt der Heizungsumstieg auf eine Luftwärmepumpe sowie die Anbringung eines Vollwärmeschutzes, wodurch die allgemeine Energieeffizienz des Hauses deutlich verbessert wurde.

Darüber hinaus wurde die Elektroinstallation erneuert und das Kellergeschoss im Zuge einer Kernsanierung umfassend saniert. Auch der Wohnkomfort wurde kontinuierlich aufgewertet: Eine Klimaanlage wurde neu installiert und ein offener Kamin im Wohn- und Essbereich integriert. Zudem erhielt die Terrasse ein komplettes Update – mit einem hochwertigen Steinteppich sowie einer neu ausgeführten Steinmauer. Neue Böden, Türen und eine modernisierte Stiege runden das Gesamtbild gelungen ab.

Das Haus erstreckt sich über vier Etagen und bietet Ihnen eine Wohn- und Nutzfläche von ca. 197,29 m².

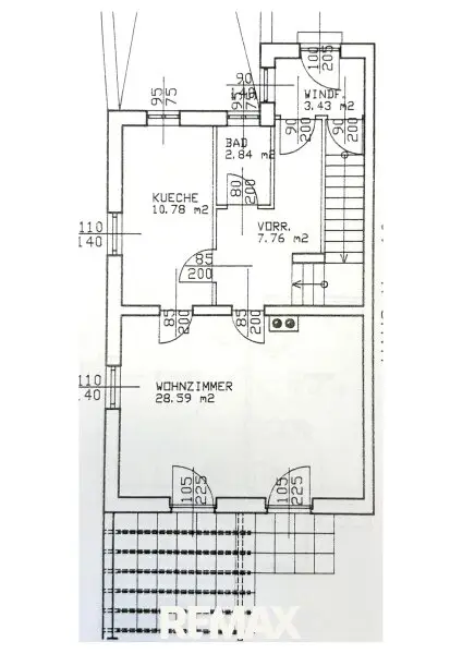
Das Erd- und Dachgeschoss umfasst ca. 139,59 m² und beinhaltet ein Vorzimmer/Garderobe, einen offenen Wohn-, Küchen- und Essbereich, vier individuell nutzbare Zimmer, zwei Tageslichtbadezimmer mit WC sowie einen Schrankraum.

Das gesamte Kellergeschoss ist beheizt, über einen separaten Haupteingang begehbar und umfasst ca. 57,70 m². Das Herzstück bildet dabei der ca. 33,73 m² große Raum, der sich ideal als Arbeitszimmer, kreativer Hobbyraum oder auch als zusätzlicher Wohn- und Schlafbereich nutzen lässt. Ergänzt wird das Raumangebot durch einen Technikraum, einen Hauswirtschaftsraum (Waschküche) mit WC sowie einen Abstell- und Lagerraum.

Ein absolutes Highlight ist der traumhafte Außenbereich. Die großzügige Terrasse begeistert mit besonderem Flair und bietet in Kombination mit dem modernen Whirlpool sowie zahlreichen gemütlichen Sitz- und Liegeplätzen reichlich Raum zum Entspannen, Genießen und Zusammensein. Zudem bietet der Balkon einen weiteren gemütlichen Rückzugsort im Freien.

Besonders hervorzuheben ist, dass ein Großteil der Möbel, Geräte und Einrichtungsgegenstände im Kaufpreis inkludiert ist (detaillierte Inventarliste finden Sie im Expose). Das spart Ihnen hohe Anschaffungskosten zu Beginn und ermöglicht Ihnen einen schnellen, stressfreien Einzug.

Für eine stressfreie Heimkehr ist ebenfalls gesorgt - direkt vor dem Hauseingang befinden sich zwei KFZ-Stellplätze im Freien. Bei Bedarf ist die Errichtung eines Carports möglich – der Einreichplan samt Bauanzeige liegt bereits vor.

Alle Geschäfte des täglichen Bedarfs, Ärzte, Schulen, Shops, Restaurants, Supermärkte sowie Sport- und Unterhaltungsmöglichkeiten befinden sich in unmittelbarer Umgebung.

Abgerundet wird die einzigartige Wohnqualität durch die Nähe zur grünen Umgebung mit wunderschönen Spazier-, Lauf- und Fahrradstrecken.

Nutzen Sie die Chance und überzeugen Sie sich bei einer unverbindlichen Besichtigung von dieser Immobilie.

 

Der Vermittler ist als Doppelmakler tätig.

Infrastruktur / Entfernungen

Gesundheit
Arzt <500m
Apotheke <500m
Klinik <2.500m
Krankenhaus <4.000m

Kinder & Schulen
Schule <500m
Kindergarten <500m
Universität <2.500m
Höhere Schule <3.000m

Nahversorgung
Supermarkt <500m
Bäckerei <1.500m
Einkaufszentrum <2.000m

Sonstige
Bank <500m
Geldautomat <500m
Post <500m
Polizei <500m

Verkehr
Bus <500m
Bahnhof <500m

Angaben Entfernung Luftlinie / Quelle: OpenStreetMap
Beschreibung weiterlesen

Energieeffizienz

HWB:
71 kWh/(m²*a)
Energieausweisart:
Energiebedarfs-ausweis

Grundrisse

Lageplan

4400 Steyr | Steyr (Stadt)

Lade...
Anita Celik

Anita Celik
staatlich geprüfte Immobilienmaklerin

REMAX Alpha

Lade...

Fotomix

Küche Küchen- und Essbereich (EG) Wohnbereich mit Ausgang zur Terrasse (EG) Terrasse mit Whirlpool Sitz-Lounge Aufgang von EG zu DG Zimmer 1 (DG) Zimmer 2 (DG) Zimmer 3 (DG) Badezimmer (DG) Balkon (DG) Zimmer 4 (ausgebauter Dachboden) Vorraum - Kellergeschoss Arbeitszimmer/Hobbyraum/zusätzlicher Wohn- und Schlafbereich (KG) Arbeitszimmer/Hobbyraum/zusätzlicher Wohn- und Schlafbereich (KG) Arbeitszimmer/Hobbyraum/zusätzlicher Wohn- und Schlafbereich (KG) Hauswirtschaftsraum (Waschküche) mit WC  (KG) Außenansicht