NEU - Flexible Bürofläche im Bürogebäude Brehmstraße!

Immobilie zur Miete in 1110 Wien / Objektnummer: 10011863
_DSC7233
_DSC7417
026
Foto 2

Preisinformationen

Betriebskosten netto:
3,50 € / Monat
Miete/m² netto:
9,70 €
Vermittlungsprovision:
Ja

Fakten

Objektnummer:
10011863
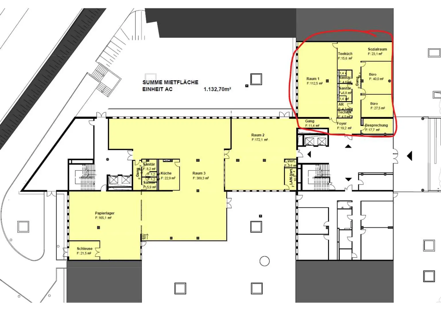
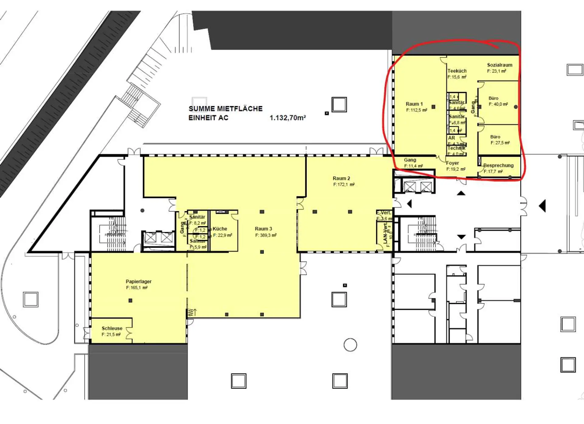
Nutzfläche:
1.521,8 m²
Bürofläche:
1.521,8 m²
Gesamtfläche:
1.521,8 m²
Verfügbarkeit:
Verfügbar

Beschreibung

Das Bürogebäude in der Brehmstraße ist Bestandteil des aufstrebenden Büroclusters Geiselbergstraße. Namhafte Firmen haben sich hier zuletzt angesiedelt. Auch wichtige Büroinfrastruktureinrichtungen, wie Betriebsrestaurants, eine Bäckerei, ein Lebensmittelmarkt oder ein Kindergarten, bestehen bereits. Das Gebäude verfügt über zwei Treppenhäuser mit Doppelaufzugsanlagen sowie ein zentrales Eingagsfoyer über welches man zu den Büroeinheiten gelangt.
Die Raumeinteilung der zu vermietenden Büroflächen ist sehr flexibel gestaltet, wodurch eine Nutzung der Flächen als Gruppen- oder Einzelbüros möglich ist. Die Ausstattung umfasst einen antistatischen, stuhlrollenfesten Teppichboden, Fenster mit Sonnenschutz sowie eine permanente Be- und Entlüftung der Büroräume. Außerdem ist eine Teeküche vorhanden.
Beschreibung weiterlesen

Lage und Verkehrsanbindung

Zwischen Ostbahn und der Südost-Tangente liegt das Büroprojekt. Über die Anschlussstelle Gürtel ist die Stadtautobahn sehr gut erreichbar. Über die Simmeringer Hauptstraße und den Rennweg ist das Zentrum gut angebunden. Mit der Flughafen-Schnellbahn CAT gelangt man in 5 Minuten ins Zentrum Wiens sowie in 15 Minuten zum Flughafen.


Öffentliche Verkehrsanbindung:
Schnellbahn: S7 (Flughafen-Schnellbahn)
Straßenbahn: 6
Bus: 69A (3 Stationen zur U-Bahn U3)

Parken:
In der Tiefgarage sind Stellplätze anmietbar.

Energieeffizienz

HWB:
22,11 kWh/(m²*a)

Grundrisse

Andreas Polak-Evans

Andreas Polak-Evans

Modesta Real Estate

Lade...

Fotomix

_DSC7233 _DSC7417 026 Foto 2 Bild 5 Bild 6 Bild 7