NEU - Frisch renovierte Dachgeschoss - Maisonette mit 2 Terrassen, Kamin und Klimaanlage

Wohnung zum Kauf in 1020 Wien - Kaufpreis: 1.050.000 € / Objektnummer: 1124/1280
Ausstattung: Boden Fahrstuhl Wohnküche / offene Küche Bad Gäste-WC Klimaanlage Abstellraum Fußbodenheizung Terrasse

Preisinformationen

Kaufpreis:
1.050.000 €
Vermittlungsprovision:
Ja
Provision:
37.800,00 € inkl. 20% USt.

Fakten

Objektnummer:
1124/1280
Objekttyp:
Wohnung
Terrasse:
2
Keller Fläche:
4 m²
Wohnfläche:
116,34 m²
Nutzfläche:
116,34 m²
Zimmer:
4
Badezimmer:
2
Toilette:
2
Stockwerk:
4
Baujahr:
2016
Neubau:
Ja
Zustand:
Neuwertig
Verfügbarkeit:
Verfügbar

Beschreibung

KLIMATISIERTES PENTHOUSE MIT DACHTERRASSE, KAMIN UND BLICK ÜBER WIEN NAHE UNO-CITY

 

_Hinweis: Die Wohnung befindet sich derzeit in der finalen Sanierungsphase. Einzelne Arbeiten werden in den kommenden Wochen fertiggestellt. Die Fotos zeigen den aktuellen Zustand. Nach Abschluss sämtlicher Arbeiten werden die Aufnahmen aktualisiert._

 

Diese besondere, frisch renovierte Penthouse-Maisonette bietet viel Licht und ein sehr angenehmes Wohngefühl auf zwei Ebenen. Auf ca. 116,34 m² Wohnfläche entsteht ein Zuhause, das modern ausgestattet ist und gleichzeitig viel Atmosphäre mitbringt. Die Immobilie befindet sich im 4. Stock eines gepflegten Gründerzeitbaus. Der Zugang zur Liegenschaft erfolgt über einen abgesperrten Vorgarten. Die Wohnung selbst bietet helle moderne Räume und eine bereits installierte Klimaanlage im Wohn- und Küchenbereich sowie im Master-Schlafzimmer. Sollten Sie auch in den weiteren Räumen eine Klimaanlage installieren wollen, ist die entsprechende Vorbereitung bereits vorhanden.

 

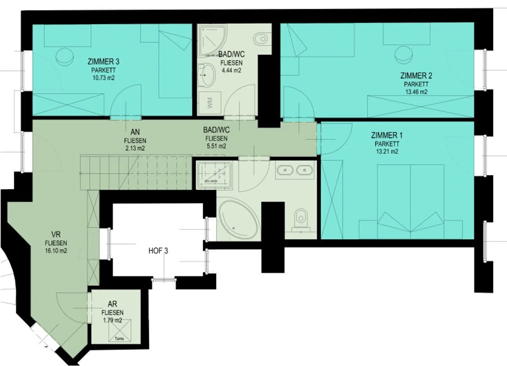
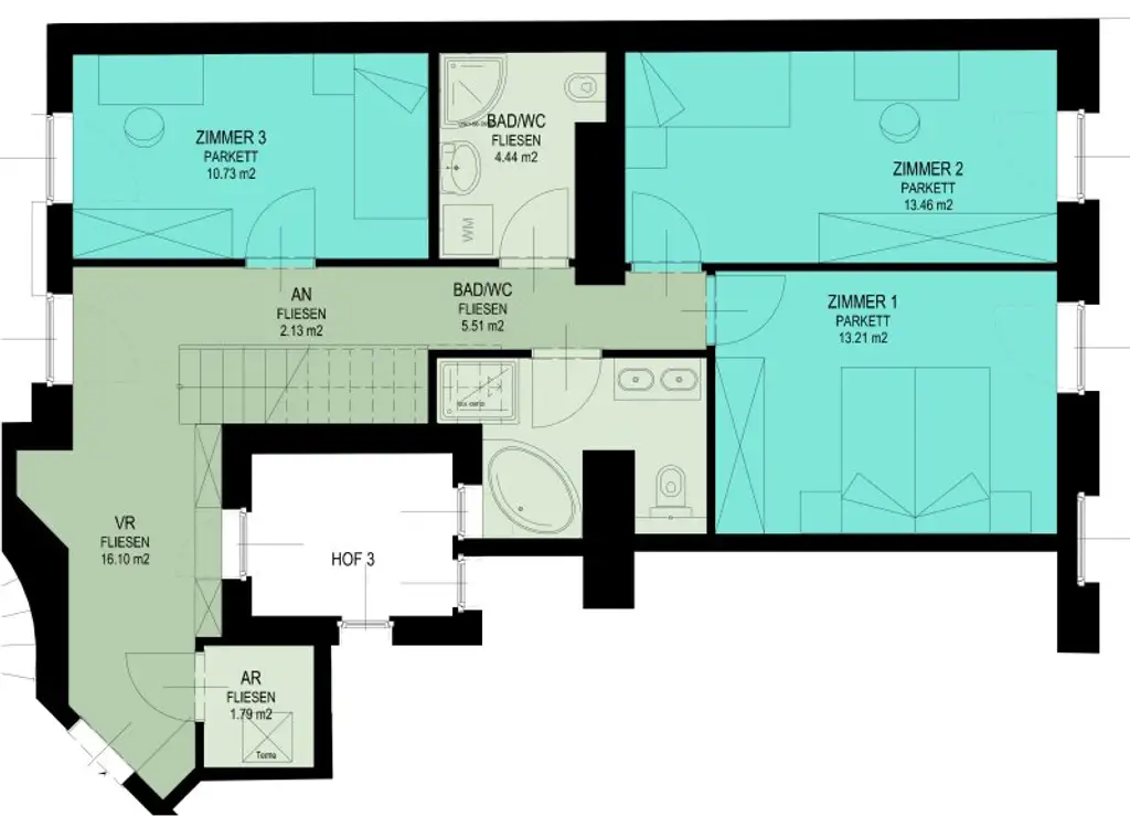
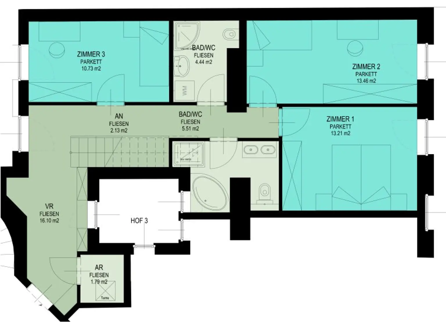
Raumaufteilung

_4. Obergeschoss_

* Vorraum: 18,23 m²
* Zimmer 1: 13,21 m²
* Zimmer 2: 13,46 m²
* Zimmer 3: 10,73 m²
* Bad 1: 4,44 m²
* Bad 2: 5,51 m²
* Abstellraum 1: 1,79 m²

_Dachgeschoss_

* Wohnküche: 46,00 m²
* Terrasse: 8,65 m²
* Abstellraum 2: 2,92 m²

_Dachterrasse_

* Dachterrasse: 30,50 m²

 

Ausstattung & Raumkonzept

Der offene Wohn- und Küchenbereich mit Kamin bildet das Herzstück der Wohnung und geht direkt in die erste Terrasse über. Besonders schön ist die Dachterrasse mit weitem Blick über Wien – mit Sicht auf den Stephansdom, das Riesenrad und den Kahlenberg. Das Layout bietet drei Schlafzimmer mit neu- und hochwertigem Echtholz-Nussparkett. Die beiden durchgesteckten Geschosse bieten von beiden Seiten Licht und die Möglichkeit zur Querlüftung mit Fenstern die zur Straßenseite als auch zum grünen und gemütlichen Innenhof ausgerichtet sind. Die Wohnung verfügt über zwei voll ausgestattete Badezimmer. Das erste Badezimmer verfügt über eine Dusche, ein WC und einen Waschmaschinenanschluss inkl. Wachmaschine. Das zweite, großzügige Badezimmer bietet eine Badewanne, eine Dusche und ein WC. Beide Bäder sind mit hochwertiger Ausstattung von Villeroy & Boch, Hansgrohe sowie Feinsteinzeug-Fliesen ausgeführt. Das Vorzimmer verfügt über eine Video-Gegensprechanlage.

 

Die Highlights

* Sonnig & hell: Alle Fenster nach SO oder NW ausgerichtet
* Durchgestecktes Penthouse: sorgt für ein angenehmes und ausgewogenes Raumklima
* Klimatisierung: Vorhandene Anlage für heiße Sommertage
* Terrasse: als Fortsetzung des Wohn-Essbereichs zum ruhigen, grünen Innenhof
* Dachterrasse: mit direktem Weitblick auf den Stephansdom, das Riesenrad und den Kahlenberg
* U1 direkt vor der Tür: In nur 4 Stationen am Stephansplatz
* Freizeit im Grünen: Prater und Donauinsel fußläufig erreichbar
* Top-Infrastruktur: Lückenlose Nahversorgung im Trend-Viertel

 

Lage:

Die Anbindung ist ideal: Mit der U1, der Linie 12 und dem Bus 11A vor der Haustüre erreichen Sie den Stephansplatz in nur vier Stationen und die UNO-City in zwei. Zahlreiche Nahversorger in der direkten Nachbarschaft sowie der nahe Vorgartenmarkt ermöglichen es, alles für den täglichen Bedarf bequem zu Fuß zu erledigen. Durch die Lage zwischen Prater und Donauinsel bietet das Viertel zudem viel Raum für Erholung im Grünen.

 

Verkehrsanbindung:

* U-Bahn-Station U1 Vorgartenstraße
* Buslinie 11A
* Straßenbahnlinie 12

 

Hat diese Immobilie Ihr Interesse geweckt? Ich freue mich auf Ihre Nachricht! Gerne zeige ich Ihnen das Objekt persönlich und nehme mir Zeit für Ihre Fragen und Vorhaben vor Ort.

_Bitte haben Sie Verständnis, dass lediglich Anfragen mit vollständigen Kontaktdaten (Name, Telefonnummer, E-Mail-Adresse) bearbeitet werden können. Die Informationen beruhen auf Angaben des Abgebers; für die Richtigkeit übernehmen wir keine Gewähr. Änderungen vorbehalten._

 

Katerina Ermishkina

Tel: +43 664 8924169 [tel:+436648924169]

info@crownconsulting.at
 

Hinweis gemäß Energieausweisvorlagegesetz: Ein Energieausweis wurde vom Eigentümer bzw. Verkäufer, nach unserer Aufklärung über die generell geltende Vorlagepflicht, sowie Aufforderung zu seiner Erstellung noch nicht vorgelegt. Daher gilt zumindest eine dem Alter und der Art des Gebäudes entsprechende Gesamtenergieeffizienz als vereinbart. Wir übernehmen keinerlei Gewähr oder Haftung für die tatsächliche Energieeffizienz der angebotenen Immobilie.

Der Vermittler ist als Doppelmakler tätig.

Infrastruktur / Entfernungen

Gesundheit
Arzt <500m
Apotheke <500m
Klinik <500m
Krankenhaus <2.000m

Kinder & Schulen
Schule <500m
Kindergarten <500m
Universität <1.000m
Höhere Schule <2.500m

Nahversorgung
Supermarkt <500m
Bäckerei <500m
Einkaufszentrum <2.500m

Sonstige
Geldautomat <500m
Bank <500m
Post <1.000m
Polizei <1.000m

Verkehr
Bus <500m
U-Bahn <500m
Straßenbahn <500m
Bahnhof <500m
Autobahnanschluss <1.500m

Angaben Entfernung Luftlinie / Quelle: OpenStreetMap
Beschreibung weiterlesen

Lage und Verkehrsanbindung

Mexikoplatz, Vorgartenstraße, nähe UNO-City und Prater.

Uno City

Grundrisse

Lageplan

1020 Wien | Wien 2., Leopoldstadt

Lade...
Ekaterina Ermishkina

Ekaterina Ermishkina

Crown Consulting GmbH

Lade...

Fotomix

Bild 1 Bild 2 Bild 3 Bild 4 Bild 5 Bild 6 Bild 7 Bild 8 Bild 9 Bild 10 Bild 11 Bild 12 Bild 13 Bild 14 Bild 15 Bild 16 Bild 17 Bild 18 Bild 19 Bild 20 Bild 21 Bild 22 Bild 23 Bild 24 Bild 25 Bild 26 Bild 27 Bild 28 Bild 29 Bild 30 Bild 31 Bild 32 Bild 33 Bild 34 Bild 35