NEU - Gefördertes Genossenschaftsreihenhaus! Miete mit Kaufrecht! Erstbezug! RH 2!

Haus zur Miete in 2842 Edlitz - Gesamtmiete: 1.127,43 € / Objektnummer: 268
Ausstattung: Parkplatz Außenparkplatz Loggia Terrasse
Titelbild
Übersichtsplan
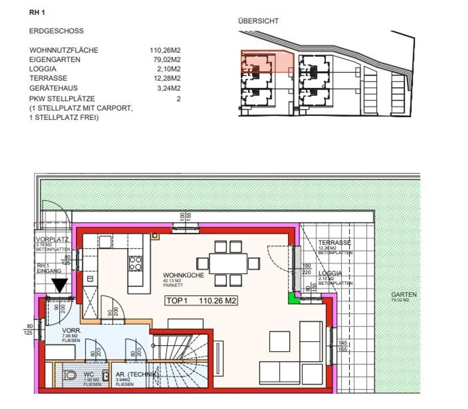
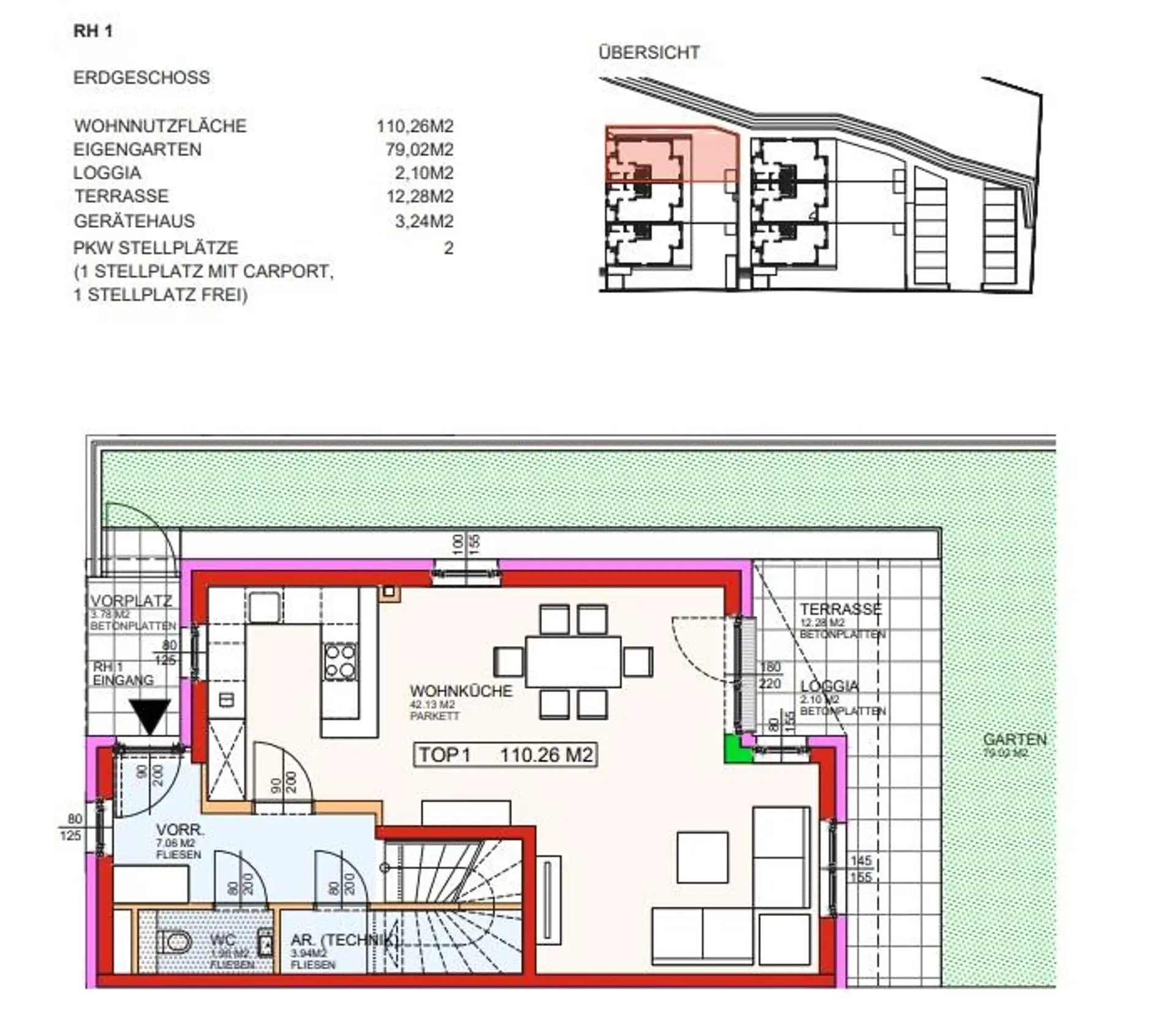
Reihenhaus RH-EG
Reihenhaus RH-OG

Preisinformationen

Gesamtmiete:
1.127,43 € / Monat
Umsatzsteuer:
102,49 €

Fakten

Objektnummer:
268
Objekttyp:
Haus
Terrasse:
1
Loggia:
1
Wohnfläche:
110,26 m²
Zimmer:
4
Badezimmer:
2
Toilette:
2
Zustand:
Erstbezug
Verfügbarkeit:
Verfügbar

Beschreibung

Gefördertes Genossenschaftsreihenhaus in Edlitz!

Reihenhaus 2:
> Garten - ca. 79 m²
> Terrasse und Loggia
> Gesamtmiete inkl. Miete + Nebenkosten
> voraussichtliche Miete PKW-Autoabstellplatz € 35,00
> Finanzierungsbeitrag: € 73.924,39

In Edlitz wird eine Wohnhausanlage mit 24 Wohnungen und 6 Reihenhäuser errichtet.

Provisionsfrei für den Mieter!

Die Wohnhausanlage wird vom Land Niederösterreich gefördert!
Die Mieter müssen hier ihren Hauptwohnsitz begründen und den Förderkriterien entsprechen!

Miete mit Kaufrecht:
Mit der Bezahlung des Finanzierungsbeitrages erwerben Sie die Option zum Kauf der gemieteten Wohneinheit!

Hierzu einige Details:
> jede Erdgeschosswohnung mit Terrasse und Eigengarten
> jedes Reihenhaus mit Terrasse und Eigengarten
> alle anderen Wohnungen verfügen über einen Balkon
> jede Wohneinheit verfügt über einen Autoabstellplatz mit Carport
> jedem Reihenhaus wird im Freien ein zusätzlicher Autoabstellplatz zugeordnet
> auf Wunsch kann der Mieter auf seinem Autoabstellplatz mit Carport eine Ladesteckdose für Elektroautos auf seine Kosten ausstatten lassen
> die Mehrfamilienwohnhäuser sind barrierefrei und haben einen Personenaufzug

In der Nähe:
> Stadtgrenze von Wien - ca. 40 Minuten
> Nähe Wr. Neustadt
> Bahnhof
> Schule, Kindergarten, Nahversorger, Ärzte, etc.
> Naturerholungsgebiet mit Feldwegen, perfekt für Spaziergänge an der frischen Luft


Die Angaben zum Objekt basieren auf uns zur Verfügung gestellten Informationen.
Eine Haftung unsererseits ist hierfür ausgeschlossen. Detailfragen werden im Zuge von Besichtigungen besprochen, geklärt oder nachgereicht.

Wir bitten um Verständnis, dass wir aufgrund der Nachweispflicht gegenüber dem Eigentümer, nur Anfragen mit vollständigen Kontaktdaten (Name, Anschrift, Tel.-Nr., E-Mail) beantworten können.

Wir informieren Sie darüber, dass wir bei diesem Objekt eine Doppelmaklertätigkeit ausüben. (§ 5 Abs. 3 MaklerG)

Dieses Angebot ist unverbindlich und einer Zwischenverwertung vorbehalten.
Angaben gemäß gesetzlichem Erfordernis:
Miete 1024,94 zzgl 10% USt.
Umsatzsteuer 102,49
---------------------------------
Gesamtbetrag 1127,43
---------------------------------
Heizwärmebedarf: 24.8 kWh/(m²a)
Klasse Heizwärmebedarf: A
Faktor Gesamtenergieeffizienz: 0.55
Klasse Faktor Gesamtenergieeffizienz: A+
Beschreibung weiterlesen

Energieeffizienz

HWB:
24,8 kWh/(m²*a)
HWB Klasse:
A
fGEE:
0,55
fGEE Klasse:
A+
Energieausweisart:
Energiebedarfs-ausweis
Michael Wukovits

Michael Wukovits

RE/MAX Harmony

Lade...

Fotomix

Titelbild Übersichtsplan Reihenhaus RH-EG Reihenhaus RH-OG