NEU - GENERALSANIERTE BÜROFLÄCHE IM DACHGESCHOSS - Historisches Gebäude am Stadtpark

Immobilie zur Miete in 1030 Wien / Objektnummer: 1972
Ausstattung: Boden Fahrstuhl Teeküche Kabel/Satelliten-TV Klimaanlage Fahrradraum
Begrünter Innenhof
Visualisierung
Visualisierung
Visualisierung
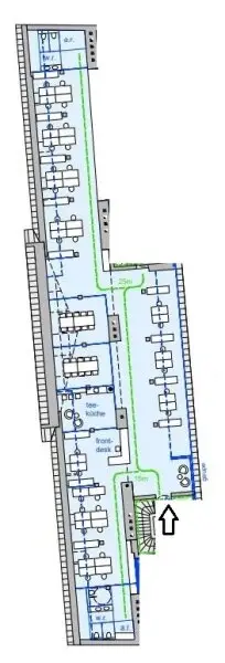
Grundriss Gesamtplan DG-Ausbau
Grundriss Büro A

Preisinformationen

Gesamtmiete (exkl. USt.):
10.532,50 € / Monat
Betriebskosten netto:
957,50 € / Monat
Umsatzsteuer:
2.106,50 €
Miete/m² netto:
25,00 €
Kaution:
37.920,00 €
Vermittlungsprovision:
Ja
Provision:
37.917,00 € inkl. 20% USt.

Fakten

Objektnummer:
1972
Nutzfläche:
383 m²
Bürofläche:
383 m²
Toilette:
2
Baujahr:
1808
Altbau:
Ja
Zustand:
Neuwertig
Verfügbarkeit:
Verfügbar

Beschreibung

BÜRO | MIETE | 1030 | 383m² | Generalsanierter DG-Ausbau | Hauptmietzins € 25,00/m² netto | Betriebskosten 2,50/m² netto | Teeküche | 2 Toiletten | Nähe Stadtpark

In hervorragender Lage direkt am Stadtpark – eingebettet in historischem Ambiente – steht ab Jänner 2027 diese generalsanierte Bürofläche mit einer Gesamtfläche von 383m² zur Vermietung.
Eine wahrlich repräsentatives Gebäude mit einzigartigem Charme!

Die Sanierung umfasst vier klimatisierte Büroeinheiten ab 295m², durch Zusammenlegung sind bis zu 1.350m² erzielbar.
Diese sind hofseitig (begrünter Innenhof) und straßenseitige (Blick über den Stadtpark) gelegen.
Die Raumgestaltung wird den individuellen Bedürfnissen des Mieter angepasst.
Eine Teeküche und zwei Toiletten komplettieren dieses außergewöhnliche Office-Paket.

Parken
Tripple-Parkhebeanlagen mit Drehscheibe ermögliche Parken in der hauseigenen Garage.
Maximale Fahrzeughöhe 1,50m | Kosten: € 157,50 + 20% Ust.

Ausstattung

* Luftwärmepumpe
* Haus-Klimaanlag
* Stellplätze in Hauseigener Garage (Tripple Parkhebeanlagen) verfügbar
* Berücksichtigung von Mieterwünschen bei Raumgestaltung
* Fenster mit 3-fach Isolierverglasung
* Sonnenschutz innen und außen
* Büroflächen Teppichfliesen 60/60
* Hohlraumböden
* Optional Lagerflächen im EG
* Sicherheitstüren RC3 (WK3)
* Teeküche
* Getrennte WC-Einheiten

Hinweis gemäß Energieausweisvorlagegesetz:
Ein Energieausweis wurde vom Eigentümer bzw. Vermieter, nach unserer Aufklärung über die ab 01.12.2012 geltende generelle Vorlagepflicht, sowie Aufforderung zu seiner Erstellung noch nicht vorgelegt.
Daher gilt zumindest eine dem Alter und der Art des Gebäudes entsprechende Gesamtenergieeffizienz als vereinbart. Die ViennaEstate Makler GmbH übernimmt keinerlei Gewähr oder Haftung für die tatsächliche Energieeffizienz der angebotenen Immobilie.

Für einen Besichtigungstermin oder Fragen stehe ich Ihnen gern zur Verfügung.

Wir möchten darauf hinweisen, dass zwischen ViennaEstate Makler GmbH und dem Auftraggeber ein wirtschaftliches Naheverhältnis besteht. Die ViennaEstate Makler GmbH ist als Doppelmakler tätig.

Infrastruktur / Entfernungen

Gesundheit
Arzt <500m
Apotheke <500m
Klinik <500m
Krankenhaus <500m

Kinder & Schulen
Schule <500m
Kindergarten <500m
Universität <500m
Höhere Schule <1.000m

Nahversorgung
Supermarkt <500m
Bäckerei <500m
Einkaufszentrum <1.000m

Sonstige
Geldautomat <500m
Bank <500m
Post <500m
Polizei <500m

Verkehr
Bus <500m
U-Bahn <500m
Straßenbahn <500m
Bahnhof <500m
Autobahnanschluss <2.500m

Angaben Entfernung Luftlinie / Quelle: OpenStreetMap
Beschreibung weiterlesen

Lage und Verkehrsanbindung

Die Büroeinheit befindet sich in unmittelbarer Nähe zum Stadtpark .
Eine exzellente öffentliche Erreichbarkeit ist durch die beiden U-Bahn Stationen „Wien Mitte“ (The Mall) und der Station „Stadtpark“ gegeben.

Verkehrsanbindung
- Wien-Mitte
- U3, U4
- diverse Schnellbahnen und Buslinien
- direkte Verbindung zum Flughafen

Stadtpark

Energieeffizienz

HWB:
154,2 kWh/(m²*a)
HWB Klasse:
E
fGEE:
1,83
fGEE Klasse:
D
Energieausweisart:
Energiebedarfs-ausweis
Gültig bis:
20.02.2023

Grundrisse

Lageplan

1030 Wien | Wien 3., Landstraße

Lade...
Markus Damej

Markus Damej

ViennaEstate Makler GmbH

Lade...

Fotomix

Begrünter Innenhof Visualisierung Visualisierung Visualisierung