NEU - Gepflegte Lagerhalle nähe St. Pölten zur Miete

Lager zur Miete in 3123 Obritzberg / Objektnummer: 5876
Ausstattung: Barrierefrei Bad

Preisinformationen

Gesamtmiete (exkl. USt.):
1.162,44 € / Monat
Betriebskosten netto:
182,44 € / Monat
Umsatzsteuer:
232,49 €
Miete/m² netto:
3,97 €
Kaution:
3 Bruttomonatsmieten
Vermittlungsprovision:
Ja
Provision:
3 Bruttomonatsmieten zzgl. 20% USt.

Fakten

Objektnummer:
5876
Objekttyp:
Lager
Nutzfläche:
247 m²
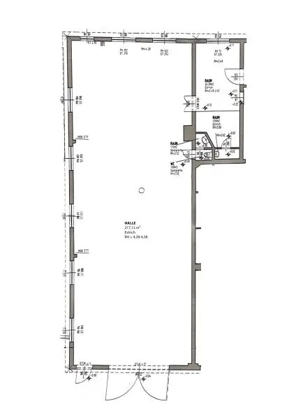
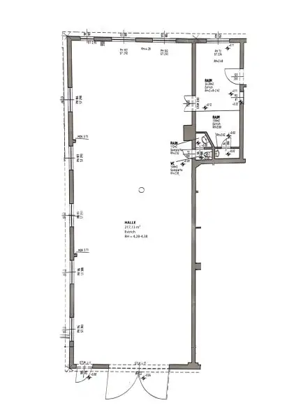
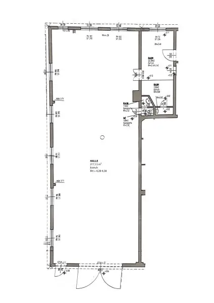
Bürofläche:
30 m²
Lagerfläche:
217 m²
Zimmer:
2
Neubau:
Ja
Zustand:
Gepflegt
Verfügbarkeit:
Verfügbar
Verfügbar ab:
Sofort

Beschreibung

Zur Vermietung steht eine vielseitig nutzbare Lagerhalle in verkehrsgünstiger Lage nahe St. Pölten.

Die Immobilie überzeugt durch ihre großzügige Raumhöhe von über 4 Metern sowie durch die optimale Anbindung – ideal für Lager oder Logistik. Die Zufahrt erfolgt über ein großes Einfahrtstor. Ein rund 24 m² großer Vorplatz vor der Halle bietet ausreichend Raum für Be- und Entladetätigkeiten.

Direkt angeschlossen stehen ein beheizbares Büro sowie Sanitäranlagen zur Verfügung, wodurch sich der Standort auch hervorragend als kombinierter Arbeits- und Lagerplatz eignet.

Die Elektrik befindet sich auf dem neusten Stand, Starkstrom ist verfügbar.

Eckdaten:

* Lagerfläche: ca. 217 m²
* Raumhöhe: ca. 4,3 m
* Einfahrtstor: ca. 4,1 m Höhe
* Büro: ca. 30 m² (beheizbar, optional als weitere Lagerfläche nutzbar)

Mietkonditionen:

* Gesamtmiete: € 980,00 monatlich zzgl. Betriebskosten und USt.
* Betriebskosten belaufen sich auf ca. € 219,00 pro Monat
* Kosten für Strom, Wasser und Wärme werden verbrauchsabhängig verrechnet
* Verfügbarkeit: ab sofort bzw. kurzfristig bezugsbereit
* Mietdauer: befristet auf 5 Jahre

Fazit: Funktionale und sofort verfügbare Lagerhalle mit durchdachter Ausstattung und hervorragender Erreichbarkeit – ideal für Unternehmen oder Privatpersonen mit Platzbedarf.

 

Kaution: 3 Bruttomonatsmieten
Provision: 3 Bruttomonatsmieten zzgl. MWSt.

Hinweis gemäß Energieausweisvorlagegesetz: Ein Energieausweis wurde vom Eigentümer bzw. Verkäufer, nach unserer Aufklärung über die generell geltende Vorlagepflicht, sowie Aufforderung zu seiner Erstellung noch nicht vorgelegt. Daher gilt zumindest eine dem Alter und der Art des Gebäudes entsprechende Gesamtenergieeffizienz als vereinbart. Wir übernehmen keinerlei Gewähr oder Haftung für die tatsächliche Energieeffizienz der angebotenen Immobilie.

Wir weisen darauf hin, dass zwischen dem Vermittler und dem zu vermittelnden Dritten ein familiäres oder wirtschaftliches Naheverhältnis besteht.

Der Vermittler ist als Doppelmakler tätig.

Infrastruktur / Entfernungen

Gesundheit
Arzt <3.500m
Apotheke <4.000m
Klinik <3.000m
Krankenhaus <5.000m

Kinder & Schulen
Schule <2.750m
Kindergarten <2.750m
Universität <5.000m
Höhere Schule <5.750m

Nahversorgung
Supermarkt <4.000m
Bäckerei <4.000m
Einkaufszentrum <4.000m

Sonstige
Bank <3.750m
Geldautomat <3.750m
Post <3.750m
Polizei <4.000m

Verkehr
Bus <250m
Autobahnanschluss <4.250m
Bahnhof <3.000m

Angaben Entfernung Luftlinie / Quelle: OpenStreetMap
Beschreibung weiterlesen

Lage und Verkehrsanbindung

ca. 5 Autominuten nach St. Pölten
ca. 5 Autominuten nach Herzogenburg
ca. 6 Autominuten zur S33

St. Pölten, Herzogenburg

Grundriss

Lageplan

3123 Obritzberg | Sankt Pölten (Land)

Lade...
Magdalena Kaiblinger

Magdalena Kaiblinger
Immobilienvermittlung

IMMOCENTRAL Immobilientreuhand GmbH

Lade...

Fotomix

Bild 1 Lagerhalle Lagerhalle