NEU - Gepflegtes Geschäftslokal 8047, Ragnitz

Einzelhandel zum Kauf in 8047 Graz-Ragnitz - Kaufpreis: 299.000 € / Objektnummer: 7786
Ausstattung: Garage Parkplatz Zentralheizung
Eingangsbereich
Empfangsbereich
Empfangsbereich
Salon
Salon
Salon
Kosmetik-Raum
Nagelstudio-Raum
Fußpflege-Raum
Ansicht
Garage Eingang
Garagenplätze
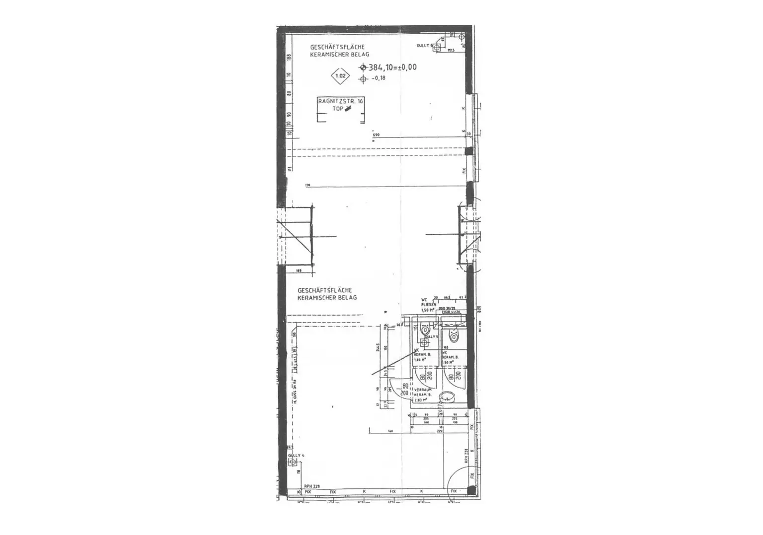
Grundriss

Preisinformationen

Kaufpreis:
299.000 €
Betriebskosten netto:
797,97 € / Monat
Heizkosten netto:
141,32 €
Provision:
3.00 %

Fakten

Objektnummer:
7786
Objekttyp:
Einzelhandel
Nutzfläche:
122,97 m²
Baujahr:
ca. 2000
Verfügbarkeit:
Verfügbar

Beschreibung

Geschäftslokal in Top-Lage – Ragnitzstraße, 8047 Graz!

Hier geht’s zum Objektfilm

Dieses attraktive Erdgeschosslokal aus dem Baujahr 2000 bietet eine hervorragende Gelegenheit für Unternehmer oder Investoren.
Derzeit wird das Objekt als Friseursalon mit Kosmetik- und Fußpflegeangebot genutzt und verfügt über eine Nutzfläche von ca. 123 m².

Hier geht’s zur Online-Broschüre

Die Beheizung erfolgt mittels Fernwärme.

Die Lage in 8047 Graz – Ragnitz überzeugt durch beste Infrastruktur, gute Sichtbarkeit und eine hervorragende Verkehrsanbindung. Einkaufsmöglichkeiten, Gastronomie und Dienstleistungen befinden sich in unmittelbarer Nähe, was den Standort besonders attraktiv macht.

Besondere Vorteile:
• Direkter Zugang im Erdgeschoss
• Attraktive, flexibel nutzbare Fläche
• Klimaanlage
• Gute Anbindung an öffentliche Verkehrsmittel
• 4 Tiefgaragenparkplätze
• Kellerersatzraum
• Kundenparkplatz

Dieses Objekt eignet sich ideal für einen Beauty-Salon, eine Praxis, ein Büro oder andere gewerbliche Nutzungen. Die Kombination aus Top-Lage, großzügiger Fläche und Parkmöglichkeiten macht es zu einer lohnenden Investition.

Für weitere Informationen bzw. für die Vereinbarung eines Besichtigungstermins stehe ich Ihnen gerne zur Verfügung.

Bitte beachten Sie, dass wir aufgrund unserer Nachweispflicht dem Abgeber gegenüber nur Anfragen beantworten können, die Ihren Namen, die vollständige Anschrift und eine Telefonnummer enthalten.
Angaben gemäß gesetzlichem Erfordernis:
Heizwärmebedarf: 84.8 kWh/(m²a)
Klasse Heizwärmebedarf: C
Faktor Gesamtenergieeffizienz: 1.45
Klasse Faktor Gesamtenergieeffizienz: C
Beschreibung weiterlesen

Energieeffizienz

HWB:
84,8 kWh/(m²*a)
HWB Klasse:
C
fGEE:
1,45
fGEE Klasse:
C
Energieausweisart:
Energiebedarfs-ausweis

Lageplan

8047 Graz-Ragnitz | Graz (Stadt)

Lade...
Waltraud Grabner

Waltraud Grabner

RE/MAX Classic in Graz

Anrufen
Lade...

Fotomix

Eingangsbereich Empfangsbereich Empfangsbereich Salon Salon Salon Kosmetik-Raum Nagelstudio-Raum Fußpflege-Raum Ansicht Garage Eingang Garagenplätze Grundriss