NEU - Geräumige 3-Zimmer Wohnung in ruhiger Seitengasse und guter Raumaufteilung!

Wohnung zur Miete in 1100 Wien - Gesamtmiete: 1.598,73 € / Objektnummer: 1718/1747559
Ausstattung: Boden Fahrstuhl Wohnküche / offene Küche Bad Carport Parkplatz Fahrradraum Fernwärme Loggia

Preisinformationen

Gesamtmiete:
1.598,73 € / Monat
Betriebskosten netto:
305,39 € / Monat
Umsatzsteuer:
145,34 €
Kaution:
3 Bruttomonatsmieten
Provision:
Gemäß Erstauftraggeberprinzip bezahlt der Abgeber die Provision.

Fakten

Objektnummer:
1718/1747559
Objekttyp:
Wohnung
Loggia:
2
Wohnfläche:
85,8 m²
Loggia Fläche:
14 m²
Nutzfläche:
99,8 m²
Gesamtfläche:
99,8 m²
Zimmer:
3
Badezimmer:
1
Toilette:
1
Stockwerk:
1
Baujahr:
2009
Neubau:
Ja
Zustand:
Gepflegt
Verfügbarkeit:
Verfügbar
Verfügbar ab:
ab sofort

Beschreibung

Attraktive Mietwohnungen in ruhiger Lage – Humboldtgasse 38

In begehrter und angenehm ruhiger Wohnlage in der Humboldtgasse 38 erwartet Sie diese gepflegte Wohnung in einem modernen Neubau aus dem Jahr 1976. Das Haus präsentiert sich in sehr gutem Zustand und überzeugt durch seine solide Bauweise sowie eine nachhaltige Energieeffizienz – der ausgezeichnete Energieausweis der Klasse B spricht für niedrige Betriebskosten und zeitgemäßen Wohnkomfort.

Die Wohnung selbst besticht durch eine durchdachte und gut nutzbare Raumaufteilung, die sowohl Singles, Paare als auch kleine Familien anspricht. Helle, freundliche Räume schaffen eine angenehme Wohnatmosphäre und bieten vielfältige Gestaltungsmöglichkeiten.

Ausstattungsmerkmale im Überblick:

*
Neubau in gepflegtem Gesamtzustand

*
guter Energieausweis – Klasse C

*
Dreifach verglaste Fenster für optimale Wärme- und Schalldämmung

*
Außenliegende Jalousien für effektiven Sonnen- und Sichtschutz

*
Hochwertiger Echtholz-Parkettboden in den Wohnräumen

*
Voll ausgestattete Küche mit allen notwendigen Geräten

*
Fernwärme-Zentralheizung über Heizkörper

*
Lift im Haus – bequem und barrierearm erreichbar

*
Ruhige Lage in einer Seitengasse

Besonders hervorzuheben ist die ruhige Situierung in einer Seitengasse, die entspanntes Wohnen abseits vom Straßenlärm ermöglicht und dennoch eine gute Anbindung an die umliegende Infrastruktur bietet. Einkaufsmöglichkeiten, öffentliche Verkehrsmittel sowie diverse Freizeit- und Naherholungsangebote befinden sich in angenehmer Reichweite.

 

Öffentliche Verkehrsanbindung:

*
U-Bahn: Die U1-Station Keplerplatz ist in nur 2-3 Gehminuten erreichbar und bietet eine schnelle Verbindung ins Stadtzentrum. 

*
Straßenbahn: Die Linien O und 11 halten in unmittelbarer Nähe an der Station Laxenburger Straße/Gudrunstraße und ermöglichen eine komfortable Fortbewegung innerhalb der Stadt. 

Infrastruktur:

*
Einkaufsmöglichkeiten: Diverse Nahversorger, Drogerien und Restaurants befinden sich in fußläufiger Entfernung und decken den täglichen Bedarf ab. 

*
Bildungseinrichtungen: Kindergärten und eine Volksschule sind ebenfalls in der unmittelbaren Umgebung angesiedelt, was besonders für Familien von Vorteil ist. 

 

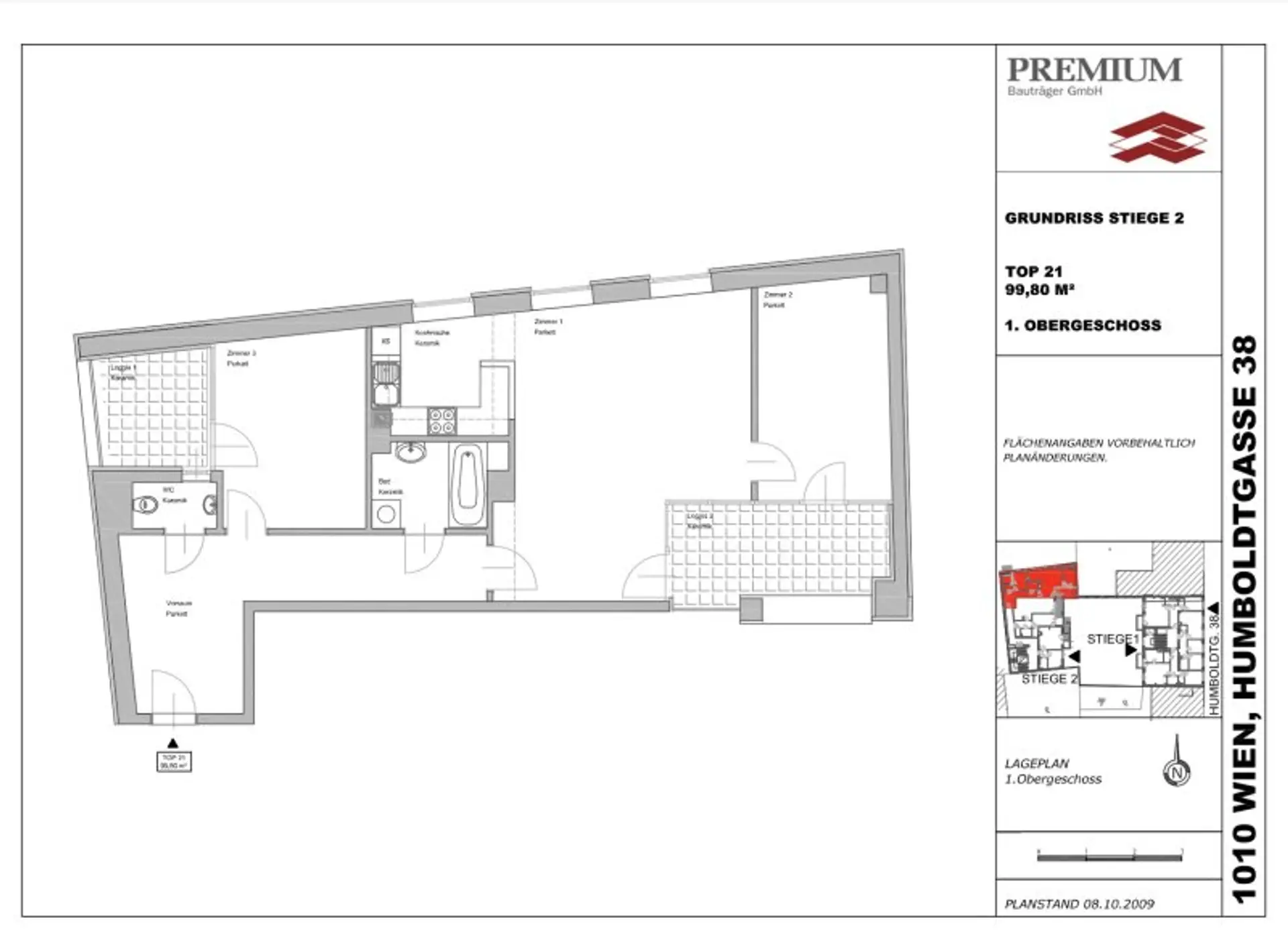
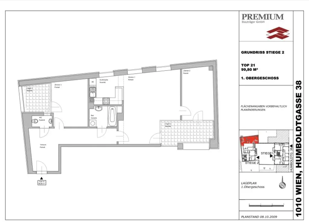
Wohnung TOP 2.21:

* Vorraum
* Badezimmer 
* getrenntes WC
* Wohnzimmer
* Schlafzimmer 1
* Schlafzimmer 2
* 2 Loggien

 

Mietpreis:

Der Mietpreis beläuft sich auf € 1.898,26 inkl. Betriebskosten, Heizkosten-und Warmwasserakonto und USt.

Kaution: 3 Bruttomonatsmiete

 

Bei dem angeführten Mietpreis handelt es sich um eine Warmmiete, somit sind sämtliche Energiekosten wie Warmwasser- und Heizkosten inkludiert. Stromkosten fallen noch gesondert an

 

Energieausweis

 

Der Heizwärmebedarf beträgt 48,5 kWh/m²a, welcher der Klasse C entspricht

 

Die Wohnung ist ab sofort verfügbar und eignet sich perfekt für jedermann.

Überzeugen Sie sich selbst von dieser attraktiven Wohnmöglichkeit und vereinbaren Sie noch heute einen Besichtigungstermin.

Für Fragen bzw. Besichtigungen steht Ihnen Herr Nikola Todorovic, BSc sehr gerne unter 0676 77 60 784 oder unter nikola.todorovic@prime-immobilien.at zur Verfügung.

Wir weisen darauf hin, dass zwischen dem Vermittler und dem zu vermittelnden Dritten ein familiäres oder wirtschaftliches Naheverhältnis besteht.

Der Immobilienmakler erklärt, dass er – entgegen dem in der Immobilienwirtschaft üblichen Geschäftsgebrauch des Doppelmaklers – einseitig nur für den Vermieter tätig ist.

Infrastruktur / Entfernungen

Gesundheit
Arzt <500m
Apotheke <500m
Klinik <500m
Krankenhaus <2.000m

Kinder & Schulen
Schule <500m
Kindergarten <500m
Universität <1.000m
Höhere Schule <2.000m

Nahversorgung
Supermarkt <500m
Bäckerei <500m
Einkaufszentrum <500m

Sonstige
Geldautomat <500m
Bank <500m
Post <500m
Polizei <500m

Verkehr
Bus <500m
U-Bahn <500m
Straßenbahn <500m
Bahnhof <500m
Autobahnanschluss <2.000m

Angaben Entfernung Luftlinie / Quelle: OpenStreetMap
Beschreibung weiterlesen

Lage und Verkehrsanbindung

In der Nähe zur Liegenschaft befindet sich der Keplerplatz, Gudrunstraße, Laxenburger Straße, Humboldtpark.

Versorgung und Freizeit: Geschäfte für den täglichen Bedarf sind fußläufig in wenigen Gehminuten gut erreichbar (bspw. Billa, Hofer und Spar). Freizeitaktivitäts - Möglichkeiten und Restaurants befinden sich ebenfalls in unmittelbarer Nähe.

Öffentliche Verkehrsanbindung: Straßenbahnlinien: O und 11; U-Bahn: U1 Keplerplatz (2min); Bus: 14A, 66A, 7A

U1 Keplerplatz, Favoritenstraße, Hauptbahnhof, Helmut-Zilk-Park

Energieeffizienz

HWB:
48,5 kWh/(m²*a)
HWB Klasse:
C
fGEE:
1,03
fGEE Klasse:
C
Energieausweisart:
Energiebedarfs-ausweis

Grundriss

Lageplan

1100 Wien | Wien 10., Favoriten

Lade...
Nikola Todorovic

Nikola Todorovic

RIMMO Prime Vermittlungs GmbH

Lade...

Fotomix

Bild 1 Bild 2 Bild 3 Bild 4 Bild 5 Bild 6 Bild 7 Bild 8 Bild 9 Bild 10 Bild 11 Bild 12 Bild 13 Bild 14 Bild 15 Bild 16 Bild 17 Bild 18 Bild 19 Bild 20 Bild 21 Bild 22 Bild 23 Bild 24 Bild 25 Bild 26 Bild 27 Bild 28