NEU - GESAMTPAKET MIT ANLAGEPOTENTIAL! 4 Wohneinheiten und noch mehr!

Haus zum Kauf in 2563 Pottenstein - Kaufpreis: 799.000 € / Objektnummer: 2699/1778
Ausstattung: Zentralheizung
Ansicht Straßenseitig
Einfahrt
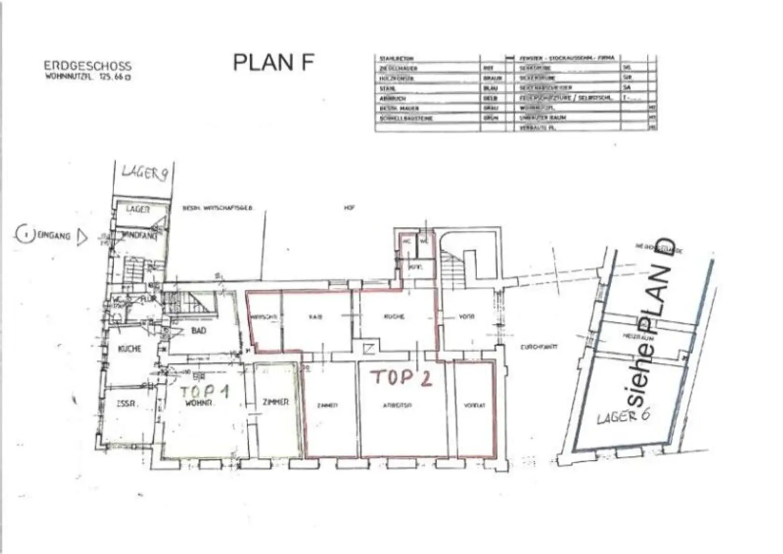
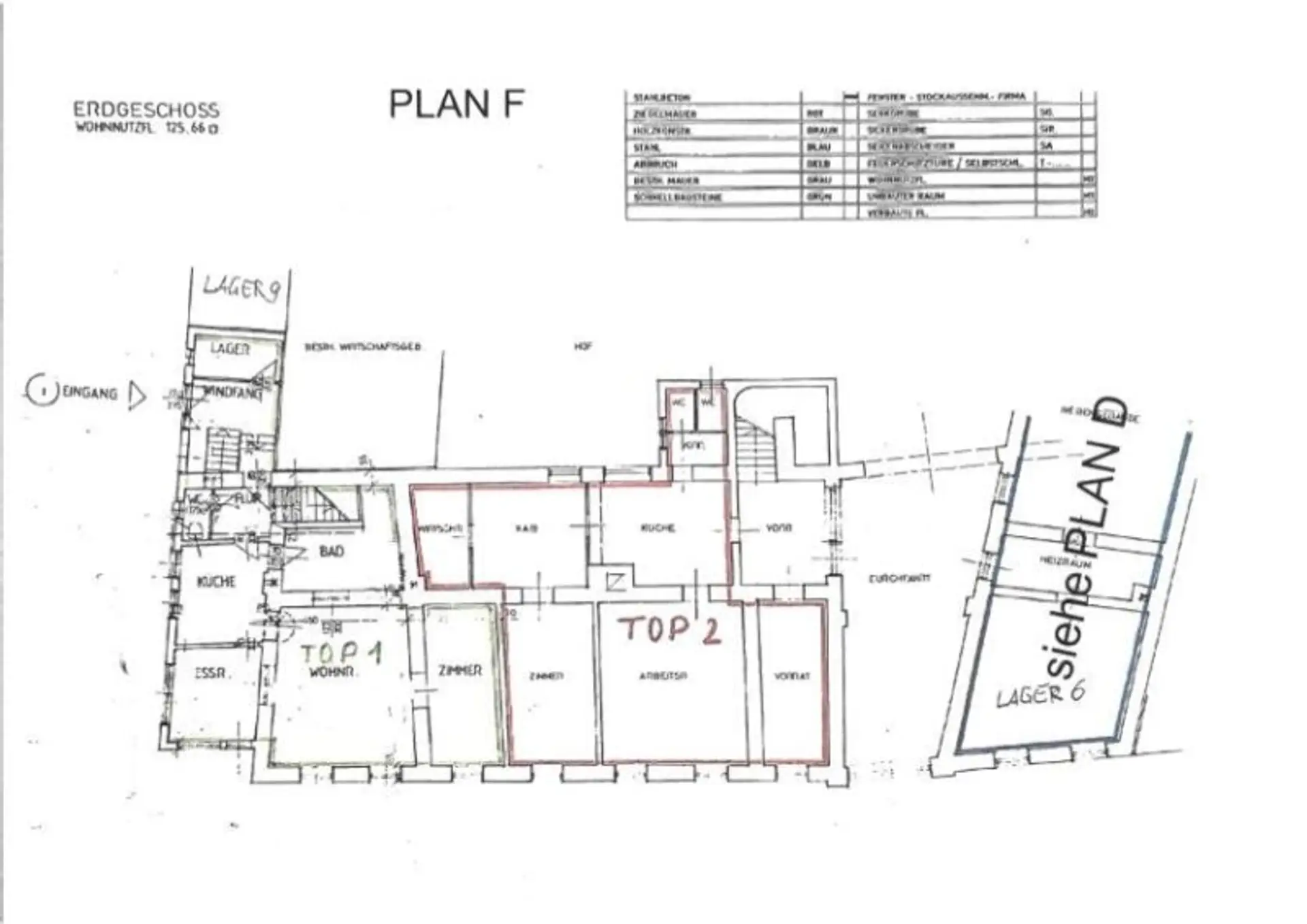
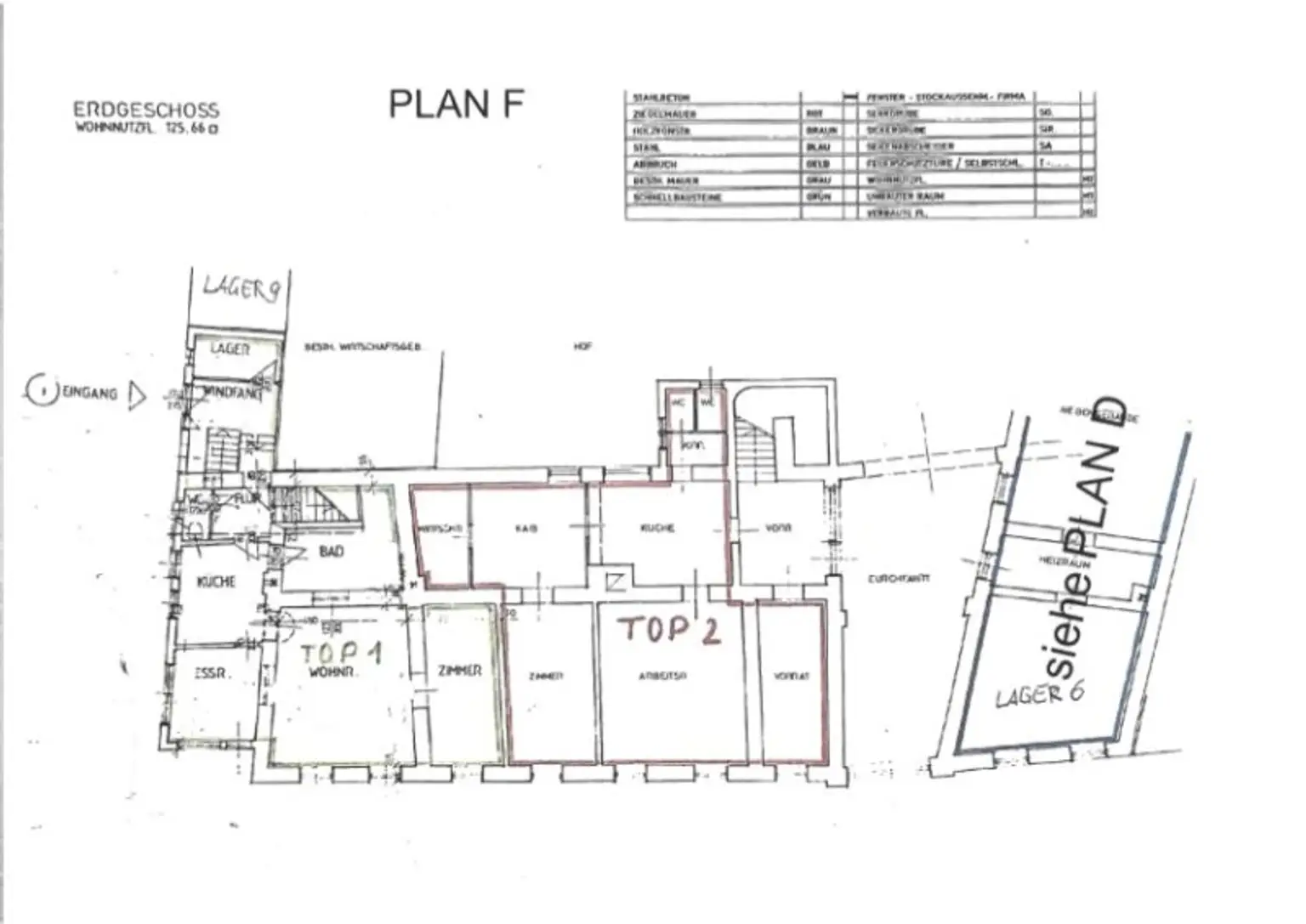
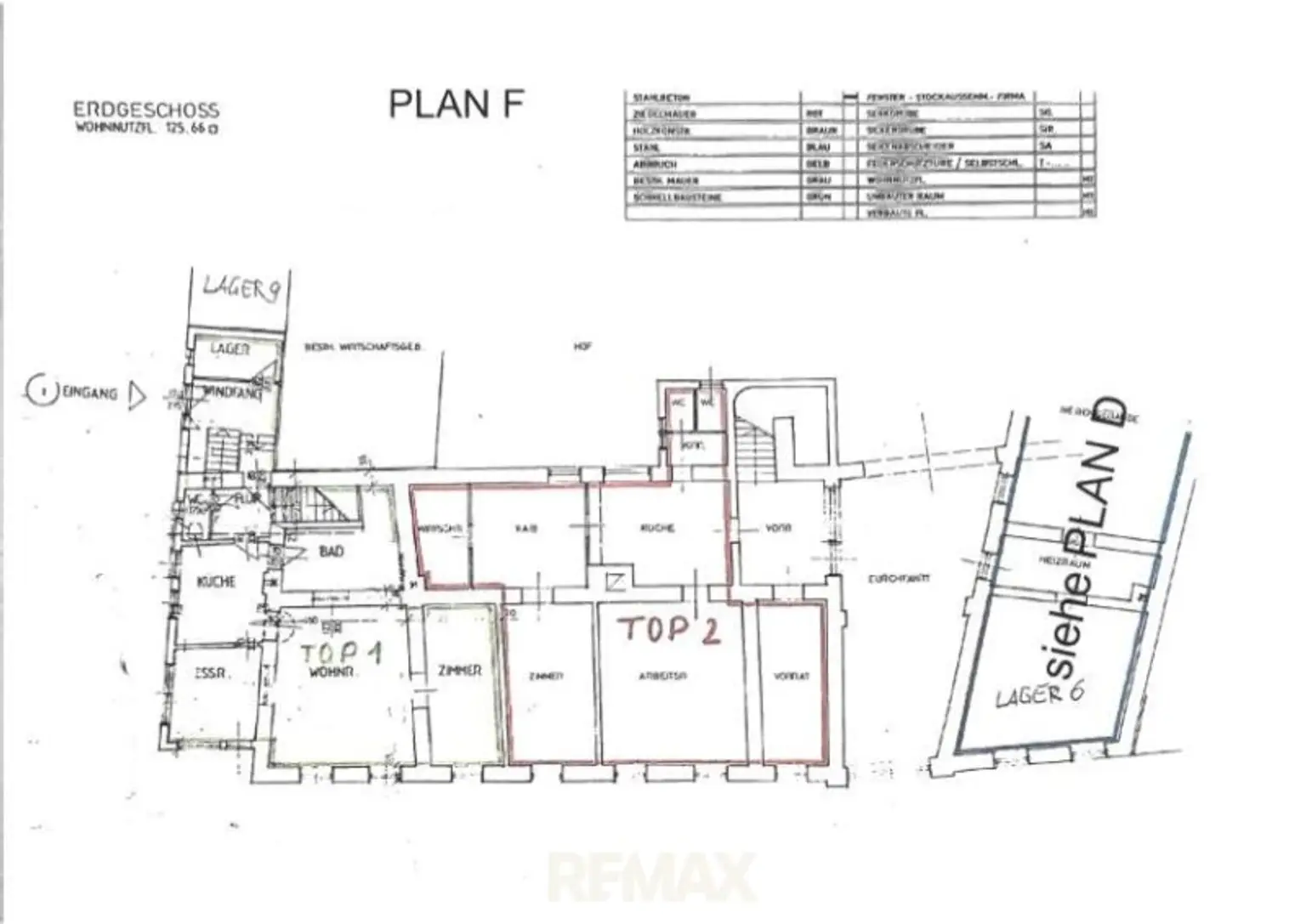
Grundriss Erdgeschoß
Grundriss Obergeschoß

Preisinformationen

Kaufpreis:
799.000 €
Vermittlungsprovision:
Ja
Provision:
3% des Kaufpreises zzgl. 20% USt.

Fakten

Objektnummer:
2699/1778
Objekttyp:
Haus
Wohnfläche:
473 m²
Grundstücksfläche:
1.083 m²
Zimmer:
14
Baujahr:
1985
Altbau:
Ja
Verfügbarkeit:
Verfügbar

Beschreibung

Sehr gerne präsentieren wir Ihnen dieses Objekt, in Pottenstein im Herzen des Triestingtals im Bezirk Baden!

FAST FACTS
- Wohnfläche: ca. 473m2
- Teilweise möbliert
- Großes Nutzungspotential
- Bus und Bahn zu Fuß erreichbar
- Schnelle Verbindung nach Wien
- Naturnahe ruhige Lage

KURZBESCHREIBUNG
Dieses historischen Gebäude, dass seinerzeit als Knappenhof bekannt war, beherbergt nun vier Eigentumswohnungen. Die Entstehung dieses Wohnhauses reicht bis in das 14. Jahrhundert zurück. Im späten 19. Jahrhundert wurde das Gebäude dann umgebaut und bekam somit sein heutiges Erscheinungsbild. 1991 wurde für diese vier Wohnungen Wohnungseigentum begründet, welches im Februar 2025 schließlich geändert und erneuert wurde.

LAGE UND UMGEBUNG
Die Marktgemeinde Pottenstein im Bezirk Baden liegt im Triestingtal im Wienerwald. Sie umfasst die Katastralgemeinden Fahrafeld und Pottenstein. Wie viele andere Gemeinden in der Region wurde auch Pottenstein lange Zeit durch eine ansässige Textilfabrik dominiert. Bis heute finden sich darum die Spuren des großen Industrie-Denkmals – genau wie zahlreiche weitere Sehenswürdigkeiten und Ausflugsziele. Schöne Wander- und Radstrecken führen durch den Wienerwald. Damit ist Pottenstein ideal für Familien-Auszeiten und Kurzurlaube.
Diese ruhige Wohngegend bietet den Bewohnern die perfekte Umgebung, um die Stille zu genießen, während gleichzeitig eine Vielzahl an kulturellen und freizeitlichen Aktivitätsmöglichkeiten in wenigen Autominuten erreichbar sind.

DAS HAUS
Von der Einfahrt des Gebäudes, welche in den Hof führt, erreichen Sie drei der vier Wohnungen. Top 2 im Erdgeschoß und Top 3 und 4 im Obergeschoß. Die Wohnung Top 1, welche vom Eigentümer derzeit bewohnt wird, hat an der gegenüberliegenden Seite ihren eigenen Eingang, zu dieser gehört auch als einzige ein eigener Garten mit ca. 94m² und eine Terrasse mit ca. 33m².
Im Innenhof können den einzelnen Wohneinheiten noch Stellplätze zugeteilt werden.
Die gesamte Liegenschaft, laut Grundbuch ca. 2153m² groß, besteht einerseits aus dem erwähnten Gebäude mit den Eigentumswohnungen und andererseits aus weiteren Nebengebäuden, die momentan noch als Garage, Lager und Werkstatt vom Eigentümer genutzt werden.
Beheizt wird das Objekt mittels einer kombinierten Zentralheizung aus Holz und Gas.
Jedes Wohnungseigentumsobjekt verfügt über separate Zähler, um die Abrechnung nach tatsächlichem Strom und Heizungsbedarf zu gewährleisten.
1980 wurden die Fenster erneuert, es wurden welche der Marke Internorm mit teilweise 3-facher Verglasung verbaut, und die Fassade wurde ca. 2010 gemacht.
Insgesamt ist das Anwesen in sechs eigenständige Wohnungseigentumsobjekte aufgeteilt, von denen nun einzelne Wohnungen, das ganze Wohnhaus oder die gesamte Liegenschaft verkauft wird.
Hier, zentral im Markt Pottenstein, finden Sie eine Vielzahl an Nutzungs- und Gestaltungsmöglichkeiten die Sie bei "herkömmlichen Objekten" vermissen werden!

Sämtliche Geschäfte des täglichen Bedarfs sind mühelos zu Fuß erreichbar, was die besondere Lage dieses Objekts nochmal hervorhebt.
So liegen z.B. der Dorfladen mit frischen Produkten aus der Region, Trafik, Billa, Arzt- und Tierarztpraxis, Kindergarten, Bahnhof Pottenstein u.v. mehr, innerhalb von nur wenigen Gehminuten.

Sie wollen das Haus live sehen? Dann vereinbaren Sie gleich einen Besichtigungstermin! Ich freue mich bereits, Ihnen Ihr potenzielles neues Zuhause präsentieren zu dürfen!

RECHTLICHES
In Entsprechung des FAGG (Fern- und Auswärtsgeschäfte-Gesetz) und des VRUG (Verbraucherrechte-Richtlinie-Umsetzungsgesetz) ist es uns leider nur mehr möglich, Termine nach Erhalt einer schriftlichen Anfrage mit vollständigen Kontaktdaten zu vereinbaren. Dies gilt ebenso für die Nennung relevanter Informationen wie z.B. der Lage. Sehr gerne sind wir auf diesem Wege bereit, die gewünschten Informationen und Unterlagen samt Adresse an Sie zu senden.

Unbedingt erforderlich sind:
+ Vor- und Nachname
+ aktuelle Meldeadresse (Hauptwohnsitz)
+ Telefonnummer
+ E-Mail Adresse
 
Hinweis zu Widerrufsrecht, Rücktrittsrecht bei Fern- und Auswärtsgeschäften: Gem. §11 FAGG (Fern- und Auswärtsgeschäftegesetz) kann der Interessent innerhalb von 14 Tagen vom Vertrag zurücktreten. Wünscht der Interessent mit der Kontaktaufnahme ein vorzeitiges Tätigwerden (Namhaftmachung und Adresse der Immobilie) des Immobilienbüros RE/MAX Welcome innerhalb der offenen Rücktrittsfrist, verzichtet er damit auf das Rücktrittsrecht vom Maklervertrag gem. §11 FAGG. Wir sind als Doppelmakler tätig.

Sämtliche Informationen wurden uns von den Eigentümern, sowie von externen Stellen zur Verfügung gestellt. Für die Richtigkeit der Daten, sowie für Irrtum, Satz- und Druckfehler kann unsererseits keine Haftung übernommen werden.
Der Vermittler ist als Doppelmakler tätig.

Infrastruktur / Entfernungen

Gesundheit
Arzt <2.000m
Apotheke <500m

Kinder & Schulen
Schule <500m
Kindergarten <500m

Nahversorgung
Supermarkt <1.000m
Bäckerei <2.000m
Einkaufszentrum <10.000m

Sonstige
Bank <500m
Geldautomat <2.000m
Post <500m
Polizei <2.000m

Verkehr
Bus <500m
Bahnhof <500m
Autobahnanschluss <9.000m

Angaben Entfernung Luftlinie / Quelle: OpenStreetMap
Beschreibung weiterlesen

Lage und Verkehrsanbindung

Zentrum

Energieeffizienz

HWB:
233,4 kWh/(m²*a)
HWB Klasse:
F
fGEE:
2,78
fGEE Klasse:
E
Energieausweisart:
Energiebedarfs-ausweis
Gültig bis:
19.08.2035

Grundrisse

Lageplan

2563 Pottenstein | Baden

Lade...
Karl Peterseil

Karl Peterseil

RE/MAX Welcome Hornyik Immobilienmakler GmbH&CoKG

Lade...

Fotomix

Ansicht Straßenseitig Einfahrt Grundriss Erdgeschoß Grundriss Obergeschoß