NEU - Geschäftsfläche EG 690 m2 Nähe U4

Einzelhandel zum Kauf in 1150 Wien - Kaufpreis: 1.990.000 € / Objektnummer: 1124/1224
Ausstattung: Barrierefrei

Preisinformationen

Kaufpreis:
1.990.000 €
Kaufpreis/m²
2.884,06 €
Betriebskosten netto:
1.489,32 € / Monat
Heizkosten netto:
348,74 €

Fakten

Objektnummer:
1124/1224
Objekttyp:
Einzelhandel
Grundstücksfläche:
690 m²
Verfügbarkeit:
Verfügbar
Verfügbar ab:
01.03.2025

Beschreibung

Zum Verkauf gelangt ein geräumiges Geschäftslokal mit einer Gesamtfläche von 690 m² (ohne Parkplätze), dass sich hervorragend für diverse Handels- oder Gewerbenutzungen eignet. Die Liegenschaft verfügt über eine aufrechte Betriebsanlagengenehmigung für den Betrieb eines Lebensmittelladens sowie den Handel mit weiteren Waren.

Kaufpreis:

Kaufpreis: EUR 1.990.000,00 netto
zzgl. 20 % USt (sofern umsatzsteuerpflichtig)

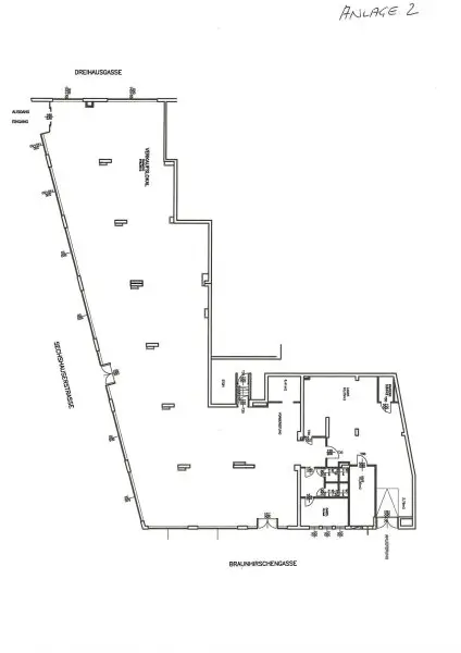
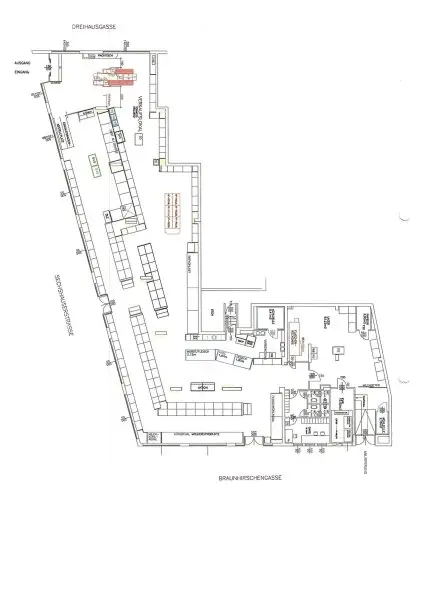
Lageplan und Nutzungsmöglichkeiten

Zum Objekt sind folgende Pläne verfügbar, die auf Anfrage eingesehen werden können:

* Schematischer Lageplan des Grundstücks
* Grundrisse des Lokals (sowohl im leeren Zustand als auch für Handelsnutzung eingerichtet)
* Übersicht der Etagen des gesamten Gebäudes

Genehmigungen:
Es liegt ein Bescheid des Magistrats vor, der den Handel mit Lebensmitteln sowie weiteren Waren genehmigt.

Lage

Das Geschäftslokal befindet sich in der Sechshauser Straße im 15. Bezirk, einer gut frequentierten Lage in Wien. Es bietet eine ausgezeichnete Verkehrsanbindung durch die nahe gelegene U-Bahn-Linie U4 sowie durch diverse Bus- und Straßenbahnlinien.

Die Umgebung ist geprägt von Wohnhäusern, Geschäften und Dienstleistern, wodurch eine stabile Kundenfrequenz gewährleistet ist. Zusätzlich stellt die Nähe zum Meidlinger Markt sowie zur Mariahilfer Straße einen wesentlichen Standortvorteil dar.

Zusätzliche Informationen

Alle relevanten Unterlagen (Grundbuchsauszug, Nutzwertgutachten, Bau- und Betriebsanlagengenehmigungen etc.) werden auf Anfrage zur Verfügung gestellt.
 

Besichtigungen

Besichtigungen sind nach vorheriger Terminvereinbarung jederzeit möglich.

Für weitere Informationen oder zur Vereinbarung eines Besichtigungstermins stehen wir Ihnen jederzeit gerne zur Verfügung.

Kontakt: Iaroslav Ilcenco& Olga Troll
Crown Consulting GmbH
Tel:+43 676 6095071 &  +43 6645445313 [tel:+436645445313] 
E-Mail: office@crownconsulting.at/ ii@crownconsulting.at

 

Infrastruktur / Entfernungen

Gesundheit
Arzt <500m
Apotheke <500m
Klinik <500m
Krankenhaus <2.000m

Kinder & Schulen
Schule <500m
Kindergarten <500m
Universität <500m
Höhere Schule <1.500m

Nahversorgung
Supermarkt <500m
Bäckerei <500m
Einkaufszentrum <500m

Sonstige
Geldautomat <500m
Bank <500m
Post <500m
Polizei <500m

Verkehr
Bus <500m
U-Bahn <500m
Straßenbahn <500m
Bahnhof <500m
Autobahnanschluss <3.500m

Angaben Entfernung Luftlinie / Quelle: OpenStreetMap
Beschreibung weiterlesen

Lage und Verkehrsanbindung

U4 Meidlinger Hauptstraße

Energieeffizienz

HWB:
29,25 kWh/(m²*a)
HWB Klasse:
D
fGEE:
1,33
fGEE Klasse:
C
Energieausweisart:
Energiebedarfs-ausweis

Grundrisse

Lageplan

1150 Wien | Wien 15., Rudolfsheim-Fünfhaus

Lade...
Iaroslav Ilcenco

Iaroslav Ilcenco

Crown Consulting GmbH

Lade...