NEU - Geschäftslokal - Büro- Praxis im Zentrum von Bad Häring

Einzelhandel zur Miete in 6323 Bad Häring / Objektnummer: 424
Ausstattung: Barrierefrei Parkplatz Außenparkplatz Fernwärme

Preisinformationen

Fakten

Objektnummer:
424
Objekttyp:
Einzelhandel
Nutzfläche:
426 m²
Altbau:
Ja
Zustand:
Modernisiert
Verfügbarkeit:
Verfügbar
Verfügbar ab:
ab sofort

Beschreibung

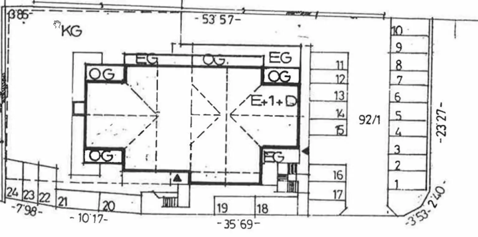
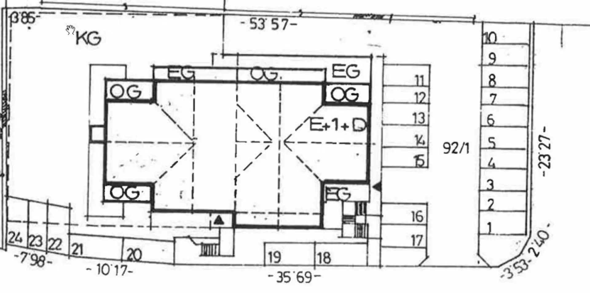
Zur Vermietung gelangt eine Geschäfts-Gewerbefläche mit ca. 426m² Fläche.

Das Lokal liegt im EG direkt im Zentrum von Bad Häring im EG eines Wohn-und Geschäftshauses.

Es besteht aus einer geräumigen Verkaufsfläche, sehr großem Lager, WC Anlage, Zufahrts- Ladetüre hinten, Kundeneingang mit automatischer Schiebetüre vorne und 15 PKW Abstellplätzen.

Anschlüsse für Küche, Wasser, Starkstrom, diverse Abflüsse sind vorhanden.

Das Objekt ist vollrenoviert und in einem hervorragendem Zustand. 

Die Nutzung ist sehr vielfältig. Ob als Lagerfläche, Geschäftslokal , Betrieb mit Verkaufsfläche, Büro, Arztpraxis oder einer größeren Praxisgemeinschaft im medizinischen oder sonsitgen Bereich sind der Fantasie keine Grenzen gesetzt.

Geheizt wird sauber und effizient über Fernwärme.

Die Autobahnauffahrt Wörgl ist in 7 Autominuten erreicht.

Hinweis: Der angegebene Mietpreis versteht sich netto zzgl. MwSt und BK

 

Hinweis gemäß Energieausweisvorlagegesetz: Ein Energieausweis wurde vom Eigentümer bzw. Verkäufer, nach unserer Aufklärung über die generell geltende Vorlagepflicht, sowie Aufforderung zu seiner Erstellung noch nicht vorgelegt. Daher gilt zumindest eine dem Alter und der Art des Gebäudes entsprechende Gesamtenergieeffizienz als vereinbart. Wir übernehmen keinerlei Gewähr oder Haftung für die tatsächliche Energieeffizienz der angebotenen Immobilie.

Infrastruktur / Entfernungen

Gesundheit
Arzt <500m
Apotheke <3.000m
Klinik <5.000m
Krankenhaus <7.500m

Kinder & Schulen
Schule <500m
Kindergarten <500m
Höhere Schule <5.500m
Universität <9.500m

Nahversorgung
Supermarkt <500m
Bäckerei <500m
Einkaufszentrum <4.500m

Sonstige
Bank <500m
Geldautomat <500m
Post <3.000m
Polizei <5.000m

Verkehr
Bus <500m
Autobahnanschluss <3.500m
Bahnhof <2.500m
Flughafen <6.500m

Angaben Entfernung Luftlinie / Quelle: OpenStreetMap
Beschreibung weiterlesen

Grundrisse

Lageplan

6323 Bad Häring | Kufstein

Lade...
Claudia und David Schmied

Claudia und David Schmied

partner4immo gmbh

Lade...

Fotomix

Bild 1 Bild 2 Bild 3 Bild 4 Bild 5 Bild 6 Bild 7 Bild 8 Bild 9 Bild 10 Bild 11 Bild 12 Bild 13 Bild 14 Bild 15 Bild 16