NEU - Geschäftslokal in TOP Lage bei Begegnungszone in der Thaliastraße "vermietet"

Einzelhandel zum Kauf in 1160 Wien - Kaufpreis: 745.000 € / Objektnummer: 2699/1292
Ausstattung: Rollstuhlgerecht Fahrstuhl Teeküche Alarmanlage Zentralheizung
Verkaufslokal
Eingang
04
Hinterer Bereich
Hinterer Bereich_2
Büro
Alladean1
Haus
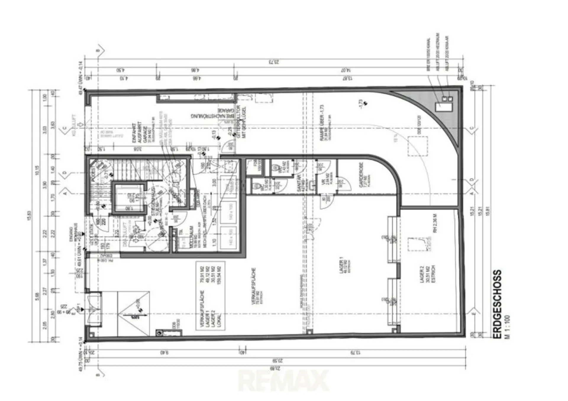
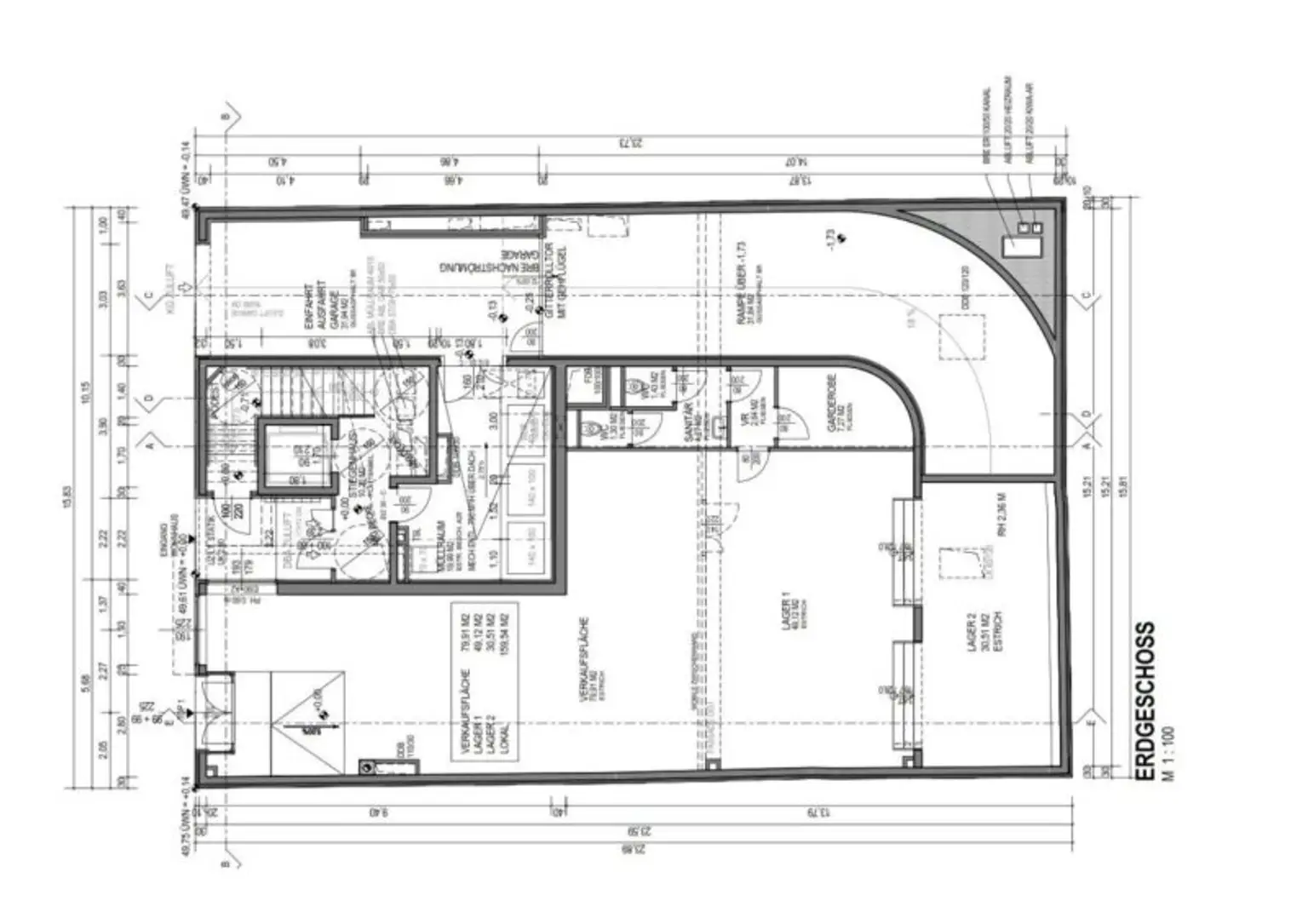
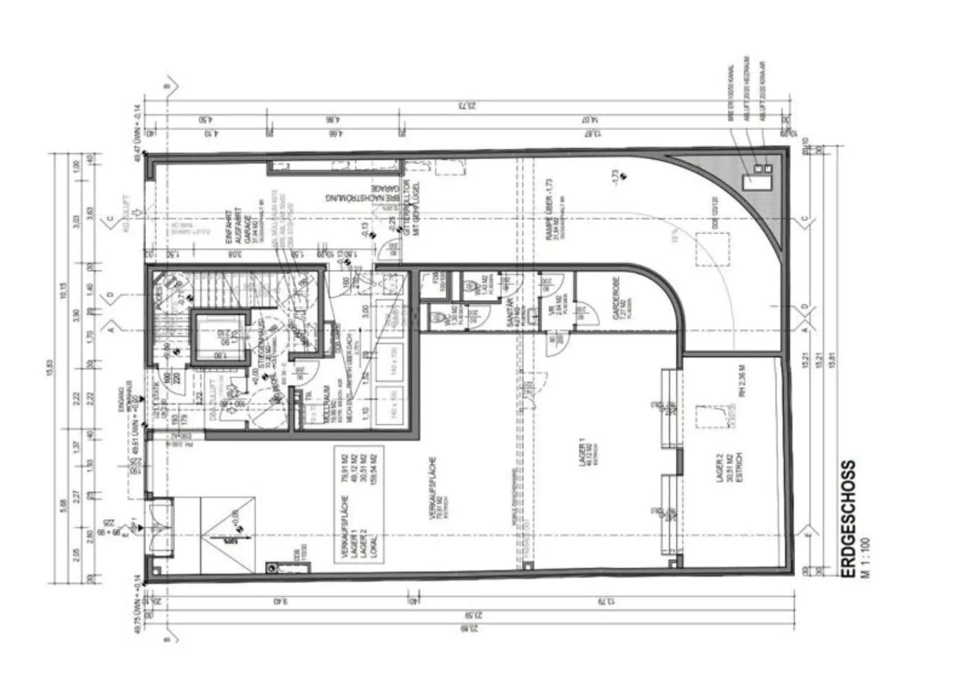
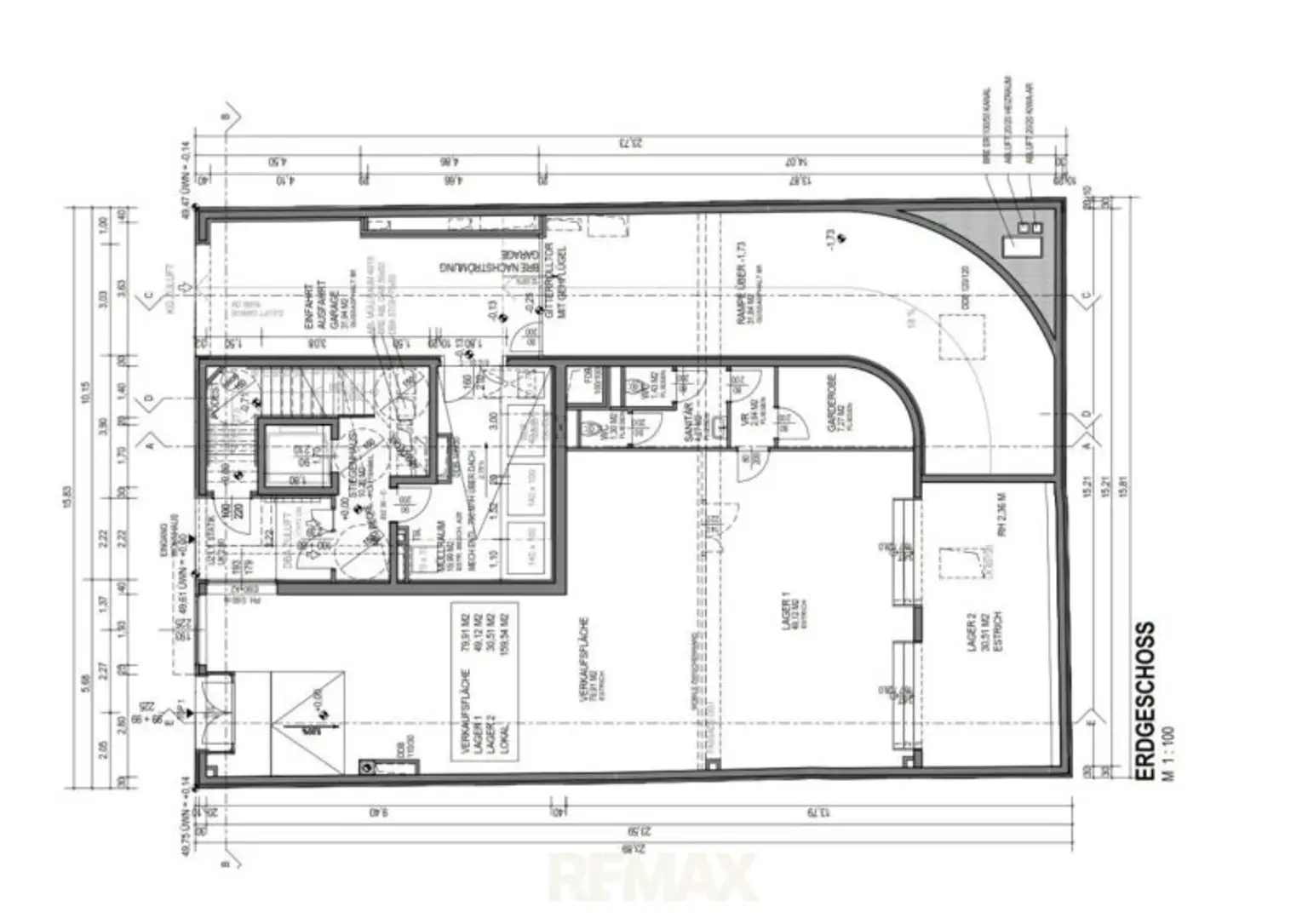
Plan_GWO_Thaliastraße 53_001
EA
Begegnungszone

Preisinformationen

Kaufpreis:
745.000 €
Betriebskosten netto:
373,60 € / Monat
Vermittlungsprovision:
Ja
Provision:
3% des Kaufpreises

Fakten

Objektnummer:
2699/1292
Objekttyp:
Einzelhandel
Nutzfläche:
178 m²
Toilette:
2
Baujahr:
2014
Neubau:
Ja
Zustand:
Neuwertig
Verfügbarkeit:
Verfügbar

Beschreibung

LAGE

Zwischen Richard Wagner Platz und dem Park am Hofferplatz liegt unser Geschäftslokal in der 2021 fertiggestellten Begegnungszone der Thaliastraße ~ 700m vom Gürtel entfernt. Die nächste Straßenbahnhaltestelle und Nachtbushaltestelle Haberlgasse ist nur 50m entfernt.

BESCHREIBUNG:
In sehr guter ottakringer Lage in der Thaliastraße befindet sich unser Geschäftslokal mit einer Gesamtfläche von 178,5m², welche aktuell unbefristet vermietet wurde. Hier sind Sie in Ottakring top präsent und gut aufgehoben, denn die Fußgängerfrequenz ist hier ausgezeichnet und durch die 2021 geschaffene Begegnungszone gibt es auch Sitzplätze, sowie Nebelstellen und Trinkbrunnen. Die Straßenbahnlinie 46 und der gleichnamige Nachtbus halten fast vor Ihrem Geschäft. In wenigen Minuten ist man zu Fuß auch bei der U6 (Haltestelle Thaliastraße) und in den inneren Bezirken.

OBJEKT:
Das Gebäude wurde 2014 errichtet und befindet sich in einem entsprechend gutem Zustand. Das Geschäft ist barrierefrei und ebenerdig zu betreten. Der neue Mieter setzt ein Start Up Konzept mit Selbstbedienungs Lebensmittelautomaten um. Das Geschäft ist unbefristet vermietet.

PREIS:
Kaufpreis: VB € 745.000,-
Die jährlichen Mieteinnahmen betragen ~ € 32.500,- was in etwa einer Rendite von ~ 4,35 % (indexgesichert) entspricht.

Wenn ich Ihr Interesse geweckt habe, würde ich mich über Ihre Kontaktaufnahme freuen um Ihre Fragen beantworten zu können.

Wir weisen darauf hin, dass zwischen dem Vermittler und dem Auftraggeber ein wirtschaftliches Naheverhältnis besteht. Der Vermittler ist als Doppelmakler tätig.
In Entsprechung des FAGG (Fern- und Auswärtsgeschäfte-Gesetz) und des VRUG (Verbraucherrechte-Richtlinie-Umsetzungsgesetz) ist es uns leider nur mehr möglich, Termine nach Erhalt einer schriftlichen Anfrage mit vollständigen Kontaktdaten zu vereinbaren. Dies gilt ebenso für die Nennung relevanter Informationen wie z.B. der Lage. Sehr gerne sind wir auf diesem Wege bereit, die gewünschten Informationen und Unterlagen samt Adresse an Sie zu senden.
Unbedingt erforderlich sind:
+ Vor- und Nachname
+ aktuelle Meldeadresse (Hauptwohnsitz)
+ Telefonnummer
+ E-Mail Adresse

Hinweis zu Widerrufsrecht, Rücktrittsrecht bei Fern- und Auswärtsgeschäften: Gem. §11 FAGG (Fern- und Auswärtsgeschäftegesetz) kann der Interessent innerhalb von 14 Tagen vom Vertrag zurücktreten. Wünscht der Interessent mit der Kontaktaufnahme ein vorzeitiges Tätigwerden (Namhaftmachung und Adresse der Immobilie) des Immobilienbüros RE/MAX Welcome innerhalb der offenen Rücktrittsfrist, verzichtet er damit auf das Rücktrittsrecht vom Maklervertrag gem. §11 FAGG.

Infrastruktur / Entfernungen

Gesundheit
Arzt <500m
Apotheke <500m
Klinik <500m
Krankenhaus <1.500m

Kinder & Schulen
Schule <500m
Kindergarten <500m
Universität <1.000m
Höhere Schule <1.000m

Nahversorgung
Supermarkt <500m
Bäckerei <500m
Einkaufszentrum <1.000m

Sonstige
Geldautomat <500m
Bank <500m
Post <500m
Polizei <1.000m

Verkehr
Bus <500m
U-Bahn <1.000m
Straßenbahn <500m
Bahnhof <1.000m
Autobahnanschluss <4.500m

Angaben Entfernung Luftlinie / Quelle: OpenStreetMap
Beschreibung weiterlesen

Lage und Verkehrsanbindung

Richard Wagner Platz. Hofferplatz

Energieeffizienz

HWB:
66,84 kWh/(m²*a)
HWB Klasse:
B
fGEE:
0,8
fGEE Klasse:
A
Energieausweisart:
Energiebedarfs-ausweis

Lageplan

1160 Wien | Wien 16., Ottakring

Lade...
Herwig Froschauer

Herwig Froschauer
Immobilienberater

RE/MAX Welcome Hornyik Immobilienmakler GmbH&CoKG

Lade...

Fotomix

Verkaufslokal Eingang 04 Hinterer Bereich Hinterer Bereich_2 Büro Alladean1 Haus Plan_GWO_Thaliastraße 53_001 EA Begegnungszone